Детская для разнополых деток
Интерьерное решение детской комнатыДевочки, посмотрите "незамыленным" взглядом.
Есть два ребенка: мальчик 6ти лет и девочка 2х лет.
Совместными усилиями с Лидочкой им нарисовалась детская.
У девочки меня вроде все устраивает. А вот у мальчика... чего-то не хватает что ли... в общем то тут вопрос покрывала только стоит наверно. но вдруг вы что-то посоветуете?


аа тут смотрим на мальчукОвый уголок:
или так:
Ковра у него не будет. Что то мне как то незаконченно у него...
И еще вопрос: кто-нибудь видел подобный ковер (как у девочки)? Не противно розовый, а вот такого оттенка как на первом коллаже?
Аня
мне все нравиться, кроме отсутствия мест для хранения игрушек.. ну и стол в половинке Саши я бы сделала угловой круглый)
26.10.2014
Ответить
Светлана
Для игрушек стеллаж с розовыми коробками ( 40*40*2 м) он очень вместительный, у ромы такой же стеллаж. Плюс, при входе открытый стеллаж. А там по ходу пьесы я еще посмотрю. Мало будет -закажу.стол сашин уже есть. Он вообще красный :))
26.10.2014
Ответить
Rully Paris
Мне кажется у мальчика как — то темно что ли... Может цвет мебели сменить. И навесную полочку с игрушками икеевскую в уголок.
26.10.2014
Ответить
Светлана
у мальчика цвет мебели ваниль. не белый конечно, но куда светлее я уже не знаю...
26.10.2014
Ответить
Rully Paris
Я бы на Вашем месте (своему сыну) купила бы белую мебель и выкрасила стены (или обои) в синий цвет. Добавила бы еще красного, подушечки там... Книги, игрушки. А то, что есть тускловато как-то. Особенно обои.
26.10.2014
Ответить
Светлана
нуууу. это значит сделать все по другому. мебель я выбрала уже. книжки и игрушки появятся, кужа же они денутся. стены сделаны универсальны должны быть, потому что в эту часть потом переедет девочка.
26.10.2014
Ответить
Светлана
Не будет лелека. Коврик пазл есть у меня. К нему так вся грязюка липнет. Беее
26.10.2014
Ответить
Юлия
Я пылесошу каждый день. А если рогожку кинуть у кровати -плотную как тряпочка циновка?
26.10.2014
Ответить
Светлана
Ну у меня есть у ромы сейчас. Точнее была. Я ее на балкон списала.я каждый день не могу пылесосить. Ты что ли после работы? У меня керхер с водным фильтром. Лень каждый день его мыть...
26.10.2014
Ответить
Юлия
Я да. У меня самый простой бесшумный самсунг. Включила, 2 мин прошлась и выключила. Стоит в собранном виде у и под гладильной доской.
26.10.2014
Ответить
Светлана
вместо одной несколько? так и будет скорее всего. но изменит ли это что-то?
25.10.2014
Ответить
Редиска
Есть же безворсовые ковры и ковры из 100% синтетики. Что ж ему теперь в казарме жить?
26.10.2014
Ответить
Светлана
ну мне кажется, что в казарме не так.ну и безворосовые ковры и ковры из синтетики также собирают пыль. я не об этом спрашиваю. как создать гипоаллергенный быт с ребенком я спрошу людей знающих. здесь я попросила соывета как сделать более уютным уголок мальчика БЕЗ применения ковра. если вариантов нет, то можно и не комментировать.извините, что резко, но тема аллергии для меня остра.
26.10.2014
Ответить
Редиска
Для меня тема аллергии очень актуальна, т.к. я сама тот еще аллергик и ребенок весь в меня пошел, к сожалению. В данном случае извинятся скорее должна я, резковато написала.У вас получатся странно — вы категорически нежелаете ковер мальчику, при этом в девичьей половине ковер есть, и это в одной их общей комнате.Проблема в том что уют как раз и создает текстиль. Вам необязательно покупать огромный ковер во весь мальчишеский уголок. Постелите небольшой коврик у кровати, и пыли много не соберет и , согласитесь, гораздо приятнее вставать с постели на что то теплое, нежели на голый пол? И не такой уж пылесборник.Не нравится стена с полками и столом. Навесная полка выглядит очень тяжело и громоздко и грубо. Я бы сделала открытые полки между двумя стелажами, но почти все запрятала бы в разноцветные коробки. Они добавят яркости, а убрать с них пыль очень просто. Стул бы взяла более детский, точнее более молодежный, более легкий.Вместо одной картины, повесьте несколько небольших, ярких...Вообще мебель не очень нравится, она слишком "взрослая" что ли... Нравится такая:1. Нейтральных тонов

Или одной серии, но с использованием мальчуковых голубых и девчачьих розовых цветов, или нейтральных желтого и зеленого.





Или одной серии, но с использованием мальчуковых голубых и девчачьих розовых цветов, или нейтральных желтого и зеленого.



26.10.2014
Ответить
Светлана
Про девочкин ковер тема открыта. Его возможно тоже не будет. Мебель покупаю надолго. Так что она молодежная. Это детская oktavaот дятьково. Мне нравится. Ваш первый вариант тоже нравится
26.10.2014
Ответить
Редиска
Мне она тоже нравится) Для своего присмотрела, нам ремонт в следующем голу предстоит. Это детская Мегаполис от Инволюкс (Белоруссия)Тут на ББ есть закупка этой мебели
26.10.2014
Ответить
Елена
тогда только картинки, причем , думаю, не больше трех, и постель пестрой не сделаешь из-за перегородки.
26.10.2014
Ответить
Юлия
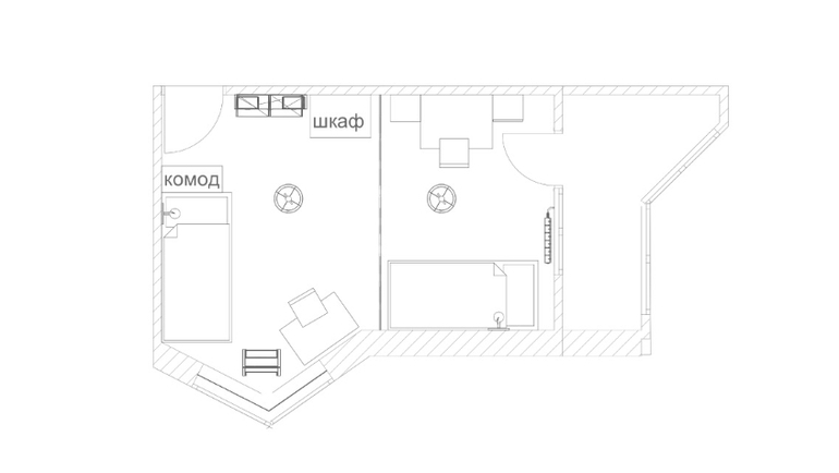
Это одна комната, поделена? А куда мальчик будет вещи класть (одежду) где шкаф? И еще у мальчика выход на балкон получается, может его задействовать?
25.10.2014
Ответить
Светлана
да, комната. одна. вещи будут в общем шкафу и комоде при входе. это меня не смущает. дети пока маленькие и вполне обойдутся общим шкафом.балкон я не могу задействовать в силу отсутствия денег :)) перегородка между комнатами — это японские панели. они раздвигаются днем и занимают 60 см с одной стороны, т.е. комната остается целой.
25.10.2014
Ответить