Помогите - перепланировка!
Интерьерное решение гостинойДобрый день! Я снова со своим вопросом...уже всю голову сломала..
Как вам такой вариант перепланировки?
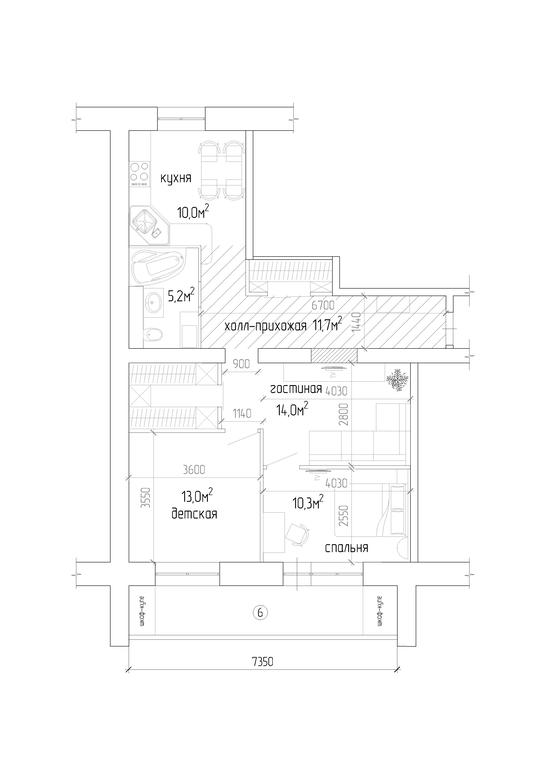
Заложить проем в большую комнату, организовать гардеробную и спальню...Смущает - гостиная без окна, и проем 900мм...который ведет, по сути, в три помещения: спальню, детскую и гостиную.
Проем расширить нельзя - стена несущая. Узаконена планировка только на объединенный санузел. Стоит ли заморачиваться - квартира в ипотеке. И еще планируем второго ребенка -детской 13м2 хватит на двоих?
Может у кого другие варианты будут. Главный вопрос, разместить вещи на семью из трех человек (мама, папа, ребенок 3г). На двуспальной кровати не настаиваем (как вариант... )
Elena
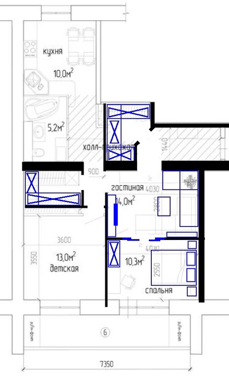
Можно попробовать рассмотреть вариант расстановки мебели в гостиной зоне немного другой. Диван поставить перпендикулярно настоящему расположению, а талевизор на стену по которой расположили рабочий стол. Но чтобы его там поместить надо продлить немного стену и между спальной и гостиной поставить распашные двери, для доступа света и воздуха.Я немного порисовала и, возможно, мысли немного авантюрные, но можно подумать... Вот:
Это у меня уже дальше мысль пошла... В коридоре гардеробную сделать большую, но гостиная получается проходная...
Это у меня уже дальше мысль пошла... В коридоре гардеробную сделать большую, но гостиная получается проходная...
06.11.2014
Ответить
Пчёлка
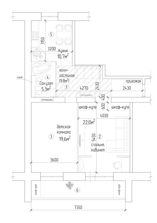
Чуток изменила вашу идею...чтобы стена со стороны кухни и сан узла не пустовала — разбила большую гардеробную на шкаф и мини-гардеробную.
А вот еще самый бональный...простой, и вроде как...ЧИСТЫЙ вариант...Но скучный...Вот как вы считаете...надо ли все же ВЕСЕЛИТЬСЯ...в квартире...или делать чтобы было удобно...Но опять же вариант...с гардеробной очень привлекает...Но уже писали, что это непозволительная роскошь...ДЕЛЕМА...
А вот еще самый бональный...простой, и вроде как...ЧИСТЫЙ вариант...Но скучный...Вот как вы считаете...надо ли все же ВЕСЕЛИТЬСЯ...в квартире...или делать чтобы было удобно...Но опять же вариант...с гардеробной очень привлекает...Но уже писали, что это непозволительная роскошь...ДЕЛЕМА...
07.11.2014
Ответить
Elena
Я считаю, что планируя пространство в своей квартире надо опираться на собственные потребности и не слушать мнения сторонних. У каждого свой взгляд, свои приоритеты...Я, например, не люблю шкафы-громадины... Они меня раздражают. Не люблю длинные и бестолковые коридоры... Предпочитаю небольшие комнатки, но функционально организованное пространство. Ваш вариант с гардеробной около детской мне нравится.Но вы сами длясебя должны определить, что вам важнее/нужнее.
07.11.2014
Ответить
Танита
по моему личному опыту гардеробная это непозволительная роскошь при дефиците квадратных метров. гораздо эффективнее устраивать встроенные шкафы от пола до потолка, хоть по всему периметру комнат. между вашей спальней и гостиной гораздо правильнее будет сделать полупрозрачную перегородку. это и пространство на так сильно сожмет, и доступ естественного света будет. иначе не гостиная, а подвал получится. а еще, в семье из четырех человек один совмещенный санузел это жесть. не, пока детки маленькие то конечно норм, но время очень быстро пролетает и вот уже ваш ребенок подросток часами сидит в ванной, а вы выстраиваетесь в очередь под запертой дверью, зарабатывая невроз. особенно по утрам))) когда родители торопятся на работу, а дети совсем не торопятся в школу)))
06.11.2014
Ответить
Вера (дизайн интерьера vera-vasilenko.ru)
Как вам ниже предлагают, вы сделать не сможете. Перепланировка противозаконная, а у вас ипотека, потом проблем не оберетесь с банком. Как сейчас, в приниципе неплохо. Я бы, может быть, кровать развернула перпендикуларно, тогда проходы будут покомфортнее. Телевизор, соответственно на стену с окном. Какая у вас ширина балкона? Утеплять будете? Если да, то можно вынести хранение вашей с мужем одежды на балкон, в простенке по центру просится еще один шкаф. Гардеробная какого размера вышла? По рисунку создается впечатление, что проход между шкафами маловат... Стояки у вас не отмечены, унитаз в изначальном плане там же? Угловая ванна... очень-очень хочется? бестолковая вещь, если честно. большой расход воды, много места занимает, а если с гидромассажем, то и ухода требует огромного. Я бы за прямую проголосовала ) тогда и раковину побольше можно сделать.Но вообще, положа руку на сердце, проще и правильнее, наверное, оставить старую планировку, особенно с учетом ипотеки.И детская будет хороших размеров — можно разместить большую систему хранения, куда уйдут абсолютно все детские вещи.А комната с балконом — спальня-гостиная.У входа диван (может, даже и угловой влезет), шкафы на всю длину комнаты (в них интегрировать секцию с ТВ) , кровать у окна. Почти как у вас сейчас, только диван развернуть на 90 градусов и шкафы добавить — по объему будет не меньше нынешней гардеробной. Просто скажем так — переделанная планировака радикально меняет только то, что можно изолироваться в спальне, когда кто-то в гостиной. Вам надо решить, насколько это для вас важно.
06.11.2014
Ответить
Пчёлка
По поводу ванной, да унитаз стоит там же, как и в изначальной планировке...просто убрали перегородку...там все верно. Ванну скорее не угловая, а асимметричная...но это не принципиально...можно и об обычный прямой вариант рассмотреть.У нас лоджия...утеплять и застеклять планируем, но присоединять нет. Места хранения там предусмотрим.А как вам этот вариант...он у нас один из первых, простых и менее затратных что ли...
06.11.2014
Ответить
Вера (дизайн интерьера vera-vasilenko.ru)
ниша под диван в коридоре какого размера? и если уж спальня, то почему бы кровать не поставить?
06.11.2014
Ответить
Пчёлка
Ниша в коридоре 2370х990мм. Плюс сам коридор 1440мм — проход так сказать.По поводу кровати мучают сомненья...большая конструкция...а тут собрал и место есть. Но тогда в этом варианте...в квартире два дивана...вроде бы две гостиные...у нас то народ какой...сразу в комнату пойдут...как объяснить людям, что в холле гостиная...Не знаю...Но из кухни проем в этот холл хороший — просторный. Это вид из кухни.
Это тот самый пятачок — с нишей
Это тот самый пятачок — с нишей
06.11.2014
Ответить
Вера (дизайн интерьера vera-vasilenko.ru)
я б кровать поставила в спальне — зачем вам там место? танцевать? ))) кончится все тем, что он будет просто вечно в разобранно-заправленном состоянии
06.11.2014
Ответить
Angelina
А я бы снесла перегородку между спальней и гостиной. Сделала бы кухню- гостиную большую! Детская осталось бы на старом месте, а в бывшей кухне спальню.13 квм достаточно для двоих, если сделать двухярусную кровать
06.11.2014
Ответить