Помогите спланировать детскую
Интерьерное решение детской комнатыМой первый пост в сообществе, надеюсь, ничего не нарушу.
Помогите пожалуйста расставить мебель в комнате сына.
Сейчас ему почти 5, хотелось бы прожить в этом интерьере лет до 18)
Комната 13 кв. м, окна на юго-запад. После обеда много солнца.
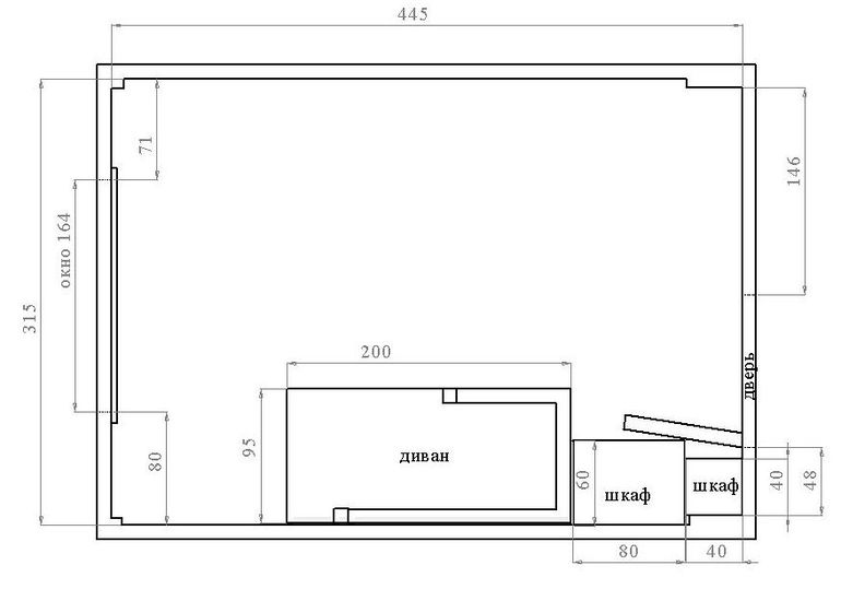
Сейчас из мебели есть два шкафа и диван. Размеры в см.
Сейчас мебель стоит так:
И мои два варианта.


Буду рада любым свежим мыслям)
Rully Paris
Я бы стол поставила прямо напротив окна. А справа и слева поставила узкие стеллажи. Для книг, дисков и всякой всячины. Диван справа от входной двери, в угол. А телевизЕр вообще бы не ставила. Вместо него лучше спортивный уголок.
18.01.2015
Ответить
Ольга
Из окна бьет солнце, некомфортно будет сидеть. А на окне цветы, если будет стол, то неудобно будет их поливать)
18.01.2015
Ответить
Rully Paris
Мой стол напротив окна. И на окнах рулеты.) Опустила и нет солнца. Цветы так же стоят. Поливаю без проблем.
18.01.2015
Ответить
Ирина
идея хорошая, может просто стол поуже сделать, часть подоконника будет рабочая
18.01.2015
Ответить
Ольга
не получится. Подоконник плотно занят цветами. Если поставить стол, они и на него переползут)
18.01.2015
Ответить
Ирина
может пожертвовать частью цветов, или другое место им подыскать:)) я бы шкафы из за двери убрала, а то извините но городки какие то...
18.01.2015
Ответить
Ольга
Шкафы за дверью мне тоже не нравятся.Стол у окна плох еще тем, что у нас с обеда до вечера солнце. Не комфортно за таким столом сидеть, а летом еще и жарко.
18.01.2015
Ответить