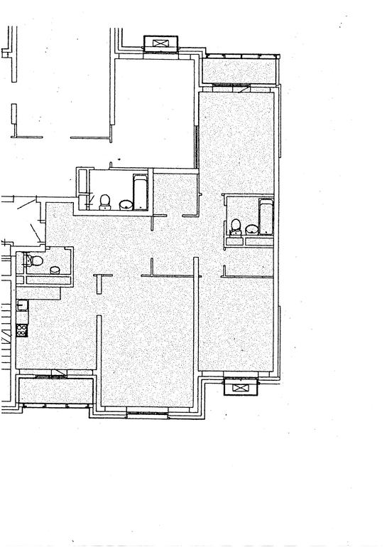
Помогите с планировкой))
Перепланировки стен. Согласование перепланировки квартир и нежилых помещений.Дорогие девочки и мальчики, помогите, пожалуйста, с планировкой, как лучше все обыграть, где сделать двери, где, может-быть убрать стены !!! Спасибо!!! 
bkola
Я архитектор дизайнер
интерьера могу предупредить, что толстая стена несущая, сейчас проемы то с боем разрешают.. ктото ее вообще на картинке сдунул.)
31.01.2015
Ответить
Дарья Архитектор
На самом деле не самая удачная планировка. При огромной гостиной и прихожих, довольно маленькие жилые комнаты и санузлы...
31.01.2015
Ответить
Helena
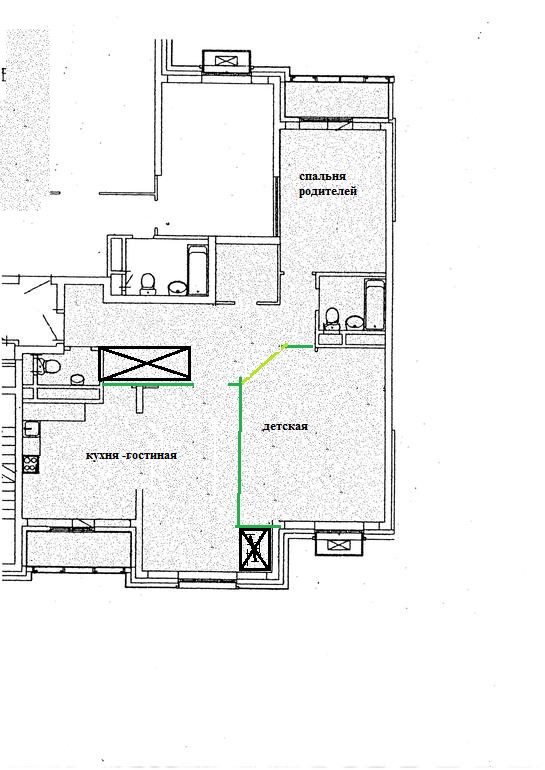
Добрый день. Когда мы думали над своей перепланировкой мы сначала определились что хотим от квартиры . Может и вам для начала сформулировать свои мысли ( детей в одну комнату или по разным, нужна ли спальня для родителей или гостиная с диваном подойдет, какие размеры всех помещений — у нас например план застройщика отличался от реальности, какие стены несущие какие нет. ну и т.д. и т.п)))
31.01.2015
Ответить
Irina
Детская одна на двоих, спальня для родителей, по стенам несущие/не несущие тут вроде все точно... С размерами позже будет план.. знаю только, что общая 117
31.01.2015
Ответить
Helena
"по стенам несущие/не несущие тут вроде все точно..." -ну может это только мне не понятно ))) но кажется что большинство межкомнатных стен сносить нельзя, но если я ошибаюсь предлагаю такой вариант перепланировки... А вообще я бы наверно ничего не меняла -будь это моя квартира, детки подрастут можно расселить в разные комнатки. но Вам конечно виднее как лучше )))
31.01.2015
Ответить
Мамзелька (Аня)
А что хотите от квартиры то, собственно? Сколько спален, на сколько человек? Кухня отдельная — совмещенная? Гардеробные?
30.01.2015
Ответить
Irina
4 человека (2 взр+2 детей) гардеробная - да, кухню скорее всего совмещенную ... Думаем пока по поводу кухни на самом деле...
30.01.2015
Ответить
Мамзелька (Аня)
Мы ждем примерно такую же планировку, только у вас мест для хранения побольше. Удачная квартира, можно много чего вписать! Я вечером найду наш план (если интересно) и ваш попробую порисовать!
31.01.2015
Ответить
Виктория
Юль.. зайди на сайт столплит мебели. там есть программка хорошая . сиди и играйся ))) прикольно
30.01.2015
Ответить
