Двушка в доме серии П44-Т
Перепланировки стен. Согласование перепланировки квартир и нежилых помещений.Хочу с Вами поделится планировками двухкомнатной квартиры в доме серии П44-Т, для которой я сейчас делаю дизайн-проект. Заказчику необходимо предоставить несколько вариантов планировок из которых он выберет одну. А удачных планировок бывает несколько и вдруг кому то пригодится, тем более серия дома достаточно распространенная в Москве и МО.

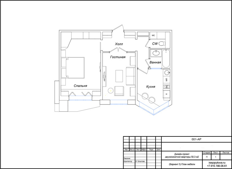
Данная планировка требует согласования БТИ, поскольку предусмотрен проем в несущей стене. Не во всех домах данной серии это разрешается.

Вика
Очень интересно!!!У меня такая квартира, но я в ней пока не живу. Переезжать буду только летом. Мне больше нравится первый вариант. Хотя третий очень интересный!!!
19.02.2015
Ответить
Ирина (архитектор-дизайнер интерьеров)
Рада, что планировки понравились!) Третий вариант более затратный, поскольку согласование необходимо делать.
19.02.2015
Ответить
Мария
3 вариант клевый
. Но это только если бездетная пара или уже дети разъехались когда. У нас так соседи сделали над нами.
. Но это только если бездетная пара или уже дети разъехались когда. У нас так соседи сделали над нами.
19.02.2015
Ответить
Ирина (архитектор-дизайнер интерьеров)
В планировке большую роль играют поставленные задачи: количество членов семьи, их возраст, род деятельности каждого, предпочтения и т.п.)
19.02.2015
Ответить
Ирина (архитектор-дизайнер интерьеров)
Да, у той серии все стены межквартирные и межкомнатные несущие.
18.02.2015
Ответить
Ирина (архитектор-дизайнер интерьеров)
Но в ней согласовывают проем 800*2100, правда не во всех домах.)
18.02.2015
Ответить