Классическая история
Новостройка со "свободной планировкой" - на самом деле свобода на 70% сразу ограничивалась огромной несущей стеной с воздуховодом аккуратно посередине. Границы мокрых зон и стена под углом превращали эту свободу в совершенно непонятное пространство.
Исходный план

Зато, ура, было разрешение от застройщика на присоединение огромной лоджии!
Вот с чем пришла ко мне хозяйка квартиры:
"Александра, добрый вечер,
В приложении обмеры квартиры и предпологаемая расстановка мебели и стен. Но в проекте не нравится прихожия, вход в кухню, в спальню,в ванну. Надо что - то менять. Может будет какая нибудь интересная идея?"
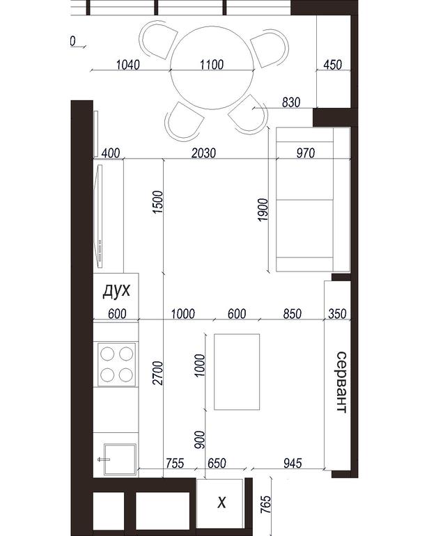
Неудачный вариант от других дизайнеров

Идей было много, мы целых 10 вариантов нарисовали, но в основном, они все крутились возле органицации входной зоны и размещения постирочной, и еще планировка кухни была сложной задачей - очень хотелось иметь остров, хоть даже самый маленький))
Было непросто решить геометрию стен на лоджии - там нужно было подстраиваться под шаг остекления и оставить противопожарный балкон.
Также нужна была отдельная постирочная зона с хранением инвентаря для уборки и еще много мест хранения для геологического снаряжения.
И еще в наличии беговая дорожка, маленькая оранжерея и пианино))
Но в итоге мы со всеми задачами справились.
Итоговая планировка

И пошли работать над внешним видом.
Начали с ванной.
Вообще в тех.задании основным мотивом было обязательное сочетание темной и светлой мебели, а стилистика тяготела к классике.
Коллаж

Развертка

Надо сказать, что проект мы начали в декабре, в разгар кризиса и всеобщего безумства. выбранной плитки нигде не было в наличии, аналоги по курсу евро подскочили в цене до небес. Мы перебирали сотни вариантов. То же самое было с туалетом и фартуком на кухню.
Первый вариант - с приткой, которая нам не досталась
Развертка 1

И последний, даже выигравший от замены))
Развертка 2

С гостиной было так интересно - заказчики так волновались по поводу ремонта, что им даже сны начали снится про обои. И как оказалось, сон был в руку))
Материалы:

Развертка:

Коллаж:

Потом по ходу ремонта обои разонравились и опять были поиски идеального варианта - более 50 выбранных были опробованы и отвергнуты, шатало и бросало в разные стороны, например, был такой вариант
Развертка 2

Вот этот был принят с огромным энтузиазмом, но... опять встал финансовый вопрос и в итоге вернулись к тому,с чего начали.
Развертка 3

А может и нет - я решила приехать в Москву и лично на месте этот вопрос решить))
И вот какая у нас получилась кухня - остров вполне себе функциональный.
Чертеж кухни:

Фартук из бежевого превратился в белый, но по факту вышло даже лучше.
Развертка кухни:

Далее была очередь спальни.
Вот такой был образ у нас.
Предварительный коллаж:

Из него родилось два варианта.
Первый ушел в Прованс и был отвергнут
Развертка вариант 1

Коллаж вариант 1

А второй обрел более класическое звучание и его приняли.
Развертка вариант 2

Коллаж вариант 2

Прихожая сложилась благодаря обоям. они задали всю колористику.
Развертка

Коллаж

Постирочную придется делать на заказ
Чертежи постирочной:


А вот шкаф для верхней одежды вписался Икеевский пакс - мы просто выстроили под него нишу.
В детской основным и определяющим фактором стала карта мира и морская тема.
Образ:

Родители и малыш любят путешествовать, увлекаются географией и будут маркерами и магнитами отмечать и подписывать важные точки на карте.
Технология такая - магнитный грунт, напечатааные фотообои и сверху прозрачная матовая краска.
Развертка

Коллаж:

Кабинет сначала решили сделать в Английской тематике. Была мысль про телефонную красную будку, но при наших площадях такое решение было бы грубовато, поэтому я более аккуратно намекнула на Лондон.
Развертка вариант 1

Коллаж вариант 1

Но в процессе заказчики опять передумали и вернулись домой, в Россию))
Тема путешествий все-таки поддержана фотографиями разных столиц, есть витрина для сувениров из поездок и огромный шкаф для карт и старинных свитков))
Кабинет развертка 2

Кабинет коллаж 2

Проект готов, казалось бы - строй и радуйся, но в день сдачи проекта, прораб получил деньги и скрылся в неизвестном направлении.
Классика ремонтного жанра((
Очень надеюсь, что это последнее испытание на нашем пути и все дальше пойдет быстро и гладко.
Держите кулачки за нас!))

Да, очень жаль. Спасибо.