Нужен коллективный разум
Добрый день! я писала свой пост о том что скоро будет ремонт в нашей долгожданной маленькой квартире))) будет много фото, очень надеюсь
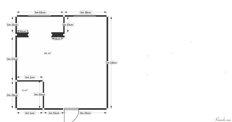
Вот наш первоначальный план, это о что мы получаем 

этот план рисовала сама, есть немного различия, небольшие, на втором плане размеры верны\ Хотим две комнаты и гардеробную. Нас трое- я муж и маленькая девочка, ей два года\ Комната для дочки у окна, наша спальня без она маленькая. Вот примерный проект как я это вижу 

https://planner5d.com/ru/view/?key=5f7529b1e9d0ca3cff7a806a56aa1e94 - вот ссылочка. С мужем спорим, он хочет кухню еще меньше, комнаты длиннее , а мне так нравится!)) спальню знаю какую хочу, а вот с детской загвоздка, вообще не представляю какую делать. Спальню хочу такую
http://www.babyblog.ru/community/post/housedesign/3152011, размеры совпадают ! Надеюсь автор не будет против
http://www.babyblog.ru/community/post/housedesign/3152011, размеры совпадают ! Надеюсь автор не будет противванная примерно такая http://www.babyblog.ru/community/post/housedesign/1739561/1#comm_start опять таки надеюсь автор будет не против))

гардеробная тоже подсмотрена на ,бебиблоге))) только полки по две стенны будут http://www.babyblog.ru/community/post/housedesign/3143015 или такая http://www.babyblog.ru/community/post/housedesign/1749095 

а вот с детской загводка
http://www.babyblog.ru/user/melika82/3089345 - балдею от кровати и полок

в детской комнате в нише где я поставила шкаф будет встроенный шкаф.
Lenko_sun
и еще: вам очень необходима полноценная кухня? может стоит перенести ее в коридор (такую перепланировку можно согласовать). И сделать две отдельные комнаты. Придется тогда, конечно, пожертвовать гардеробной, но сделать вместо нее два узких шкафа в комнатах. Только по размерам надо вымерять, конечно, влезет ли.Просто как вариант
28.03.2015
Ответить
Lenko_sun
а не думали сделать в своей спальне что-то наподобие окошек (чтобы хоть немного света проникало?) вот картинка для примера, да простят меня правообладатели:
27.03.2015
Ответить
Lenko_sun
вот с другой стороны (картинки взяты с сайта http://www.interior-design.club/threads/22285/) , просто не нашла похожего для иллюстрации
27.03.2015
Ответить
Irisca
супер, очень интересная идея! спасибо, я хотела окна, муж сказал не мог представить как это будет, да и я не очень представляла! а теперь очень наглядно вижу! спасибо!!!
27.03.2015
Ответить
Elena
В вашем проекте мне показались сомнительными следующие идеи:
1. Вход в детскую через балкон? Возможно ли делать проем в фасадной стене?
2. Скошенная стена входа в спальную смотрится не очень гармонично... Я бы предложила в этом случае делать поямой угол и вход либо из коридора, либо со стороны кухни (это было бы лучше, открыв двери есть доступ к свету и воздуху).
27.03.2015
Ответить
Irisca
балкон утеплим, будет одна и та же температура как во всей квартире. Насчет двери еще думаем! спасибо за идеи.
27.03.2015
Ответить
Веселая
По-моему, вы очень здорово все придумали, особенно, с учетом того, что хотите сделать приточную вентиляцию в спальне.Один момент — вам удобно будет без прикроватных тумбочек? куда положить книгу/стакан воды/очки, горячий чай, когда болеешь и т.д.?
27.03.2015
Ответить
Irisca
спасибо за подсказку (приточная вентиляция) ) буду знать как правильно называется. Вы думаете лучше сделать тумбы вместо шкафов?? Спасибо за идею будем с мужем обсуждать)))
27.03.2015
Ответить
Веселая
пожалуйста:)это вы сами должны решить как вам удобнее, но я например, сейчас живу без тумбы, мне лично очень неудобно, все валяется на полу рядом с кроватью (ноут, книги, крем для рук), если вы не любитель почитать в кровати, то может вам тумбы и не нужны.
27.03.2015
Ответить
Irisca
я не задумывалась, мне понравилось что можно еще вещи сложить, белье. почитать, повязать, выпить чай, крем для рук — это про меня)))))
27.03.2015
Ответить
Веселая
Шикарно:))) прямо идеальный, на мой взгляд, вариант вы нашли.Убиваете сразу двух зайцев — и тумбочка и шкафы для вещей (только розетки над тумбочками не забудьте — они лишними точно не будут — ноут, телефон или планшет зарядить).
27.03.2015
Ответить
Irisca
спальня планируется — спать и все, больше времени я буду проводить у дочки в комнате ила на кухне! а муж будет в спальне тк именно он настаивает на двух отдельных комнатах. Мы будем проводить отток воздуха, не знаю как точно называется, этим муж будет заниматься))) мы делаем так потому что другого варианта нет по финансам(((
27.03.2015
Ответить
Елена
отдельные комнаты. это хорошо. это удобно. может быть , есть смысл подумать о входе в спальню через кухню)
27.03.2015
Ответить
Irisca
мне кажется что на кухне открывающаяся дверь, во внутрь, будет занимать место и мешать в проходе. а в коридоре самое то! но может у вас есть довод ставить дверь в кухню, напишите, а то я свой план вижу со своей колокольни! буду благодарна
27.03.2015
Ответить
а вот так? только без шкафа над головой, только верхний?!