Из Двушки в Трёшку
Девочки, помогите, уже всю голову сломали.... Свёкрам дали квартиру. Площадь огромная! Но по проекту застройщика-это двушка.
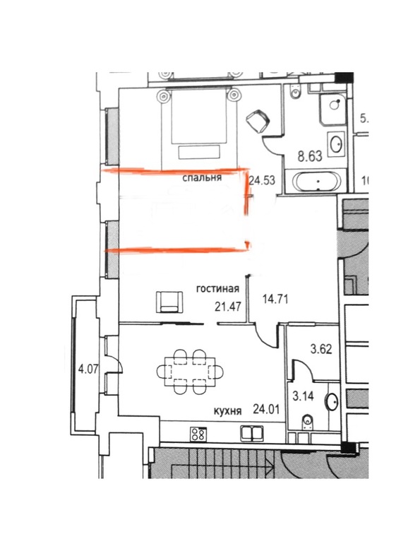
Хотим переделать её в трёшку, но пока не придумали ни одного реального варианта. В кухне будет кухня-столовая-гостинная и 2 спальни. Вот очень хотелось бы как-то выкроить 3-ю спальню. 
рашаМАМАША
одна комната получится темной,или окно делить,что на мой взгляд будет выглядеть убогомы
в свое время делили,делали из однушки двушку,темная была спальня.по
верху узкие окна вставили и очень не плохо себя чувствовали,если надо
могу фото поискать,как это выглядит
15.04.2015
Ответить
рашаМАМАША
я бы что то в таком духе наворотила ,у вас кухня огромная, сойдет и за гостинную ее бы я трогать не стала.в глухой спальне выводится вентиляция в ванну
15.04.2015
Ответить
Мария
Спасибо! Для спальни впринципе безоконность-не криминал совсем. Но пока идеи в основном крутяться вокруг тёмной кухни/гостинной
15.04.2015
Ответить
Елена
А разве у нас разрешены входы в санузлы из жилых комнат????? Это у вас от застройщика такая планировка? Уже утверждено БТИ?
15.04.2015
Ответить
Niko
Лучше без стен.. сделать либо раздвижные, раскладные легкие перегородки или тканевую штору. Информацию обо мне можно
узнать на сайте дизайн интерьера 3 комнатной квартиры
15.04.2015
Ответить
Margo
Может окно гостиной поделить на две комнаты? Тогда хоть и узкое, но будет в спальне окно. Если конечно ширина позволяет. Без точных размеров сложно судить)
14.04.2015
Ответить
Елена Дизайнер интерьера
На мой взгляд самая адекватная планировка такая. Возможно так же сделать попадаение дневного света в зону кухни. И хорошо было бы в новой спальне объеденить с балконом.
14.04.2015
Ответить
Мария
Спасибо за вариант. Что-то тауое и напрашивается. Просто сложно представить, как это-комната без окна и дневного света...
14.04.2015
Ответить
Елена Дизайнер интерьера
При такой планировке крайне важно рассчитать размеры и как встает необходимая мебель (к примеру, ломана стена между спальнями не случайно). Плюс еще важно учесть разные нюансы, к примеру вытяжку на кухне. Из комнаты без окна может получится склеп, да. Для того, чтобы это не произошло, необходимо всё же обдумать попадание дневного света — стекляная дверь, фальш-окно или стекло-витраж под потолком. И грамотно продумать оформление и освещение этой зоны.У меня была "глухая" гостиная в классическом проекте Море. Дирижабли. Клад
14.04.2015
Ответить
Анютка
Честно говоря не понимаю в чем проблема. У вас кухня по проекту 24 метра. Если стену гостиной и кухни перенести немного в строну гостиной, вы увеличите площадь "кухни" таким образом получится кухня-гостиная. Остальное место в бывшей гостиной останется до спальни. Хотя и в 24 метрах можно неплохо проводить время.
14.04.2015
Ответить
Елена Дизайнер интерьера
Вы невнимательно читали. Мария хочет три спальни, а при существующей планировки может быть только две (спальня и вместо гостиной).
14.04.2015
Ответить
Анютка
Ну значит пост надо писать из девушки в четырешку! Трешка это когда две спальни.
14.04.2015
Ответить
Елена Дизайнер интерьера
Трешка — это когда три жилых комнаты, что девушка и просит.
14.04.2015
Ответить
selena1002
Мария, добрый вечер!Все говорят, что окно должно быть в спальне! Не факт. Но дело не в этом, Вы не думаете, что гостиная вполне может обойтись без окна. Сделайте гостиную-холл крутую и спальню с окном. Примерно вот так. Если думаете, что будет темновато в гостиной)), то сделайте в стене спальни фрамугу под потолком.
14.04.2015
Ответить
Мария
Спасибо за вариант, но в планахтак и есть на том месте, где вы обозначили, сделать спальню, а функцию столовой/гостинной объеденить с кухней.
14.04.2015
Ответить
selena1002
Может быть. Мой вариант проще, переделок меньше, главное двери правильно расположить))
14.04.2015
Ответить
Александра(дизайн-архитектура)
О, у моей подруги такая планировка. Они тоже выкраивали.
Перенесли кухню в холл. Получилась проходная кухня и проходная гостиная. Скажу
честно не очень. Но у них была такая необходимость.
14.04.2015
Ответить
Мария
Эх.... Я тоже понимаю, что что-то реально классное не придумать. Но видела в одном журнале квартиру одного известного дизайнера как раз с проходной гостинной. У него это выглядело круто! Вот и лелею надежду что-то придумать.
14.04.2015
Ответить
Мария
Эх.... Сколько часов было проведкно на этом сайте, когда мы себе ремонт делали)))
14.04.2015
Ответить
Ксаночка
Я вижу только 1 вариант: разделить кухню перегородкой и в той часте, что с балконом сделать еще одну спальню.
14.04.2015
Ответить
Оставшиеся комментарии доступны после регистрации
Зарегистрируйтесь и получите полный доступ ко всем функциям сайта.