Дорогие, хочу спать на кровате! Для этого помогите как сделать гостиную-спальню!!! СПАСИБО!!!
Интерьерное решение гостиной
Екатерина (фотокартины для Вас)
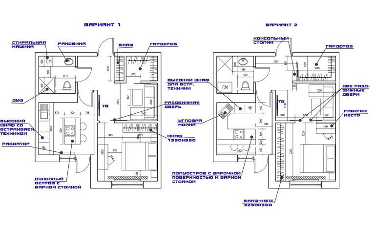
У нас комната поменьше Вашей, но задумка та же.Затеяли ремонт. Вот что должно получиться:
26.06.2015
Ответить
Виктория
смотря какое количество мебели необходимо вместить.хотя в вашу квадратуру думаю многое поместится
26.06.2015
Ответить

