Свежая нотка Прованса. Дизайн квартиры 60 кв.м.
Авторские проекты дизайнеров.(Посты не по теме будут удаляться!)Добрый день!
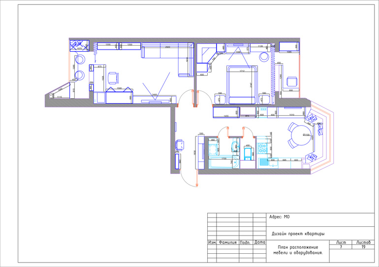
Вот и подошел к концу очередной дизайн-проект квартиры площадью 60 квадратных метров в новостройке, в которой будет проживать мама с сыном подростком. По желанию заказчицы, весь интерьер был выполнен в спокойной зелено-бежевой гамме в стиле Прованс, а вот комнату подростка было решено сделать более молодежной. Вот что получилось благодаря совместным усилиям:

Использование зеленого цвета - это хорошая стартовая площадка для создания идеального домашнего интерьера, который будет наполнен атмосферой релакса и полного умиротворения.


Зеленый сам по себе очень спокойный цвет, а в тандеме с белым и вовсе выглядит еще нежнее. Эта комбинации неплохо впишется в интерьер в любом стиле.

Зеленый цвет в ванной комнате действует успокаивающе, но для подобного эффекта необходимо верно подобрать оттенок. Слишком яркий зеленый здесь не подходит, так как он может вызывать и неоднозначные эмоции, а вот легкие оттенки в сочетании с другими цветами, легко дадут позитивный и очень приятный результат.

В спальне было решено использовать более холодную серо-зеленую цветовую гамму.
В гостиной-спальной так же присутствует серый цвет, но в сочетании с сине-золотым цветом.

Сейчас проект на стадии реализации и там во всю идут строительные работы. К сожалению, от авторского надзора заказчица отказалась, но я обязательно заеду посмотреть что в итоге получилось!