Помогите в выборе квартиры и планировке
Вопросы и ответыДевочки, помогите пожалуйста! Хотим приобрести квартиру, но ни как не можем определиться какую. Рассматриваем два варианта: первый это квартира 54 кв.м, та что по центру слева, и второй это угловая 49,3 кв.м та что справа угловая. И как распланировать пространство, хотелось бы отдельную комнату для дочи и кухню-гостинную. 
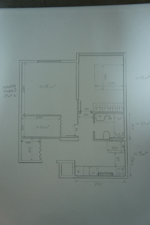
а это рекомендуемая планировка от застройщика

Катя и ВэВэ
я тоже за первый вариант, планировка и площадь почти точно как наша ))) очень удачная
10.11.2015
Ответить
Наталья
Первая! Во второй совершенно бестолковая прихожая, а в первой можно сделать два вместительных шкафа, да и распланировать эту кв. будет проще. А угловые это всегда риск, т.к. неизвестно заранее - будет ли там тепло или же будете мерзнуть зимой и/или любоваться на плесневые узоры в межсезонье. Из трех квартир, где я жила, две угловые - одна хорошая (в ней сейчас живем), а одна была ужас полный. При данной планировке угловой кв. - риск совершенно неоправданный, т.к. ничего особенного и интересного в этой кв. нет.
09.11.2015
Ответить
Afro-Dita
Определенно первая. И в ней проще зонировать для ребенка отдельное место!
09.11.2015
Ответить
Мурашка (новое для девочки в дневнике)
Первая конечно. Двушка с двумя встроенными шкафами в коридоре. В первой неудачный коридор даже просто зайти раздеться убрать вещи.
09.11.2015
Ответить
Тата
Спасибо, да сравнивая коридоры в этих квартирах, в первой однозначно можно вместительные шкафы разместить.
10.11.2015
Ответить
Елена
Для однушки 5 метров это ого- го как много. У меня кухня 5 метров. Вы еще сомневаетесь?
09.11.2015
Ответить
Анна
А дайте хотя бы площадь основных помещений? У нас в прошлом доме была похожая двушка с кухней без окна (там, где у вас сейчас по плану санузел). Мы ее даже покупать хотели)))
10.11.2015
Ответить
Анна
Я бы сделала так. Санузел и кухню чуток поменять местами)))
Справа от входа гардероб на шторке. Если часто пользуешься шторка удобней, тк почти всегда гардеробная открыта + экономия - не надо платить за раздвижные двери. Вход всегда лучше отделить слегка от остальной квартиры, чтобы грязь с улицы не растаскивалась.
Кухня получается проходная и без окна. На самом деле это не так страшно, как представляется. При наших погодных условиях 80% времени без солнца и даже на супер-солнечной кухне приходится включать свет. Так что окно - невелика потеря. А чтобы кухня не стала мрачным подвалом, надо выбрать цвета посвежее, посочнее или хотя бы какую-то стену выделить ярко. Очень рекомендую стеклоблоки между ванной и кухней. Кажется, что это привет из СССР, но в умелом современном дизайне это будет круто и незаезженно. Смотрите, какие они интересные бывают . Тогда в кухне у вас всегда будут веселые блики. Позже скину удачный проект в ИВД, если найду.
Комнаты можно варьировать какая вам, а какая ребенку. Я нарисовала примерно, мне всегда хочется детям побольше отдать помещение, ведь мы в спальне только спим, а деткам надо простору.
Если вам не нравится отдельная гардеробная в комнате, то можно встроенный шкаф (но это дороже). Только дверной проем чуть подвинуть надо будет. И лучше бы сделать дверь выкатную. Это опять же дорого. Я у себя в комнате буду делать так, как тут нарисовано. Но мне еще надо большое рабочее место у окна (даже два), поэтому я отказалась от гардеробной по габаритам. А так мне кажется гардеробная удобней.
А вот дверь в санузел лучше все же сделать выкатной. Не знаю как у вас, но у нас и всех друзей-знакомых эта дверь вечно открыта, иначе плохо испаряется конденсат в такой маленькой ванной и к тому же с детками часто бегаем ручки мыть и тп. Так что выкатная - выгодное вложение. Она удобней для санузла и высвобождает пространство для более важного.
Единственное, что меня напрягает - это отсутствие балкона. Где белье сушить? А вам как кажется? При таких метражах надо что-то думать на эту тему. У моих родителей "двушка" в типовой панельке 54 метра плюс балкон. А тут вышло 54 минус балкон.
Справа от входа гардероб на шторке. Если часто пользуешься шторка удобней, тк почти всегда гардеробная открыта + экономия - не надо платить за раздвижные двери. Вход всегда лучше отделить слегка от остальной квартиры, чтобы грязь с улицы не растаскивалась.
Кухня получается проходная и без окна. На самом деле это не так страшно, как представляется. При наших погодных условиях 80% времени без солнца и даже на супер-солнечной кухне приходится включать свет. Так что окно - невелика потеря. А чтобы кухня не стала мрачным подвалом, надо выбрать цвета посвежее, посочнее или хотя бы какую-то стену выделить ярко. Очень рекомендую стеклоблоки между ванной и кухней. Кажется, что это привет из СССР, но в умелом современном дизайне это будет круто и незаезженно. Смотрите, какие они интересные бывают . Тогда в кухне у вас всегда будут веселые блики. Позже скину удачный проект в ИВД, если найду.
Комнаты можно варьировать какая вам, а какая ребенку. Я нарисовала примерно, мне всегда хочется детям побольше отдать помещение, ведь мы в спальне только спим, а деткам надо простору.
Если вам не нравится отдельная гардеробная в комнате, то можно встроенный шкаф (но это дороже). Только дверной проем чуть подвинуть надо будет. И лучше бы сделать дверь выкатную. Это опять же дорого. Я у себя в комнате буду делать так, как тут нарисовано. Но мне еще надо большое рабочее место у окна (даже два), поэтому я отказалась от гардеробной по габаритам. А так мне кажется гардеробная удобней.
А вот дверь в санузел лучше все же сделать выкатной. Не знаю как у вас, но у нас и всех друзей-знакомых эта дверь вечно открыта, иначе плохо испаряется конденсат в такой маленькой ванной и к тому же с детками часто бегаем ручки мыть и тп. Так что выкатная - выгодное вложение. Она удобней для санузла и высвобождает пространство для более важного.
Единственное, что меня напрягает - это отсутствие балкона. Где белье сушить? А вам как кажется? При таких метражах надо что-то думать на эту тему. У моих родителей "двушка" в типовой панельке 54 метра плюс балкон. А тут вышло 54 минус балкон.
11.11.2015
Ответить
Тата
Анна, спасибо огромное, очень необычно, про кухню на месте ванной я даже не думала) Да, балкона нет и это конечно большой минус. Да белье сушить негде, будем думать..
11.11.2015
Ответить
примерно такие размеры