Детская в морском стиле.
Авторские проекты дизайнеров.(Посты не по теме будут удаляться!)Очень интересная комната. Просторная с двумя прекрасными арочными окнами. Обладатель этой детской ( шести лет) не возражал против морского стиля, а его мама желала видеть красные акценты и большую карту над кроватью. Стояла задача вписать в интерьер металлическую черную кровать из Икеа и Труфаст. Проект, который сложился всего за 4 дня вместе с консультацией.

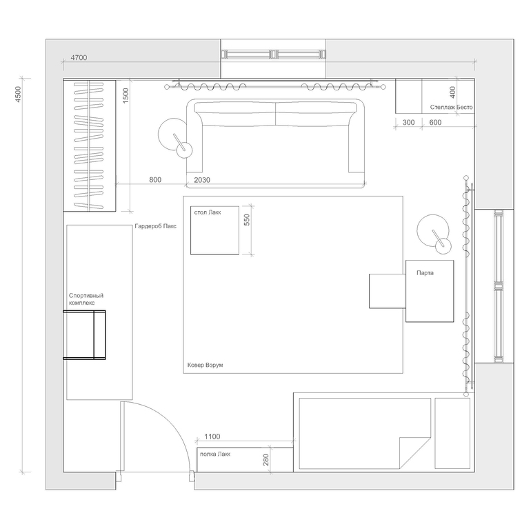
На плане видно,что окна разные. Это не имеет особого значения, когда окна прямоугольные, а две разные арки в интерьере обыграть сложнее. Было решено оформить их одинаково, чтобы скрыть различия.

Помимо традиционных для комнат в морской теме красных и синих акцентов, в интерьере используется графика. Это черные элементы, достаточно тонкие, которые вносят твердость и мужской характер. Черные карнизы для гардин перекликаются с кованной кроватью, тонкими рамками и светильниками.
Ломанные линии римских штор, зигзаг обоев и геометрия люстры делают морскую тему современной. Ассоциируются с северным морем.

Комната достаточно большая, около 21 м. Для того чтобы сделать её уютной в вечернее время используются разнообразные источники света, рассредоточенные по комнате, каждый в своей зоне. Это создаст комфортное освещение вечером, без эффекта яркой зоны в центре и темных углов.

Елена
в очередной раз насладилась! спасибо, что творите и делитесь такой красотой!
16.12.2015
Ответить
Наталья Гончарова (архитектор)
Спасибо. Вы очень точно описали то, чего мы хотели достигнуть.
11.11.2015
Ответить
КОМФОРТА ВИТА comfortavita.ru
Добрый день, Наталья!
Вы уже определились с напольным покрытием? Есть интересное решение для данного дизайна - палубный ламинат.
11.11.2015
Ответить
hungrywife
Здравствуйте! А можно подробнее про освещение? Мне нравятся подобные светильники, но они в основном все на 1 лампочку 60W. Этого же мало будет для детской 12,5 кв м?
11.11.2015
Ответить
Наталья Гончарова (архитектор)
Многие считают выставочные стенды мебели в Икеа достаточно уютными. В них никогда не используют единственный источник света с 6-ю лампочками посередине. Напротив - используется подсветка отдельных зон, в зависимости от их функции. Направленный свет для столов, рассеянный для стен, подсветка стеллажей. В совокупности это дает комнате необходимое освещение и более уютный вид в вечернее время. Я экспериментировала со светом у себя дома, и теперь ставлю настольные лампы даже на подоконник.
Но это очень обширная тема, когда-нибудь напишу подробно.
11.11.2015
Ответить
Анатолий Николаевич
Вроде дорого,но бедненько!
Да и как-то не по мальчуково.Да и кроватка,как из приюта.Але,думайте,ведь для людей делаете.
11.11.2015
Ответить