Интерьерный коллаж
Авторские проекты дизайнеров.(Посты не по теме будут удаляться!)Добрый день, дорогие читательницы!
Сегодня хочу поделиться с Вами проектом, который был удачно сдан еще в январе месяце. Он немного отличается от всех предыдущих, которые я здесь опубликовывала.
Иногда, заказчикам не нужны 3D эскизы, им бывает достаточно концепции, чтобы увидеть интерьер своей мечты! В данной ситуации, чтобы оценить цветовое и стилевое решение интерьера, вместо визуализации я использую коллаж.
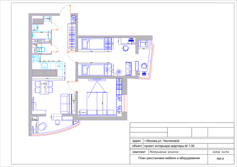
Как и в остальных проектах, начинается все с расстановки мебели и оборудования. Создается несколько вариантов, из которых мы выбираем один наиболее подходящий и доводим его до ума.

Единственное существенное отличие такого дизайнпроекта заключается в том, что вместо реалистичной визуализации Вы получаете интерьерный коллаж!

Расскажу немного подробнее. При разработке коллажа, можно пойти несколькими путями - создать виртуальный образ и потом уже подобрать подходящие по смыслу и цене материалы, мебель или зацепиться за уже выбранные материалы или мебель и дополнить их гармоничными компаньонами.

Все интерьерные предметы составляются в единую композицию (диван, комод, рабочий стол и т д), также располагаются материалы отделки - обои, напольные покрытия, декоративные элементы; правильно располагать материалы отделки ЗА предметами мебели, чтобы те создавали фон, тем самым передавая плановость интерьера.

Разместив, например, диван рядом с напольным покрытием и обоями - будет понятно, как это будет выглядеть в действительности.
Более наглядно получается составлять коллаж для каждого помещения отдельно, потому что уже есть утвержденное планировочное решение, цветовые предпочтения и есть конкретные пожелания заказчика по мебели и светильникам.


Одно из главных преимуществ данного дизайн-проекта: быстро и недорого, по сравнению с полным и эскизным дизайн-проектами!
Не забывайте, пожалуйста:
каждый проект разрабатывается индивидуально под каждого заказчика. И если создан такой проект, значит кому-то это нравится, и он готов жить в таком решении!
Если у Вас возникли вопросы обращайтесь!
Хорошего всем дня!