Ближе к природе
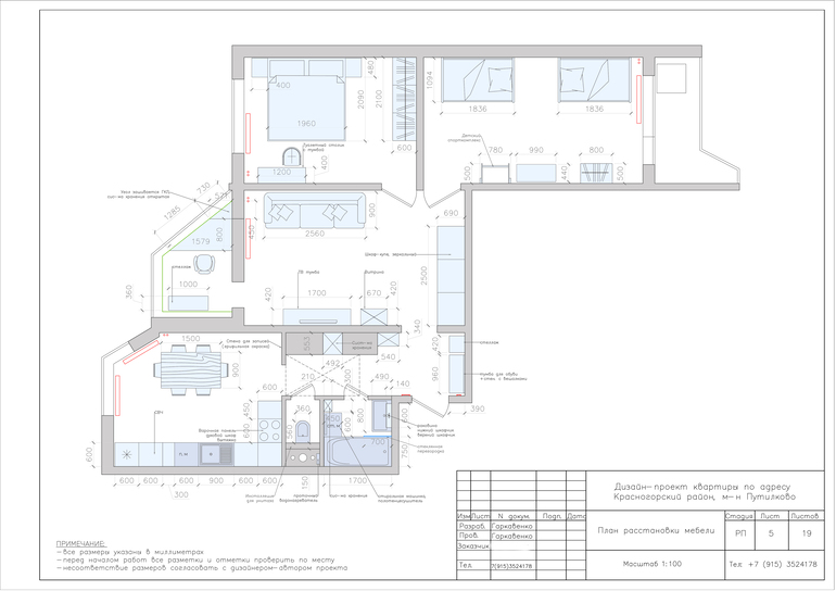
Авторские проекты дизайнеров.(Посты не по теме будут удаляться!)Дизайн-проект трехкомнатной квартиры площадью 78 кв.м.(г.Москва).Основные пожелания заказчиков-это много пространства,света и натуральные экологические материалы. Поэтому цветовая палитра максимально приближена к природной - травянистые и лиственные оттенки зеленого в гостиной и на кухне, насыщенные краски моря в детской и небесного свода в спальне.

Балкон присоединили к гостиной,так появилась отдельная рабочая зона.Помещение полностью утеплено по периметру и были заменены окна.




Детская для двух активных мальчиков-близняшек.На полу пробковое покрытие,стены под окраску.Мебель Hoff и Ikea.

Юлиана (архитектор-дизайнер)
.Изначально это был диван французского производителя (фирму уже и не вспомню),нашли в Экспострое. Но потом бюджет чуть изменился и решили заменить на вот такой http://www.wajnert.pl/lista-kolekcji/params/kol/Life/meble/wypoczynkowe .Оба варианта с доп.спальным местом,во втором регулируемые высокие подголовники и большой выбор тканей.
20.11.2015
Ответить
Елена
а у вас есть ракурс на стену гостинной на шкаф?! я бы его хотела посмотреть.
на плане открывание дверей спальни будет так по факту?
19.11.2015
Ответить
Юлиана (архитектор-дизайнер)
Двери уже установили и решили,что открываться они будут в другую сторону))
20.11.2015
Ответить
Анна
Все нравится, просто супер, кроме сиреневой стены с плинтусами потолочными в детской! ;)
19.11.2015
Ответить
businka
Мой стиль. абсолютно тоже говорила дизайнеру))) не подскажите что за споты на кухне?
19.11.2015
Ответить
Юлиана (архитектор-дизайнер)
http://www.svetonoff.ru/index.php?pid=37&product_id=110163
20.11.2015
Ответить
Танюша
Симпатично! Подскажите, как столешница к стиралке крепится? Тоже хотела, на кронштейнах, но отказалась.
19.11.2015
Ответить
Юлиана (архитектор-дизайнер)
Спасибо.Столешница закреплена на плоских кронштейнах к стене с зазором между стиральной машинкой.Так как у нас площадь не большая,то мы не усиливали конструкцию металлическими уголками.
20.11.2015
Ответить