Дизайн-проект "Дом в Провансе". Полная версия
Авторские проекты дизайнеров.(Посты не по теме будут удаляться!)Всем привет!
Наконец-то, я могу показать Вам полную версию одного из самых масштабных моих проектов.
219 м2, два этажа, 16 помещений и 2,5 месяца работы.
Модератор меня предупредил, что нужно подробное описание к постам, а то опять удалят пост из категории. Ну что ж, держитесь. Огромный проект, да еще и с описаниями, это реальная простыня получится)). Постараюсь как-нибудь и нашим и вашим угодить;)
Семья из 3-х человек, мама, папа, маленький сын. Плюс, у них часто будут гостить родители. Дом естественно пригоден для круглогодичного проживания, но хозяева планируют проводить здесь время только на выходных и каникулах.
Интерьер выполнен в стиле прованс, при этом упор на свет и чистоту. Такой вот облегченный вариант, без переизбытка деталей.
Итак, приступим.
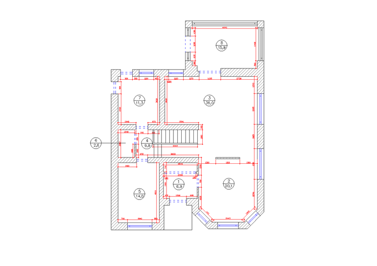
План перепланировки первого этажа.
Здесь я только добавила с\у между гостевой и котельной и поставила перегородку для ТВ по центру гостиной (визуально разделив этом зону столовой и гостиной).

1. Прихожая
2. Гостиная
3. Кухня-столовая
4. Коридор
5. Гостевая
6. с/у
7. Котельная
8. Веранда
План расстановки мебели первого этажа:

1.

2. Гостиная

3. Кухня-столовая

4. Коридор

5. Гостевая

6. Санузел

7. Котельная (здесь, кроме самого котла, стиральная и сушильная машина, раковина, душ для помывки колес детской коляски, доп. встроенная морозильная камера и два шкафа для хранения).

8. Веранда

План перепланировки мансарды.
Здесь было одно большое помещение из которого мы соорудили спальню, детскую, гардеробную, кабинет и малый санузел. Большая ванная и гостевая так и предполагались на своих местах.
На мансарде очень сложная конструкция потолков. Мне пришлось просто зашить весь этот сумбур под обычный мансардный потолок. Немного покипел мозг, честно говоря, пока разобралась во всем этом.

9. Коридор
10. Ванная
11. Малый с/у
12. Гардеробная
13. Спальня
14. Детская
15. Кабинет
16. Гостевая
План расстановки мебели на мансарде
9. Коридор

10. Ванная


11. Малый с/у

13. Спальня

14. Детская

15. Кабинет

16. Гостевая

Если будут вопросы по материалам или еще по чему-то, задавайте в комментах, с удовольствием отвечу.
По всем вопросам пишите, звоните сюда:
Моя почта: Naamah1987@yandex.ru
Мой телефон: 8-905-767-13-32
а заказчикам то понравилось ?