Помогите пожалуйста с кухней
Интерьерное решение кухниДоброй ночи!
Давно читаю сообщество и наконец-то мы получили долгожданные ключи!
Рисую кухню уже, наверное, 4й или 5й вариант.
Имеем следующие исходные данные (общая площадь кухни 8,4 кв. м.):

Готовы нарастить стену, у входа в кухню, оставив проем 800-750мм.
Рисую сама в икеевском планировщике.
Пытаюсь уместить встроенный холодильник, встроенную микроволновку, ПММ 45см, волшебный угол, мойку, вытяжку - угольный фильтр, т.к. в доме принудительная система вентиляции и самое для меня сложное, разместить телевизор, чтобы его было удобно смотреть из-за стола (который будет естественно в углу). Вариант повесить над мойкой уже был, не нравится, что второй человек всегда сидит спиной. Поэтому в предпочтении разместить его на стене, которая 2.89м. Сейчас в моем плане он находится под шкафом на 60 см, слева от плиты (сам небольшой, высота 39см ширина 55см).
Верхние шкафы делаем высокие, 100см.
Очень жду конструктивную критику и ваше мнение.


Ольга
Я бы ТВ повесила на противоположную гарнитуру стену.Микроволновку возле варочной, в нишу для предполагающего ТВ. Логичнее. Что то разогревается на варочной, что то в микроволновке. Не нужно лишних движений. И смущает мойка с краю. Как аккуратно не мой посуду-брызги все равно летят. Постоянно будет мокрый пол при входе, а это не безопасно. Угловой шкаф сделала бы без стекла.
21.01.2016
Ответить
margarita_vl
Если его повесить на противоположную стену, то он получится прямо над столом(
22.01.2016
Ответить
Натали
Мне кажется, встроенная черная микроволновка не вписывается с эти светлые фасады. Я бы сделала просто шкаф, куда поставила обычную микроволновку, в использовании очень удобно, у меня дома так. А то как-то она у вас сильно в глаза бросается... Или вы просто расстановку сделали, а фасады другие будут по стилю и цвету?
21.01.2016
Ответить
margarita_vl
на цвет микроволновки можно не обращать внимания))) Она изображена просто схематично, для расстановки
22.01.2016
Ответить
Натали
По поводу тв - мне кажется, что пар и гарь от плиты будут попадать прям на экран тв... Как вариант (если нужно именно на этой стене его оставить) - вместо плиты сделать мойку
22.01.2016
Ответить
Евгения Акимова ПРО Дизайнер
а приложите план квартиры. может там как-то можно стеной поиграть и диван уместить?
22.01.2016
Ответить
margarita_vl
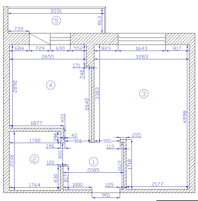
Вот наш план.
Но я так понимаю, если двигать стену между кухней и комнатой, то придется согласовывать этот вариант.
Мы пока что планируем увеличить прихожую и продвинуть стену с комнатой в сторону комнаты на 30см.
Но я так понимаю, если двигать стену между кухней и комнатой, то придется согласовывать этот вариант.
Мы пока что планируем увеличить прихожую и продвинуть стену с комнатой в сторону комнаты на 30см.
23.01.2016
Ответить
Алёна фотостудия Мгновение Железнодорожный
Я подумала бы сделать кухню в ряд, оставив мойку, посудомойку, плиту и шкаф с выдвижными..все кастрюли можно убрать на балкон, а самые используемые в шкаф под мойку, врезав там полку...минусы: маленькая рабочая поверность, плюсы: больше свободного места, если вы собираетесь туда и диван поставить...
21.01.2016
Ответить
margarita_vl
На счет дивана уже понимаем, что врядли.
Скорее уже будет столовая группа, т.к. в том углу выступ стены и батарея с трубами отнимают много места(
21.01.2016
Ответить
Елена
люблю планировщик икеа. Смотрю на низ - вопросов вообще не вызывает, все к месту, рабочий треугольник соблюден, поверхности для готовки достаточно. Волшебный угол в угловом шкафу, так? У варочной панели - соблюдена симметрия, великолепно.Выдвижные ящики весьма полезнее обычных полок, это точно. Встроенный холодильник - очень грамотный выход в классической кухне, отдельно стоящий крайне сложно вписать.
Теперь по верхним шкафам. Сразу скажу, Ваша первоначальная мысль про тв на стене с мойкой - отличная. У нас так было на одной из прошлых квартир. Даже если кто-то из домочадцев сидел спиной к тв, страданий не было. У нас на кухне был вечный табун из родственников, хватало разговоров, чаепитий, посиделок. На новой кухне я принципиально не стала ставить тв - в этой комнате мы кушаем, общаемся, не отвлекаясь на новости и мультики. И шкафы я бы оставила только по одной стене, где варка, соблюдая симметрию около варочной панели.
хотя нет. все же угловые.Сдвинуть мойку вправо настолько, чтобы тв повесился, над мойкой сушку, на тв можно тоже шкаф
21.01.2016
Ответить
margarita_vl
Спасибо за Ваше мнение)
Это кухня для двоих, для нас с мужем. И как раз любим посидеть на кухне и смотреть ТВ. Для нас это важный момент, почему я создала этот пост.
На счет сдвинуть мойку вправо, получается вот такой вариант
На мой взгляд уходит симметрия верхних и нижних шкафов и рабочей поверхности становится меньше, т.к. на столешнице, которая от посудомойки уже толком ничего делать не будешь. Только поставить какие-то приборы или временно положить продукты.
На мой взгляд уходит симметрия верхних и нижних шкафов и рабочей поверхности становится меньше, т.к. на столешнице, которая от посудомойки уже толком ничего делать не будешь. Только поставить какие-то приборы или временно положить продукты.
21.01.2016
Ответить
Елена
да, уже не так просторно получается. Хотя можно и варочную поставить 2хконфорку, и шкафчик крайний левый верхний совсем убрать.. и не следовать симметрии около варки-духовки, тогда можно еще выкроить для рабочей зоны достаточно места... Есть еще идеи, но если Вам принципиально ТВ на другую стену вешать, то они Вам не помогут, увы.
21.01.2016
Ответить
Riole2002
А какой у икеи волшебный угол? 2 сетки или круглая с выбранной четвертью?
если 2 сетки то для них фасад минимум 45см нужен
дальше
зачем вам столько маленьких ящиков
под мойкой если делать такое разделение - то верхние два будут глухие
слева от мойки оставляйте 3
справа 2 ящика
угловой точно хотите со стеклом? может глухой - из практичной тзр?
сушка одноуровневая? или второй уровень за стеклом (просвет будет)
под духовкой лучше ручку не ставить - она там лишняя - но это мое личное мнение
20.01.2016
Ответить
margarita_vl
Увы, именно так ее дробит планировщик, если выбрать другой более логичный фасад, то туда автоматически уже не впихнуть выбранный холодильник.
21.01.2016
Ответить
margarita_vl
волшебный угол, это круглая с выбранной четвертью, размер у этого шкафа в икее 88 на 88.
Под мойкой верхний ящик действительно глухой, после это идет одна дверь с ручкой по середине, возможно тут не правильно выбрала стилевое решение, раз она смотрится как поделенная на ящики.
"слева от мойки оставляйте 3
справа 2 ящика"
не поняла о чем тут речь, слева от мойки уже нет никаких шкафов, а справа это посудомойка.
Сушка двухуровневая, спасибо за совет, подумаю.
Просто не хочется делать все шкафы глухими, хочется добавить немного легкости за счет стеклянных элементов, т.к. высота шкафов 100см, именно поэтому выбрала угловой со стеклом, но еще размышляю над этим.
21.01.2016
Ответить