Перепланировка двушки в трешку
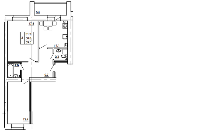
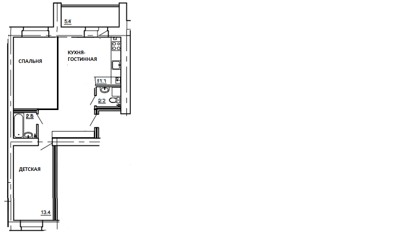
Вопросы и ответыДобрый день, помогите ничего в голову не приходит как сделать перепланировку из двушки в трешку, хочу полноценную детскую и спальню, и конечно же гостиную. В комнату 13,4 м, уже заказали детскую ее не надо менять. Заранее всем спасибо.
катя
утеплив балкон места не много прибавится так как там стену ломать нельзя и можно только убрать балконное окно
вот и я уже голову сломала , написала может кто еще чего новенького предложит
вот и я уже голову сломала , написала может кто еще чего новенького предложит
25.01.2016
Ответить
Мария
А вы не хотите утеплить балкон и засчет этого увеличить кухню? Будет кухня - гостиная.
25.01.2016
Ответить
катя
утеплив балкон получается большая разница с полом да и хочется чтоб было место для стола и для отдыха в виде дивана
25.01.2016
Ответить
Мария
а вы хотите полноценную спальню? Если не принципиально, можно сделать перегородку в комнате. У нас однушка. Одна комната 18 метров. мы перегородку сделали. С одной стороны кровать, с другой диван и стенка. У нас вот так примерно было до рождения ребенка
25.01.2016
Ответить
Евгения Акимова ПРО Дизайнер
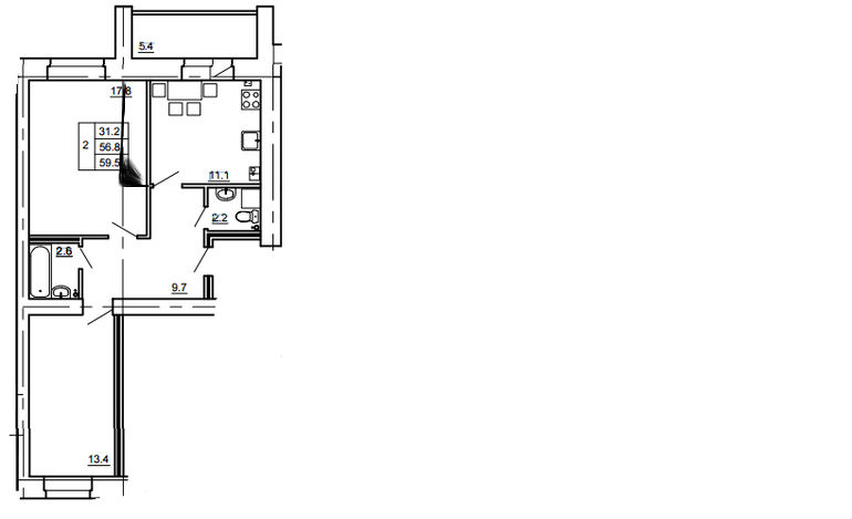
к сожалению, вариантов у Вас немного. только двигать стену влево максимально к окну
25.01.2016
Ответить
полина
Сделать совмещены санузел,перенести стену кухни,получится кухня -гостиннвя
25.01.2016
Ответить
Елена
сдвиньте стену влево, чтобы пошире получилась кухня-гостиная, и отдельно 2 спальни
25.01.2016
Ответить
Katusik
у меня бывший муж перенёс кухню в гостиную, а там где кухня, сделал комнату. Все коммуникации в стене между комнатами, типо если придут проверять и заорут, то можно просто перенести гарнитур к этой же стене только обратно на кухню. Вытяжка идёт под гипсокартонным потолком .
25.01.2016
Ответить
или часть стены сдвинуть влево, а в спальне ниша для шкафа появится.
