За кадром или ремонтные будни 2!
Авторские проекты дизайнеров.(Посты не по теме будут удаляться!)Всем привет! Продолжаю свою строительную эпопею трехкомнатной квартиры. Почти во всех комнатах уже повешены шторы, с боями докуплена мебель, осталось совсем чуть-чуть. Следующие фотографии будут уже от профессионального фотографа! ;) Хотела поделиться раньше, но пришлось отдохнуть в больнице.. И теперь просто заклинаю: любите себя и следите за своим здоровьем!
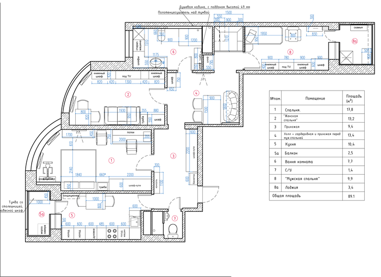
Напомню планировку квартиры:

В комментариях к прошлому посту предлагали показать фотографии уже обжитой квартиры с "зеленым" стулом и вазочками.)) Что ж... ниже фотографии прихожей, только вместо "зеленого" стула красный ковер. В прихожей еще должна появиться банкетка у шкафа-купе и приставная консоль с полочками для сумок у зеркала. Должны исчезнуть темная тумба и ковер. Я надеюсь. :)

Очень мне нравятся выбранные бра и зеркало. Отошли от эскизов и выбрали менее вычурный и более благородный вариант.

Несколько деталей. Ручки - одно загляденье, а главное очень удобные. Двери заказывали в Александрийских дверях, а ручки купили отдельно, так как на тот момент были задержки с поставками в Александрийских. Да и, честно говоря, Александрийские двери не посоветую. А вот выключатели посоветую, это Legrand Valena с серебряными штрихами. Маленький штришок - а как приятно))

Маленький санузел тоже обжился. Сфотографировала поближе плитку с супер эпоксидной затиркой.


Следующая комната - кухня. Тут все никак не доделают фасады, подсветки столешницы и стульев не хватает. Хозяева выбрали гладкие, без филенок, фасады из соображений удобства мытья. Чтобы кухня не выпадала из стиля всей квартиры, подобрали шторы, светильники и стулья с классическим узором- вьюнком. На балконе установили продолжение кухонного гарнитура.
В хозяйской спальне почти доустановили шкаф-кровать. Качество хорошее, тоже рекомендую. Фирма МЕТРА. Открывается все плавно, четко, мебель крепкая и массивная. Крупный глянцевый фасад и все грани выполнены идеально. Но есть одно НО. Перед новым годом лучше мебель вообще нигде не заказывать, привезли не с тем фасадом. У шкафа кровати должен был быть кремовый фасад по центру, как у тумбочки прикроватной. :( Будем просить переделывать.

Холл тоже почти доделали. Ждем сюда только мебель - скамеечку, березовые стол и стулья.


Далее спальня для бабушки. Так как бабушка попросила оставить свою старую мебель, то стояла цель облегчить и освежить комнату текстилем. Выбрали очень легкие нежные шторы, для старого стола из ткани той же коллекции сшили скатерть. Сошьем нежные голубые чехлы для подушек на диван (фото образцов тоже есть) и покрывало из кремового микровельвета. Ковер искали голубой, но в итоге купили простенький с цветочками бабушке на радость. ;)


В ванной комнате тоже уже повесили римскую штору. Мебель уже третий раз перекрашивать отправляем. Филенчатые фасады в углах не прокрашивали до конца, до сих пор ждем. Ох уж эти предновогодние заказы.. Но в целом, самая красивая комната, на мой взгляд! Повесили зеркало. При ближайшем рассмотрении зеркало выглядит как настоящий состаренный металл, а на самом деле крашенный пластик. И для влажной комнаты хорошо, и не дорого вышло


В комнату к дедушке особо не зайдешь, поэтому только одну фотографию покажу с новыми шторами.

Ремонт приближается к долгожданному концу. Безумно приятно, что удалось помочь в реализации еще одной мечты. :) Всем спасибо за внимание!