Нужна помощь с расстановкой мебели в маленькой гостиной
Что-то с гостиной у меня ступор. Девочки, помогите, пожалуйста, расставить мебель в маленькой гостиной 12,5 кв м, которая должна в будущем стать детской. Из обязательных элементов диван, телевизор, компьютерный стол, компьютерное кресло. Также хотелось бы пару шкафов-ватрин маленьких, журнальный столик. Может быть, тумбочку какую под телек. Много слишком мебели для такой крошки, да?
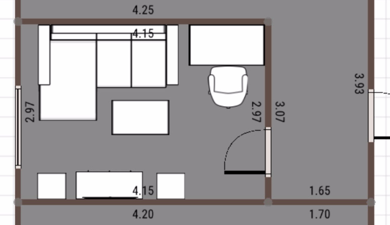
Пыталась впихнуть небольшой угловой диван. Но видимо, не получится... Под катом мои мысли по этому поводу 
Подскажите, что куда лучше? Может, что лишнее и вообще выкинуть? Дверь в комнату можем перенести, но надо ли? Если сделать по центру, она окажется прямо напротив входной двери...
Татьяна
Я бы оставила угловой диван, но выкинула стол со стулом. Переходите на портативную технику ))
01.02.2016
Ответить
Татьяна
А с портативной техникой сидеть стол не нужен? Или на коленочках на диване предлагаете? У меня муж айтишник, часто работает дома, поэтому нужен хороший мощный комп и удобное рабочее место за ним.
01.02.2016
Ответить
Татьяна
Почему бы и нет? Не буду пускать в пространные рассуждения о том, что десктопы давно уже начали отмирать как класс и ваш муж по сути цепляется за костыли. У вас напротив дивана большой телик, к нему спокойно подключается ноут. А уж про "хороший мощный комп" с появлением многоядерных процессоров можно не беспокоиться.
01.02.2016
Ответить
Татьяна
Вам просто поспорить или вы профессионально работаете за компьютером? За ноутбуком можно работать, но сидеть при этом надо за столом, в удобном кресле. А не кое-как развалившись на диване. Я знаю, о чем говорю, тоже работаю в этой сфере. У нас все, кто взял ноут в качестве рабочей машины на работе, теперь заказали к нему 2 приличных монитора и стандартную клавиатуру. С дивана хорошо только ролики в ютьюбе смотреть и комменты на ББ писать.
01.02.2016
Ответить
Татьяна
Вообще, изначально предложить вариант, потому что у вас самой звучит мысль, что если пытаться впихнуть все, то будет загромождение вещей. А потом сработала реакция, что если высказывание содержит вопросительное предложение, значит на него надо ответить.
02.02.2016
Ответить
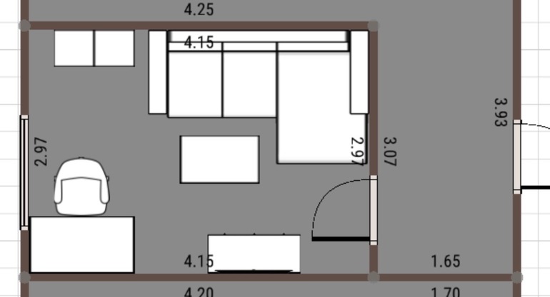
lelya
Мне наиболее симпатичен второй вариант расстановки мебели. Небольшой угловой диванчик должен отлично вписаться. Чтобы комната не выглядела загроможденной можно выбрать компактные витрины из стекла и металла (например) и такой-же по стилю придиванный столик.
Очень хорошего эффекта можно достичь, используя подвесную мебель (тумба под тв и витрины, которые крепятся к стене), это создает эффект парящей в воздухе мебели и помогает визуально облегчить интерьер. Особенно пристальное внимание уделите выбору компьютерного стола и рабочего стула, вот эти два предмета реально могут загромоздить вашу комнату покруче любого, даже самого большого углового дивана. Так называемые кресла руководителей, на колесиках, да еще с высокой спинкой могут смотреться очень внушительно и громоздко в таком небольшом помещении. А так я не скажу что площадь нереально маленькая для такого количества мебели, главное выбрать компактную, изящную мебель "правильных" цветов и фактур и получится отличная комната!
Очень хорошего эффекта можно достичь, используя подвесную мебель (тумба под тв и витрины, которые крепятся к стене), это создает эффект парящей в воздухе мебели и помогает визуально облегчить интерьер. Особенно пристальное внимание уделите выбору компьютерного стола и рабочего стула, вот эти два предмета реально могут загромоздить вашу комнату покруче любого, даже самого большого углового дивана. Так называемые кресла руководителей, на колесиках, да еще с высокой спинкой могут смотреться очень внушительно и громоздко в таком небольшом помещении. А так я не скажу что площадь нереально маленькая для такого количества мебели, главное выбрать компактную, изящную мебель "правильных" цветов и фактур и получится отличная комната!
01.02.2016
Ответить
Татьяна
Спасибо за ответ! Да, со столиком я что-то чересчур расмахнулась, надо покомпактнее выбрать, да и тумбу под ТВ тоже.
01.02.2016
Ответить
Мария
Здравствуйте! Меня зовут Мария, я архитектор-дизайнер, нужна помощь профессионала - пишите!)
01.02.2016
Ответить
Ирина
У Вас балкон или просто окно ? Мне нравится первый вариант или как в первом - но диван без угла .
01.02.2016
Ответить
Елена
Если Оч хочется угловой, то мне нравится 1 вариант, диван не сразу у двери... Но надо будет хорошо продумать свет у столика компьютерного.... И не совсем понятны размеры дивана и столика.
01.02.2016
Ответить
Татьяна
Диван угловой я тут ставила 250х165, прямой 270х115. Размеры стола 130х70. Нам нужен не столик, а полноценный стол, потому что комп стационарный, муж на нем часто работает дома. Не слишком заставлено с угловым получается?
01.02.2016
Ответить
Елена
Думаю будет хорошо. Раз он 165 см...Стена 297 см. Отсается 132 см. Даже если что-то у стены как у Вас на картинке...добавим 40 см. Соотвественно проход около 90 см. Это нормальный проход. Не узкий. И столу компьютерному есть место. Думаю ок. будет.
01.02.2016
Ответить
