Новые фасады дома.
Постройка дома, этапы.Девушки, доброй ночи!
Все перерисовываем фасады, чтобы дом казался более легким, не монументальным, светлым. Отказались от серого камня, оставили только белую штукатурку и золотистый планкен. Посмотрите взглядом со стороны, нужно ли что поменять, принципиально не отклоняясь от курса?
Расстекловка окон не производилась, поэтому на частокол широких окон и кресты на угловых прошу внимания не обращать)) Поправим)) То же самое с мелкими секциями ограждений: они будут длиннее и визуально легче. Зачачи в пределах коррекции: сохранить высоту потолков, эксплуатируемую кровлю, планировку и окно на лестнице. Заранее спасибо за оценки и советы!




rita12
Сейчас , все больше популярно стало применять пенопластовый декор в фасаде. Вот и у нас такой же есть. Мы его тут https://arhi-plast.ru заказывали.
06.02.2020
Ответить
Катеринкина
Сыро...
очень не продуманный декор сейчас получился(((Он не подчеркивает необычную архитектуру, а превращает в офисное здание, которое покрасили шоб по ярче было...
Во первых...я посмотрела на старый эскиз...стоит добавить еще одну площадь фактур с камнем. Или деревянных плашек больше. Прям какую то одну стену закрыть.
Фишка в чем....ты хочешь легкости. А чтобы она была, надо немного сливатся с окружающей средой. У нас темно, у нас Россия. Такие светлые дома парят среди белых камней на юге. А у нас сосны все приземляют. Потемней надо делать.
04.02.2016
Ответить
akvitty
Мы сейчас кое-что решили изменить, как будет вариант - покажу) Хочется как раз светлый дом, участок не лесной, светлый, южный. И осторожнее нужно с центральной частью - она и так как пупок торчит. Решили добавлять серый или даже графитовый. И кое-где объем дополнительный))
04.02.2016
Ответить
Катеринкина
Ну может да...
края то у нас северные, освещенность не та.
В общем ждем)
05.02.2016
Ответить
akvitty
Ну так белый цвет отражает свет, это как раз хорошо, когда света мало))). Темные дома в нашем климате, имхо, клево смотрятся, когда они совсем небольшие. Или деревянные))
05.02.2016
Ответить
Катеринкина
Не....вопрос дозированности)) темный тоже не вариант конечно..точнее как..если нужна легкость, не тот случай)
08.02.2016
Ответить
akvitty
Да, хотелось бы светлый и легкий дом. Но и стиля хочется, бещусловно. Поэтому хочу добавить более насыщенный оттенок и кое-что поменять. Сейчас жду вариантов от архитектора. Есть несколько идей, в том числе по отделке)) Как получу - буду опять советоваться))
08.02.2016
Ответить
Elena
Настя, меня заинтересовала отделка дома. Вы к какому типу штукатурки склоняетесь?
04.02.2016
Ответить
marina
По фасаду не скажу- у нас обычно обыгрывают разными цветами штукатурки. Ну или камня. Штукатурка дешевле в разы, чем клинкер. На мой взгляд у вас много белого. И белый пачкается. Конечно можно керхерами помыть, но....надоест мыть. Крыша плоская в два раза дороже скатной. Нам делали над гаражом плоскую эксплуатируемую. Там такой пирог сложный.... Нужны хорошие мастера, потому что с плоской крышей чаще проблемы бывают если у мастеров руки из жо.... А по поводу чистить снег, как пишут, так зачем его чистить? Инженеры как раз и рассчитывают нагрузку( и вот снег то как раз и всчитывают).
04.02.2016
Ответить
Ninin
Я ниже написала зачем мы чистим. Марин снега нереально много. И когда это тает это мрак. И снега так много что сугробы сваливаются.
04.02.2016
Ответить
marina
У нас конечно снега не так много как у вас). Крыша с наклоном односкатная. И для снега какие то есть ограничители вроде. А на плоской- тает и тает. Может и падает не знаю. Не мешает как бы.
04.02.2016
Ответить
marina
Ой написала комент а потом глянула кому))))). Ну вобщем мы со своего ничего не счищаем. Как ваше строительство?
04.02.2016
Ответить
akvitty
Да, стоимость крыши мы знаем, но это решенный вопрос, спасибо)) Там инверсионная крыша со всеми вытекающими. Снег чистить не нужно, Вы правы!
Про фасады поняла, спасибо. Нужно думать, чего добавить.
04.02.2016
Ответить
marina
Напишу свой взгляд. На дома которые видела вживую. У нас много новостроек. И вот могу сказать просто светлый дом даже покрашенный в два , но близких по тону цвета, смотрится не так красиво как тот, что покрашен более контрастно. И темные дома вовсе не смотрятся массивными. Наоборот как то выглядят благородно. Есть у нас тут рядом два. Один такой светло- желтый а второй кремовый. Правда еще недостроенные и крыши не плоские , сложные такие крыши. Так вот как то выглядят незакончено. Хотя конечно и там и там еще внутренние работы ведутся и возможно будут еще и по фасаду что то делать, но, если останется все так как есть- то эти светлые цвета вовсе не придают домам легкости. А отсутствие контраста производит впечатление незаконченности. У соседа рялом домик- пока был непокрашен выглядел неказисто. А сейчас очень даже интересно. У него яркий контраст в штукатурке. Я сфоткаю как пойду на улицу и вам в личку вышлю, если хотите.) На мой взгляд ваше решение дерево на фасад- очень удачное и смотрится вживую потрясающе- я видела такие дома, но у вас как то оно как одно пятно. Нужно еще что то.... я бы не боялась темного. Конечно не все замазать черным, но все таки).
04.02.2016
Ответить
akvitty
Мы думаем как раз насчет третьего цвета - возмодно, серого, как ниже предложили! Думаю, это бы добавило дому фактурности! Я не боюсь темного или контраста, просто хочу внешнюю и внутреннюю отделку увязать единым стилем, поэтому ищу решение внутри задуманной внутренней цветовой гаммы))
Спасибо большое, согласна с Вашими рассуждениями!
04.02.2016
Ответить
marina
Вот еще раз посмотрела на ваш домик- наверное неплохо было бы вертикальными темными полосами окна обыграть. Особенно лестничные. И продлить полосу до земли. Я вам сейчас в личку вышлю фото. Для наглядности. ) здесь не могу. Нужно полную версию а у меня глюки в телефоне бывают.
04.02.2016
Ответить
Ninin
Если не против влезу со своим мнением. То что ниже написали крышу чистить: реально замучаетесь. Мы построили дом по проекту девушки с данного сайта. У нас 42 м кв эксплуатируемой кровли. Уже три раза чистили, в этом году очень много снега. И моментик у вас из практики который хочется подсказать. Навес над входом у вас очень маленький. Он очень нужен. 1. Например идет теплый дождь и просто постоять на улице около дома. Или пришли 4-5 человек и вы ключем открываете дверь. У вас там ступеньки там спуск. Я бы навес продлила на 4 картинке до правой стены и там бы он соеденился с балконным. По цвету меня очень смущает чисто белые стены. Штукатурка... в нашем климате. У нас в этом году снег до окон. А сейчас все тает. Что будет с белым цветом. Мы еще фасады не делали. Тоже из одной крайности в другую кидаемся. Пока на картинке мы свой белый заменили на очень светло серый. И вставки темно серого. И меня смущает дерево и штукатурка. Что то будет выступать или в ровень? И цвет дерева очень ярко выделяется на доме будет. Если интересно вот про который я говорю. Мы совсем немного его изменили. И цвет тоже переиграем. Навес который сделан над входом и переходит в гараж очень удобен. https://m.babyblog.ru/community/post/housedesign/1735465
04.02.2016
Ответить
Ninin
Еще напишу про плоскую крышу. Не знаю ксть у вас чердак или нет? Мы утеплили пенополистеролом для плоских крыш 20 см. 10 см стяжка. 5 слоев всяких рубероидных дорогих штук и мастие. Эти 42 метра в два раза дороже односкатной крыши размером 80 м кв. Крыша в результате в -20 гр холодная. Будем теперь еще снизу 15 см ватой утеплять и подшивать. Дальше не увидела у вас слив воды наружний. Значит у вас на крыше планируются воронки и все это будет течь по трубам (4 минимум в вашей планировке) внутри дома и в канализацию. 1. Это шум постоянный. Даже если обматаете трубу шумкой. Толщина трубы 15 см минимум. А шумки минимум вам нужен будет 1 см. Красота внутри помещения. Доступ к трубе. Если не будете снег чистить то зимой она и забиться может и повредиться и все что угодно. У нас в многоэтажке такие трубы в подъезде. Весной при сильных ливнях не выдержали и рванули. Вода лилась просто с 4 этажа рекой. Все что на крыше накопилось. Поэтому чистить при таких снегах обязательно. А так же у нас в доме на крыше снег наметает и больше всего около стены, около 1 м. А это газобетон там нет у нас защиты. Вот и поэтому тоже чистим. И у вас на крыше выступ, вокруг него и будет собираться снег. Мы свои стоки сделали внешними и чтоб они не забивались чистим крышу. И снега так много что он свисает даже с плоской крыши еще страшнее. Есть идея сделать электроподогрев на эксплуатируемой кровле. Посчитали очень дорого делать полноценный. Вообщем очень хорошо подумайте.
04.02.2016
Ответить
akvitty
Крыша без чердака. Про утепление знаем. Поверьте, технологически утеплить плоскую крышу проще, чем распространенную мансардную.
Сливы все внутренние, где Вы нашли на проекте внешние водостоки? Нет их. Все сливы рассчитвет конструктор, шумоизолирует, добавит подогрев и ревизионные двери.
Да, и та история, что Вы описали, - следствие замерзания сточной трубы, никак не связано с количеством снега. Распространенная беда. Экономят на отоплении сточных труб.
А вот внешние стоки при плоской кровле - это плохая идея. Вы обречены чистить сгег, чтобы себя обезопасить. Ведь разуклонка у Вас к внешним краям, где водостоки. А это - все шансы получить сход снега при оттепели прямо на головы людей, стоящих внизу. Поэтому и свисает он у Вас, кстати.
К слову, много заблуждений насчет плоских и скатных крыш. Скатные крыши тоже приходится периодически чистить. Когда во время снегопадов мокрый снег лежит на скатах. Иначе вся эта масса, сходя при оттепели вниз, ломает снегодержатели, сточные трубы и канавы, и тоже опасна для жильцов. Чистить скатную крышу - занятие куда более неприятное и опасное, чем чистить плоскую - поверьте, мой муж чистит сейчас периодически.
04.02.2016
Ответить
Ninin
Все что вы нписали про внутренние стоки это правильно. Но очень дорого. Подогревы и т.п. Поэтому мы сделали разуклонку и чистим снег. Я вас очень понимаю, насчет плоской крыши, так сами с мужем хотели и сделали себе. А дом ссылку которую я вписала это Марины выше, она вам коментарии писала. Посмотрите их дом. Мы построили точно такой, только где у них крытый гараж у нас комнаты. А снег до окон потому что в этом году его много. И цоколь у нас 20 см от земли. Идея была не поднимать дом высоко. Тоже мечта - без крыльца высокого. Мы своим домом очень довольны, просто говорю вам о трудностях.
04.02.2016
Ответить
akvitty
Да, дорого, но оно того стоит, раз уж решили делать плоскую кровлю))) Разуклонка будет внутрь, к стокам. В трубы кинем провода на обогрев. Тогда можно крышу не чистить - со снегом даже лучше, теплее. И у нас тоже низкий цоколь: 30 см, потому готовимся постоянно чистить отмостку, это просто необходимо. Иначе любые фасады, будь то штукатурка любого цвета или дерево, или любой другой "дышащий" материал - будет портиться. Даже керамогранит не любит стоять под снегом. Да, гемор, но лучше, чем делать высокую лестницу на крыльце.
Маринин дом я видела, мне он очень нравится. Мы пересекались в "загородных домах" на эту тему...
Да, спасибо Вам, что поделились своим опытом, будет повод многим задуматься над некоторыми вопросами перед строительством. С удовольствием бы посмотрела на Ваш дом, мне очень нравятся дома с плоской кровлей!
04.02.2016
Ответить
Ninin
Мы еще не достроили дом. У меня в дневнике есть одно фото. Это сторона противоположная входу. Мы только коробку успели за лето и осень поставить. По поводу паропроницаемости газобетона- штукатурки тоже не все паропроницаемы. И вы выше написали полимерная она как раз не дышит. Все продавцы только кричат что все паропроницаемое. Но этот показатель для нормального должен быть выше чем у блока. И тут сразу затык. Я нашла только один вид штукатурки который подходит. У нас отделка будет все штукатуркой.
04.02.2016
Ответить
akvitty
На самом деле мне показывали образец пластичной штукатурки с полимерами, паропроницаемость которой выше, чем у газобетона - что, собственно, и требуется. Дорогая, но лежит неплохо и не вредит стенам.
Загляру к Вам в днев, посмотрю, очень интересно!
04.02.2016
Ответить
Ninin
Они показывают и говорят рекламные фразы. Высокая паропроницаемость. Дышит и т.п. но они вам не скажут значение паропроницаемости. Значение у газобетона 0,15 - 0,25 мг(м·ч·Па). А у штукатурок о котрых вы говорите 0.033. И это очень мало по сравнению с газобетоном. Вы спросите у продавцов значение, они вам будут просто говорить слова высокое и все. Это маркетинг. Вот например посмотрите таблицу http://www.homeideal.ru/data/partable.html И вот про покрытия то же и как считается. http://www.stenovoy.ru/encyclopedia_bloki/otdelka-sten-iz-gazobetona.htm Дом кажется должен быть виден. Странно....
04.02.2016
Ответить
akvitty
У всех производителей есть документация, в которой есть все значения. Я ее всегда смотрю. У выбранного пока варианта паропроницаемость 0,257.
05.02.2016
Ответить
Ninin
Пришлите или напишите мне фирму. А то я что то не находила такой штукатурки кроме победитовой
05.02.2016
Ответить
akvitty
Я могу записать себе при следующем посещении арх.бюро (они и строят тоже), у них есть образцы и все значения для всех видов штукатурки. Как съезжу - могу кинуть в личку!
05.02.2016
Ответить
Ninin
Буду очень ждать. Так как я помешена на паропроницаемости и ищем штукатурку
05.02.2016
Ответить
akvitty
Можно поискать и в сети: группа штукатурок силикатно-силиконовые. То есть, сикон в некотором количестве добавлен для повышения эластичности, но основа силикатная штукатурка высокой паропроницаемости.
05.02.2016
Ответить
akvitty
1. Зачем Вы чистите снег с крыши?)) Ну лежит и лежит. Ну много и много. Только дом теплее от этого)))
2. Для того, чтобы побыть на улице во время дождя, мы делаем балкон специально. Продлевать козырек не будем, там дальше парковка под навесом - в том месте, куда Вы предлагаете продлить.
3. Насчет штукатурки знаю, но дом невозможно отделать непаропроницаемыми материалами. Это газобетон. Планкен и штукатурка в идеале - вровень, над этим будут работать конструкторы и архитекторы.
4.Как же так получилось, что у Вас снег до окон? Фасады (любые) нужно беречь от снега. Для этого просто обязательно чистить отмостку, чтобы снег у стен не поднимался выше цоколя.
С удовольствием посмотрела бы дом по ссылке, но она неактивная и не копируется полностью с телефона(( В каком разделе этого сооба искать?
Спасибо за замечания.
04.02.2016
Ответить
Kitti
имхо он монументальный из-за своего кубического монообъема. Штукатурка-стекло тут не поможет.
03.02.2016
Ответить
akvitty
Мы его стараемся "приземлить", как можем. В проекте, от которого отталкивались, потолки ниже, он более приземлен. Ищу способ добиться более легкого эффекта, не меняя высоту потолков. Так как жить внутри дома, и низкие потолки превратят просторные помещения в барак((( Ечли есть идеи, буду оч благодарна!
03.02.2016
Ответить
Kitti
Я не спец, но мне кажется, надо не приземлять, а разбивать объем. Там, дальше в каментах есть, как мне кажется, очень правильное предложение - разбить общий вид разными фактурами, цветами отделки. Тогда это будет не единый глобальный (монументальный) фасад, а как группа разных объемов (и желательно - форм). Тогда хоть в высоту, хоть в ширину можно наращивать общий объем сколько угодно, главное разбивать его на элементы. Как деревня в сравнении с одном небоскребом.
04.02.2016
Ответить
❅Юлька❅
Насть, мое мнение пока сыро. Объясню: желтый случайный, абсолютно. Он может быть и может быть очень хорошо обыгран. Но он должен поддерживаться, а не возникать случайными кусками. Тут вариант намного интереснее.
03.02.2016
Ответить
akvitty
Это на деле не желтый, а тонированное дерево (планкен из лиственницы), цвет что-то типа дуба натурального золотистого. В начальном варианте, на который ссыль, дерево темнее и коричневее. Но мне хочется посветлее...
03.02.2016
Ответить
❅Юлька❅
Насть, дело не в материале. Отделка (назовем ее так) случайна. Она плохо поддержана на 1 и 2 фото. Как бы сказать, как плевок майонеза на салате. Дом разваливается, нет целостности. Есть какие-то другие варианты фасадов? Пока халтура.
03.02.2016
Ответить
akvitty
Вариантов нет пока, но готова любые предложения выслушать!
Если что, Вот начальный проект...
03.02.2016
Ответить
❅Юлька❅
Начальный проект мне нравится намного больше. За счет серой (серо-бежевой?) плитки он смотрится органически. Плитка его уравновешивает, скрадывает монументальность. Кто делал раскладки фасадов, те, что в посте? Если нанятые архитекторы, можешь смело требовать переделывать.
03.02.2016
Ответить
akvitty
Дело в том, что серо-бежевый камень очень утяжеляет центральную часть сверху (так как центр подняли серьезно). С этой серой плиткой сверху как курятник торчит((( Можно планкена добавить, но куда? Плюс с плиткой проблема по креплению фасадов - дом из газобетона.
03.02.2016
Ответить
❅Юлька❅
Так, а если не плитка, а просто другая штукатурка? Черт с ней с фактурой. Можно обыграть цветом. Курятник... Допустим оставить курятник светлым, соответственно надо другие плоскости выделить. Как вариант (ни в коем случае не навязываю, просто как ты сама на это посмотришь) Можно поиграть с плоскостями
03.02.2016
Ответить
akvitty
Во, спасибо огромное! Мы думали насчет другого цвета и фактуры штукатурки!
03.02.2016
Ответить
❅Юлька❅
Посмотри пескоструй. Интересная техника отделки фасада. Как вариант вполне возможен.
03.02.2016
Ответить
akvitty
Ща гляну. Твой вариант мужу показала, ему понравилось)) Спасибо большое тебе!
03.02.2016
Ответить
❅Юлька❅
Не за что, если что-то надо, пиши мне, не стесняйся. Можно поиграть плоскостями)
03.02.2016
Ответить
❅Юлька❅
Один, замучаетесь чистить крышу) Ну и хорошо бы по планам пробежаться, если есть направь.
03.02.2016
Ответить
akvitty
А зачем ее чистить?)))
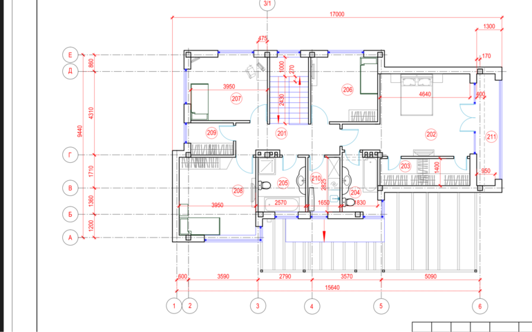
Планировки вот, но на расположение мебели внимания не обращай, оно будет другое! П.с. на первом этаже гостевая спальня, а на втором - кабинет в помещении 206.
03.02.2016
Ответить
❅Юлька❅
Так, Насть, рабочка есть (планы электрики, потолков, отопление и прочее)? Мебель меня меньше всего волнует, разве что встроенная. Пришли мне в личку планы с экспликацией. Завтра на свежую голову изучу.
03.02.2016
Ответить
akvitty
Не, пока инженерных и коструктивных проектов нет, застопорились на эскизных(( У меня в пдф все планировки с экспликациями есть. Могу на почту отправить. Или примерный вариант здесь:
Лови!
03.02.2016
Ответить
❅Юлька❅
Можно заменить темное дерево на золотистое, дом будет "легче", но я бы не отказывалась от третьего цвета и фактуры). В данном варианте он не утяжеляет, а расставляет акценты.
03.02.2016
Ответить
akvitty
Вот в реализации от третьего цвета по этой стороне отказались как раз - обрати внимание: только планкен и штукатурка. Дерево хочу светлее, как выше фото скинула.
03.02.2016
Ответить