Кухня,гостиная и спальня????
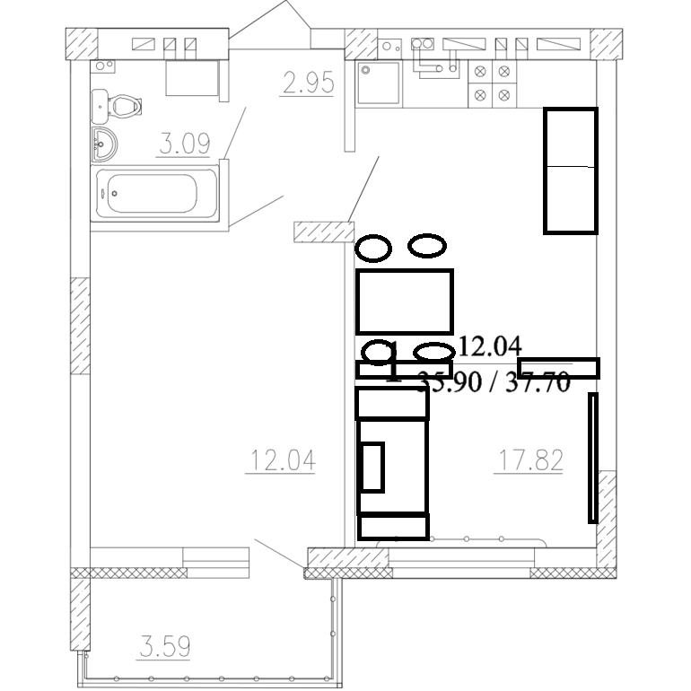
Вопросы и ответыДана комната 17.82 кв.м.В ней надо совместить кухню,гостиную и спальню.Спальню будем отделять раздвижными стеклянными дверями.Как лучше расставить мебель?Вся мебель будет покупаться новая.Какую цветовую гамму использовать для кухни,гостиной и спальни,что бы все со читалось?
Марина
в 17.82 кв тяжело разместить много мебели,поэтому я бы предложила диван-кровать.возле кузни стойка с холодильником и духовка +микроволновка встроенная в шкафу!напротив дивана телевизор
16.02.2016
Ответить
Анна
Вчера подобные планировки смотрела :) мечтаю оиквартире, но я хочу двушку! Кухня эта- шикарное пространство для разделения на 2 зоны, спальня около окна, перегородки- это правильно! Двери-купе можно широкие деревянные тоже. В кухне-гостиной поставить справа диван не большой, стол, стулья. На левую стену телек, если смотрите на нем что-то... Цвета выбирайте, какие нравятся. Тут только от ваших предпочтений зависит. Поищите воплощенные дизайн-проекты, чтобы хоть понять, чтоивам нравится.
Вот моя мечта ;)
Вот моя мечта ;)
16.02.2016
Ответить
Мария (www. vmrstudio.com )
У Вас вопрос очень обширный))) Ответ на него - это пол дизайн-проекта как минимум)
15.02.2016
Ответить
Vitalina
Если бы у меня были лишние деньги,я бы сюда не писала и не просила помощь и заказала дизайнера!!!!!
16.02.2016
Ответить
Ксения
Приличные стоят очень дорого, реально очень, площадь позволяет отделить спаленку стеклянными перегородками, где можно поставить кровать.
15.02.2016
Ответить
