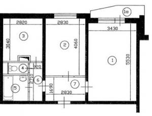
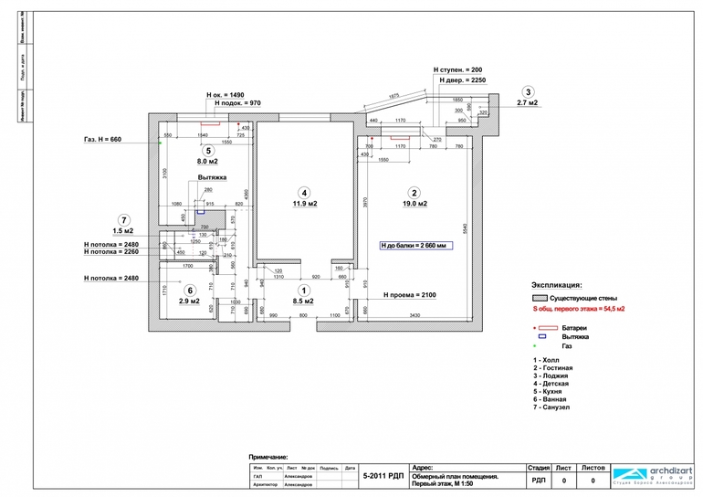
Подскажите по размерам стен в двушке п -44
Перепланировки стен. Согласование перепланировки квартир и нежилых помещений.имеется двушка п-44, в свое время сильно была изменена, все возращаем на свои места! Возник ряд вопросов! Подскажите по дверному проему в маленькую комнату, на сколько он отступает справа, если смотреть на него со входа! Плюс хотелось бв узнать ширину коридора! Интересует только у кого не было перепланировки никакой. Был ли когда то встроенный шкаф? Есть ли стеночки у дверного проема на кухню? И вопрос по вентеляционному коробу, стена справа от него углублена сильнее чем со стороны двери?

Мария (www. vmrstudio.com )
Елена,добрый день! Вы занимаетесь сейчас очень бесполезной работой...Дело в том, что у каждого застройщика размеры плавают. + размеры обычно одни до 9го этажа, а если квартиры выше, там и размеры чуть больше.
Так что идите к соседям с конфетами и просите помочь )
02.03.2016
Ответить
Elena-366
Эх... Да я сама знаю что разные, можно попробовать сходить, но соседи вряд ли счастливы будут... Мы сейчас такое творим в квартире, что я боюсь лишний раз вообще там появляться... Так что стараюсь хотя бы приблизительно...
02.03.2016
Ответить
Мария (www. vmrstudio.com )
Ну а зачем Вы довели до такого? Я надеюсь Вы соблюдаете режим шумных работ?)
02.03.2016
Ответить
Elena-366
Да, соблюдаем, мы не доводили... Родители мужа в свое время такую планировку серьезную сделали, а мы возвращаем все на места... Но и соседи боюсь вряд ли пустят. У них тоже есть серьезно переделанные вещи, по крайней мере одну я точно видела...
02.03.2016
Ответить
Elena-366
Ее недавно увидела, пришла когда батареи меняли, когда я попросила зайти и посмотреть что у них там случилось по ее жалобам, она была против (то ли преукрасила то ли тоже все неладно...
02.03.2016
Ответить
Марина
У ас п44т. Похожи. В иннете есть и на вашу планеровку полностью с размерами. А плана бти у нас нет?


02.03.2016
Ответить
Elena-366
План бти есть, но там нет таких замеров... А можете мне тыкнуть где в инете найти? Ванна и туалет у вас заводская коробка?
02.03.2016
Ответить
Elena-366
Спс большое, но не видно вот сколько от стены проем в маленькую комнату... В самом бти в архивах тоже не было указано...
02.03.2016
Ответить
Elena-366
Спасибо, интересно!!! А можно вопрос проем входной двери у вас 90 см? Или хотя бы сколько по полотну...
02.03.2016
Ответить
Марина
Дверной проем 77. Но мы еще не мегяли от прошлых хозяев (переехали на новый год). Будем наверное 90 ставить - чуть чуть расширять
02.03.2016
Ответить
Elena-366
Да я сейчас так задалась изучением всего))) так вот даже такие изменения считаются легкой планировкой)))) я сейчас все больше думаю стоит ли расширять ванну или нет, дело в том что сантех кабины у нас больше нет, и сейчас я думаю о 20 см, но вот инспекторов бти в своей квартире видеть я не очень хочу... Придируться ко всему...
02.03.2016
Ответить
Я просто по всем сайтам лазила. Вбивала планировка п44 с размерами
http://archdizart.ru/images/gallery/gil/ccc-9828457.jpg