Посоветуйте дизайн прихожей!!!!!11
Интерьерное решение прихожих, коридорчиков
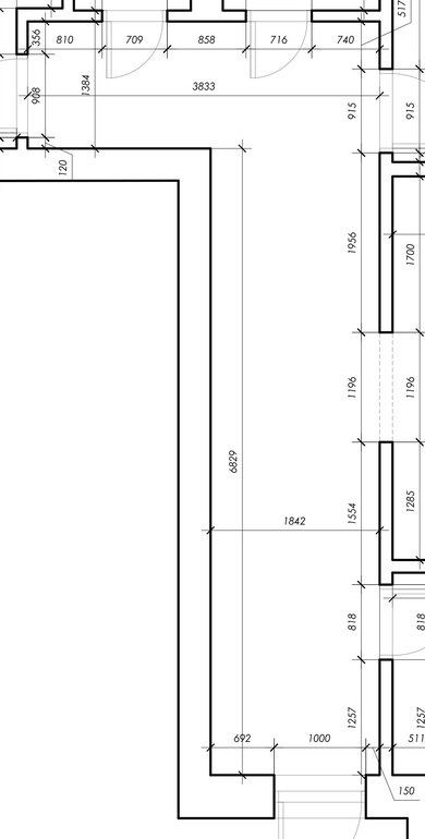
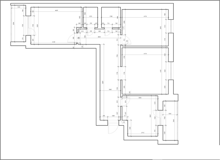
Вот таких размеров прихожая.
Nevesta495
У вас отличный коридор, ширина позволяет многое. Все зависит от желаний шкаф и библиотеку, консоль кресло и даже диван)) У меня такой же длины но уже 1,5 метра всего. У меня при входе будет стоять прихожая, заказали ждем похожа н эту (фото из интернета)
ну и моя прихожая (единственная фотка которая есть)
Я снимаю где-то с середины) Центральная часть покрашена магнитной краской и будет выложена карта мира из корешков посадочных талонов. Между дверями консоль и зеркало. На потолке будет 6-ти метровый шинопровод и 5 прожекторов.
ну и моя прихожая (единственная фотка которая есть)
Я снимаю где-то с середины) Центральная часть покрашена магнитной краской и будет выложена карта мира из корешков посадочных талонов. Между дверями консоль и зеркало. На потолке будет 6-ти метровый шинопровод и 5 прожекторов.
24.03.2016
Ответить
Александра Панькова
А я бы посмотрела всю планировку в целом - возможно, стоит скорректировать вообще всю квартиру, а то как-то 7 метров коридора не очень здорово.
23.03.2016
Ответить
Александра Панькова
Да.. не разбежишься.
Но в целом, если бы я делала проект, то можно было бы немножко подумать - опять же исходя из состава семьи и Ваших пожеланий. Хотя бы чуть более жизненную входную зону, чтобы было удобно прийти-раздеться-разуться.
23.03.2016
Ответить
Tanyscha3
как мне кажется слева просится угловая маленькая прихожка, напротив справа можно зеркало, а дальше неглубокий шкаф для верхней одежды. Прихожку по типу таких, (картинки с интернета):
23.03.2016
Ответить
Елена Тарасова (дизайн, 3D)
За вдохновением можно сюда http://www.houzz.ru/photos/prihozhaya
23.03.2016
Ответить
Вот весь план
