Скандинавские мотивы
Авторские проекты дизайнеров.(Посты не по теме будут удаляться!)Добрый день, дорогие читательницы!

Вот и подошел к концу еще один прекрасный проект, и я хочу поделиться с Вами результатами проделанной работы. Проект выполнялся на одном дыхании и практически все эскизы были утверждены с первого раза, за исключением некоторых мелочей, которые мы меняли по ходу работы. Стилевое направление близко мне по духу, и мы с заказчиками шли в одном направлении. Это очень здорово, когда полностью отвечаешь всем требованиям! Ребята остались довольны проделанной работой и скоро их ждет ремонт, а пока поделюсь результатами:
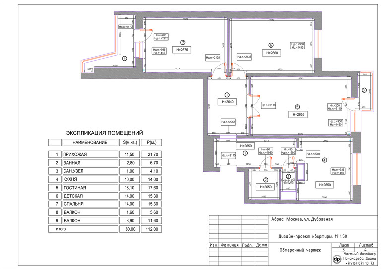
И так, речь пойдет о квартире в Москве площадью 80,0 квадратных метров в скандинавском стиле. Проект был продуман для семьи из трех человек: мама, папа и сын 9 лет. В будущем планируется пополнение. Работа, как всегда, началась с обмерного плана:

Ну, а дальше началось творчество. И началось оно с продуманного планировочного решения. Мы рассмотрели несколько вариантов и остановились на одном, которое идеально подходило под все требования заказчиков:

Обговорив за чашечкой кофе все важные детали, я приступила к следующему этапу-эскизы. Практически все эскизы были утверждены с первого раза, за исключением пары помещений, где надо было внести небольшие корректировки.

Входная зона получилась очень просторной. И если первая часть не вызывала никаких сомнений, что же там будет, то со второй пришлось поработать на славу...Мы долго не знали, что же там сделать. Было рассмотрено несколько вариантов. И в итоге сложилась идеальная картинка, которой остались все довольны! Холл, где выходы из всех комнат, было решено отдать под небольшую читальную комнату. Скажем так, зону relax. Чтобы можно было вечерком посидеть, почитать книгу и помечтать...



На кухне мы использовали ярко выраженную текстуру дерева, которая присуща скандинавскому стилю. Чтобы не перегрузить интерьер, ввели серо-белые тона, они немного успокоил и уравновесили интерьер.


Ванная само по себе не очень большая, поэтому там разместили все только самое необходимо и нужное.




В гостиной у нас все тоже только самое необходимое! Угловой диван джинсового оттенка, очень модного в этом сезоне, большая система под ТВ и рабочая зона, где расположился небольшой столик под ноутбук.
Чтобы немного разбавить интерьер, я ввела несколько ярких акцентов в текстиль и постеры, которые отлично в писались в общий концепт!


Надеюсь, Вы дочитали пост до конца и остались довольны проделанной работой, как и я!
Ну, а я хочу напомнить, каждый дизайн-проект разрабатывается индивидуально под каждого заказчика. И если создан такой проект, значит кому-то это нравится, и он готов жить в таком решении!