Детская для мальчика-подростка.
Интерьерное решение детской комнатыЧасто попадаются посты, в которых родители задаются вопросом как обустроить детскую комнату для мальчика, который уже не ребенок. Загляните, возможно, найдете ответ на свой вопрос.
https://bazar.babyblog.ru/item/382763
https://bazar.babyblog.ru/item/341937
Решила выложить детские комнаты из одного из проектов.
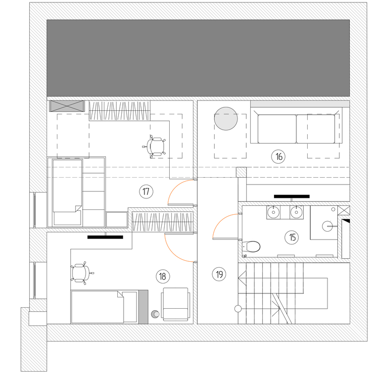
Имеется 3х этажный таунхаус, общей площадью 180 кв.м. Семья состоит из родителей и 4х детей. 4х летние двойняшки и два мальчика по 12 и 14 лет. Вот их комнаты я и решила вам показать.
Для парней был отдан мансардный этаж таунхауса. Площадь этажа небольшая, и комната каждого из мальчиков получилась 11 кв.м. Задача осложнялась скатом кровли, которые были во всех помещениях. Долго расписывать не стану. Сами все увидите.
План этажа

Для начала пойдем в комнату среднего сына (12 лет). Тематика комнаты была определена увлечением ребенка - хоккей. Проблему создавала балка посреди комнаты. Вот что получилось




Комната старшего сына (14 лет).
Тут никаких стилистических задач не стояло, поэтому просто и уютно, в духе всего минималистского дома.



И покажу вам небольшую игровую комнату. Даже скорее не игровую, а маленький кинотеатр, где можно провести время с друзьями.



Как мне кажется, это отличный пример рационального использования каждого квадратного метра.
Надеюсь, кого-то вдохновят эти эскизы на создание стильных и удобных комнат для ребенка.
Заходите в мой дневник и инстаграм randp_project