Домик для отдыха (внутри полезные идеи)
Авторские проекты дизайнеров.(Посты не по теме будут удаляться!)Моя компания, кроме всего прочего, занимается строительство домов из клееного бруса, а я их благоустройством. Пост будет полезен как загородным жителям, так и дачникам.
Проект экономичный. Мебель из гипермаркета hoff, светильники из недорогих компаний приличного Китая. Много писать не буду, т.к. большинство интересует визуальное представление. Если что-то интересно - задавайте вопросы.

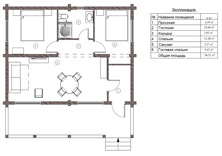
Итак - план. Домик маленький, рассчитан на 3-х гостей или семейную пару с ребенком.

Веранда

Гостиная


Спальня 1

Спальня 2 (конкретно в этом домике во второй спальне стоит детская кроватка, но есть варианты и со шкафом в нише)

Санузел

Хочу обратить внимание на устройство душ.кабины. Чтобы сохранить дерево, и не закатывать все в плитку, стены душ.кабины выполнены из прозрачного стекла, прикрепленного к брусу

А теперь полезные мелочи и идеи при обустройстве подобного плана домов
Электрика - наружная, крученая и выключатели/розетки в стиль


Было решено сохранить существующий уклон кровли, в связи с этим встал вопрос об освещении - помогли светильники типа "спот"

Обращу внимание на особенность покраски стен

Вот так обыгран внешний угол соединения стен из бруса

И покажу вам внешний вид домика

База отдыха еще не открыла свои ворота для посетителей. В этом домике проживает главнадзор за стройкой. А вообще там уютно, приятно приезжать на этот объект. И ездить туда придется еще долго)
