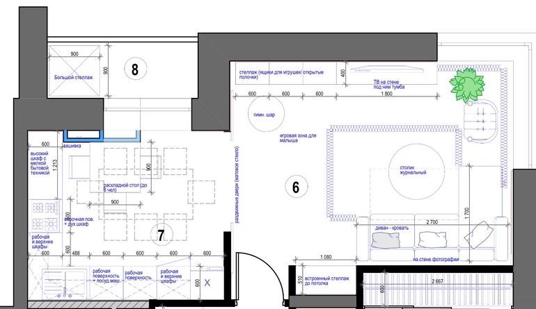
Из гостиной в детскую
Интерьерное решение детской комнатыКогда купили квартиру и начали работать над дизайном мне и в голову не пришло для ребёнка детскую спланировать. В итоге имеем 2к квартиру, спальню хотим так и оставить спальней, а из гостиной сделать детскую и часть оставить гостиной (она совмещена с кухней)
Как думаете? Реально? Предложите планировочки пожалуйста
Мебели в гостиной сейчас нет, кроме старого дивана и спорт комплекса сына

Маня
Удобная планировка квартиры. Конечно же реально. Рекомендую вам проконсультироваться у дизайнера это бесплатно) А так же рекомендую посмотреть различные проекты, дизайны интерьеров и мебель здесь либо тут
28.07.2016
Ответить