Дизайн квартиры
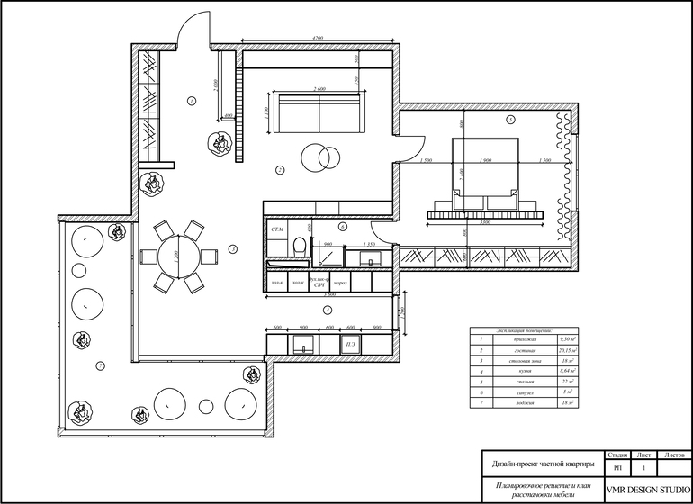
Авторские проекты дизайнеров.(Посты не по теме будут удаляться!)Всем привет! Хочу показать Вам один из наших последних проектов, на сегодняшний день он на стадии реализации :). Заказчица известная модель, у нее было пожелание получить на выходе современный интересный интерьер с "просторным" планировочным решением


Мы использовали в интерьере монохромные цвета, в качестве акцента использовали мраморные плиты (можно удешевить керамогранитом под мрамор). Все двери в интерьере со скрытыми коробками, ниже Вы сможете познакомиться с несколькими ракурсами интерьера :)









Пожалуйста не реагируйте бурно на холсты в интерьере ;), спасибо!
Подробнее с проектом можно ознакомиться на нашем сайте www.vmrstudio.com
Так же сейчас у нас действуют вдохновдляющие на ремонт скидки на разработку дизайн-проекта :)
Оля
Дизайн очень хороший, еще при оформлении квартиры нужно обязательно учитывать освещение. Приобрести хорошие светодиодные лампы можно приобрести вот здесь https://voltplaza.ru/lampocki/svetodiodnye-lampy/ , выбор там просто отличный.
19.12.2017
Ответить
Мария (www. vmrstudio.com )
Доброго времени суток! У всех свои пожелания, кто-то хочет монохромное, кто-то яркое и так далее :)
21.09.2016
Ответить
Nastya
Судя по планировке, гостей не предвидится))) Странный путь посещения туалета через спальню)) Отличное решение, при наличии второго санузла, а так очень неудобно. ИМХО
21.09.2016
Ответить
Мария (www. vmrstudio.com )
Доброй ночи, Анастасия! К сожалению Заказчица не поддалась отговорам от такого размещения двери в санузел :( Ее отдельное пожелание
21.09.2016
Ответить