Елена Гудына из двушки трешка
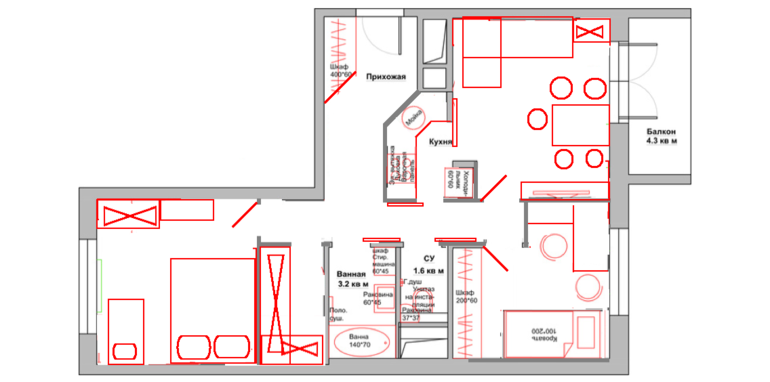
Авторские проекты дизайнеров.(Посты не по теме будут удаляться!)Мне нужна конструктивная критика. Заказчики супружеская пара, двое детей 5 лет и 6 месяцев и еще бабушка ей нужна отдельная комната. Задача : нужно три спальни и кухня отдельно от спален. Крутила вертела долго пришла вот к этому варианту, других не вижу, подскажите может есть другие варианты. Сливы и вентиляции две, где кухонная мойка и где унитаз. Вроде по нормам все проходит, на жилую зону я мойку не делаю. 

в 3д можно потом визуально отделить прихожую от кухни
Елена Гудына
Добрый день. Спасибо за отзыв. Лучше купить в ипотеку посвободнее пространство. Сделать его комфортным и красивым в соответствии с пожеланиями всех членом семьи.
13.08.2025
Ответить
Toma Samsonova
Мне нравиться, у нас похожая планировка, всегда мечтала о трёшки. Но вопрос, продавать двушку и ипотеку брать, или лучше сделать ремонт перепланировку. Наверное это потом надо будет узаконивать как-то.
11.08.2025
Ответить
Елена Гудына
Задумка у заказчиков такая: Утром кофе попить бутерброд сесть в кухне за маленький столик, а вот ужин когда вся семья вместе то в большой комнате за большим столом (бабушка молодая 50 лет и очень хорошо выглядит и живет с ними временно). Главная задача проекта, чтобы у детей в будущем были свои отдельные комнаты, а у родителей своя спальня. Заказчики категорически против чтобы был совместный су с ванной, дверь из туалета не должна быть в кухне, как можно больше сделать спальни, прихожая и кухня не особо важны, балкон нужно оставить, там будут велики, шины ну и всякое такое храниться.
19.11.2016
Ответить
Елена Гудына
А вот этот вариант совсем замечательный) три спальни и туалет не в кухне. Молодец)
20.11.2016
Ответить
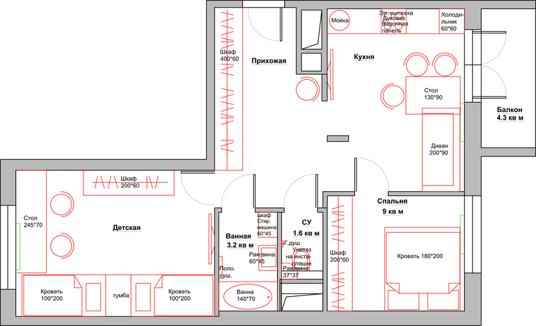
Elena
Здесь в большую комнату можно перенести спальную родителей, столик в кухне разместить по стене с холодильником (там где нарисовала может быть слишком мало места).
Мне лень было перерисовывать ;-).
Только мне показалось, когдаприкидывала по размерам размещение дверей, что может не пройти по размерам... надо вымерять и вырисовывать.
20.11.2016
Ответить
Елена Гудына
Вот этот вариант реально лучше моего) Тут нету ужасного коридора, и кухня как бы отдельно и не вагоном как у меня и отвечает всем требованиям супер!!!)
20.11.2016
Ответить
Елена Гудына
Но к сожалению им не пойдет так как хотят отдельно 3 спальни, чтобы у каждого ребенка была своя комната и плюс у них отдельная спальня от кухни
20.11.2016
Ответить
Elena
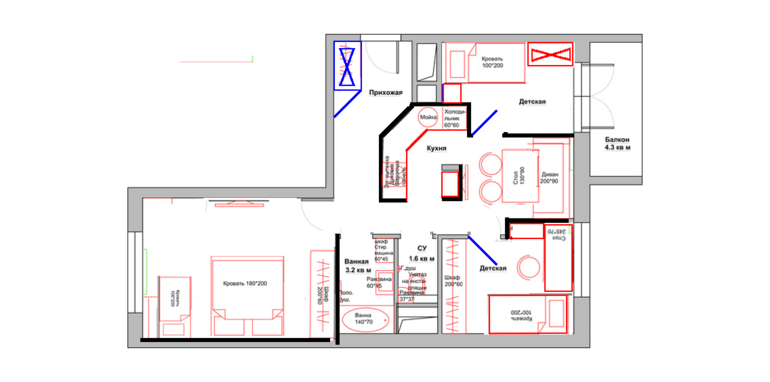
И еще один:
Здесь в кухню 2 входа. Если утром все собираются, а в гостиной спит бабушка, то в кухню вход из коридора, а вечером можно и из гостиной.
Здесь в кухню 2 входа. Если утром все собираются, а в гостиной спит бабушка, то в кухню вход из коридора, а вечером можно и из гостиной.
20.11.2016
Ответить
Елена Гудына
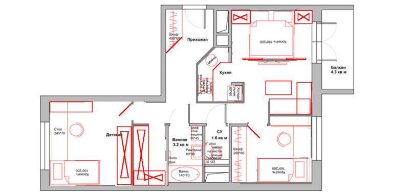
Вот этот вариант мне больше нравиться, но он не решает задачу, тут все таки две спальни, а надо три
18.11.2016
Ответить
Марго
Нельзя спальню супругов делать в кухне! Нельзя,чтобы за стенкой у супругов лилась вода. С точки зрения энергетики для пары не подходит эта комната.
В целом не плохо все.
18.11.2016
Ответить
Elena
Я бы предложила попробовать вот такой вариант:
Стены комнат для бабушки и детской построить максимально близко к окнам, чтобы между ними образовалась зона, где можно разместить обеденную зону с ТВ.
В комнату бабушки можно сделать раздвижные двери, чтобы в дневное время можно было их открыть и впустить естественный свет в обеденную зону.
Стены комнат для бабушки и детской построить максимально близко к окнам, чтобы между ними образовалась зона, где можно разместить обеденную зону с ТВ.
В комнату бабушки можно сделать раздвижные двери, чтобы в дневное время можно было их открыть и впустить естественный свет в обеденную зону.
18.11.2016
Ответить
Елена Гудына
Спасибо ) Интересное решение! Вас не смущает дверь из туалета прямо в кухне? И кухонная стенка не в одну линию, удобно ли готовить?
18.11.2016
Ответить
Elena
Основные элементы кухни, необходимые для готовки (холодильник, мойка, плита и духовка под ней) я разместила в одном квадрате. Выступающая часть от кухни может быть высоким встроеным шкафом для хранения чего-либо.
На схеме предложила напротив входа в туалет поднять стену, отгородив тем самым зону мойки. И дверь в туалет оказалась в коридорчике. У многих в квартирах вход в туалет сразу за углом кухни и наблюдается из кухни и это не особо смущает.
Хотела еще предложить еще не делать стенку между несущим столбом и углом спальной , там где нарисовала шкаф. Или можно сделать полустенку, для проникновения света... или что-то типа окна без стекла...
Подправила немного схему и в обеденной зоне разместила кухонный уголок, он компактнее, чем диванчик. Надо посмотреть по размерам...
18.11.2016
Ответить
Elena
И такие мысли:
Для себя, возможно, я бы скошенные стены заменила на полукруглые.
Для себя, возможно, я бы скошенные стены заменила на полукруглые.
19.11.2016
Ответить
Трифанова Мария (дизайнер интерьера)
Не нравится. Без размеров конечно сложно судить, но накидала примерный вариант в фотошопе.
1) У вас очень много места ушло под бестолковые коридоры. От нижней правой комнаты отрезали практически четверть под коридор, при этом еще и радиусы открывания дверей накладываются один на другой (туалет и спальня).
2) Кухня все равно останется в прихожей, как ее не декорируй. На моем варианте кухня от прихожей будет отделена стенкой, так что появится хоть какое-то ощущение приватности. Входную дверь из кухни не будет видно, появится ощущение отдельного помещения. От стола конечно придется отказаться, вместо него барная стойка. Но и в вашем варианте столом это можно назвать с натяжкой. Ну и общая длина кухни в моем варианте больше.
3) В данном случае в спальню (бывшую кухню) я бы сделала дверь-пенал. Меньше проблем с радиусами открывания. Кровать сделать меньше (160 см), чтобы оставить нормальные проходы с обеих сторон. Кстати, в вашем варианте, судя по масштабу, проход между кроватью и шкафом около 40 см, что ОЧЕНЬ мало в данном случае.
18.11.2016
Ответить
Елена Гудына
Спасибо) Очень нравиться как вы кухню развернули, вариант стоящий размышления. С размерами у вас все в порядке. А вас не смущает дверь из туалета прямо в кухню? и даже прямо рядом с обеденным барным столом, а запахи? Ты сидишь кофе пьешь, а мужа приспичило, жутко не приятно.
18.11.2016
Ответить
Трифанова Мария (дизайнер интерьера)
Смущает. Но в данном случае особо выбирать не приходится. В этом случае немного исправило бы ситуацию объединение санузла, но для большой семьи это будет неудобно. Пошли родители детей купать и все, туалет недоступен. Так что в туалете надо будет ставить принудительную вытяжку с обратным клапаном. Она от запахов за пару минут избавит.
Вариант Елены выше мне лично даже больше нравится. И стол обеденный в отдалении от туалета у нее получился.
18.11.2016
Ответить
Marina
Вы бабушку в гостиной хотите разместить? Для старого человека это плохая идея, ей тишина и покой нужны. А двое детей будут в комнате 9,7 метров?
Я предлагаю следующий вариант.
1) Детская в комнате 10,3. Балкон утеплить, но не присоединять.
2) Бабушкина комната на месте комнаты 9,7, но вместо отросточка слева сделать гардеробную с отдельным входом из коридора.
3) Вход в спальню бабушки сделать по стене напротив окна. Кровать бабушки поставить по внешней стене (так будет меньше шума от детской).
4) Сделать встройку холодильник и шкаф с духовкой и поставить их по стене между ванной и санузлом.
5) Комната родителей - в комнате 16,6. Шкаф по стене, где сейчас ТВ. Стол и стулья к окну. Диван обычный (не угловой) по стене, где сейчас шкаф стоит.
18.11.2016
Ответить
Елена Гудына
Спасибо! Бабушка молодая 50 лет с детьми нянчится, она будет жить там временно.
18.11.2016
Ответить
ZhannaT
Вообще конечно странно,что дизайнер с 12летним опытом спрашивает здесь совета.
18.11.2016
Ответить
Елена Гудына
Делала три квартиры из двушки трешку, они реализованы люди там живут. Все зависит от квадрата и изначальной планировки, материал стен. Здесь же проблема куда кухню? На балкон еще как вариант и не плохой, но мы его откинули так как холодно и не совсем удобно. Пришла к этому варианту заказчикам нравиться, но у меня есть сомнения и уже понимаю, что не напрасные.
18.11.2016
Ответить
Елена Игоревна М
Если выпишите, что бабушка жить будет временно, то стоит ли вообще "портить" кухню? Пусть бы бабушка в детскую, а родители с детьми в большой комнате. А то бабушка съедет и потом что?)
18.11.2016
Ответить
Елена Гудына
Родители в большую комнату, а у каждого ребенка своя комната, это и было поставлено в задаче изначально, чтобы в будущем у каждого ребенка своя комната.
19.11.2016
Ответить
Трифанова Мария (дизайнер интерьера)
Меня больше радует, когда я в профиле 25-30-летних специалистов читаю "Опыт работы 15 лет!". Видела такое неоднократно. Элементарная арифметика позволяет подсчитать, что свою дизайнерскую деятельность они начали в 15-17 лет. Ну если считать художку, вступительные курсы, универ, практику и уже непосредственно саму работу, то у меня вообще опыт уже 17 лет)
18.11.2016
Ответить
Елена Гудына
Каждый человек судит по себе, а если вы сомневаетесь в моем стаже зайдите на мой сайт http://www.disvdom.ru/
Там много доказательств: мои проекты, публикации в журналах начина с 2006 года
19.11.2016
Ответить
Трифанова Мария (дизайнер интерьера)
Вы как-то остро реагируете. Я не про вас писала, вам, судя по профилю, уже 36 лет. Соответственно в данную категорию вы уже не входите. Я писала про молодых специалистов, чей опыт работы банально не вписывается в возраст.
19.11.2016
Ответить
Елена Гудына
Извините, думала про себя, да мне 36, правда хотелось бы 30 )
А почему у вас сайт не работает? Мне понравилась ваша работа хотелось бы посмотреть другие.
20.11.2016
Ответить
Елена Гудына
Если сомневаетесь в моем стаже зайдите на мой сайт http://www.disvdom.ru/
Там много доказательств: мои проекты, публикации в журналах начина с 2006 года
19.11.2016
Ответить
YliliA
Мне кажется, нужно а какая-то перегородка, отделяющая прихожую с кухней, тогда будет более-менее комфортно. с одной стороны зеркало повесить, с другой дополнительное место для кухни, может телевизор повесить..
18.11.2016
Ответить
Оставшиеся комментарии доступны после регистрации
Зарегистрируйтесь и получите полный доступ ко всем функциям сайта.
Здесь можно стиральную машинку разместить под раковиной.