кухня-гостиная
Интерьерное решение кухнигде были мои глаза,когда я решилась на эту квартиру, хотя знаю где,смотрела на цену и район. в общем имеем кухню гостиную да еще и проходную: из нее выходит по одну сторону спальня,по другую детская. получается кухня вся на прострела, может какие идеи кто покажет.
Дизайнер интерьера Екатерина Саламандра
Мне нравится планировка! Площадь максимально полезная, помещения имеют хорошие пропорции! Я бы над Вашей квартирой с удовольствием поработала:))
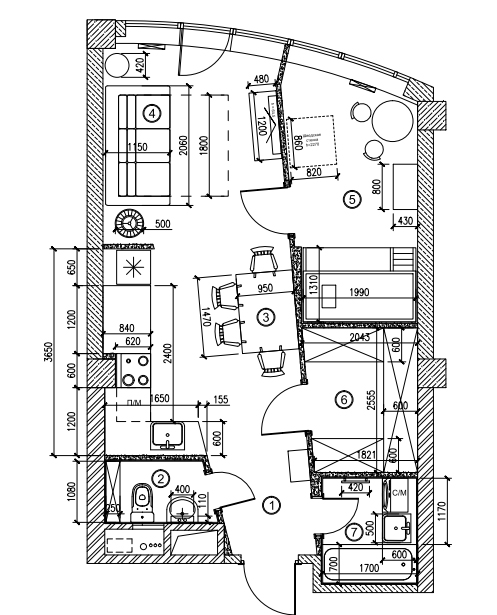
Кухню-гостиную можно обыграть по-разному. У меня был проект апартаментов студийного типа, которые нужно было разбить на кухню и гостиную-спальню, детскую комнату, гардеробную и раздельный санузел. Площадь 46 кв.м, помещение прилично вытянуто. В результате мы визуально отделили кухню от гостевой зоны при помощи ниши. Показываю.
Это план до:
План после с расстановкой мебели:
Ниша для кухни вид от окна:
Вид от входной двери:
План после с расстановкой мебели:
Ниша для кухни вид от окна:
Вид от входной двери:
07.12.2016
Ответить
Виктория (дизайнер)
А что вас смущает? Ну видна кухня, что в этом плохого, не пойму?
Можно зонировать пространство мебелью или легкими перегородками
06.12.2016
Ответить
Марина
Ну вы бы хоть план комнаты приложили , хотя-бы от руки . .. и желательно с размерами...
06.12.2016
Ответить
Вероника
А мне нравится ваша кухня! Большая!))) Как раз удобно - зона готовки ближе к выходу, уголком, все влезет, а ближе к окну расположить диван (по длинной стене), стол у окна -(всегда красиво!), стулья, на "короткую" стену ТВ повесить можно.
07.12.2016
Ответить
Лена
ну вот только так и я хочу,точнее по другому наверно никак. меня беспокоит,что вся кухня,поостите со сковородками,тарелками на виду и никакой барной стойкой ( мешает дверь), никаким диваном ( будет мешать проходить в комнату) ее не прикроешь и рабочая зона небольшая
07.12.2016
Ответить
Вероника
ну, можно перенести кухню к окну тогда? Перенести дверь в комнату (чтобы место под ТВ выделить на том "перешейке" (а может и так он влезет туда?), и "гостиную" у двери делать. Тогда вместо кухни большой угловой диван встанет.
07.12.2016
Ответить
Дизайнер 3D
Здравствуйте. Разработаю Дизайн проект интерьера
Москва М_Т_С +7 916 164 94 64почта: 89161649464@mail.ru
подробнее по ссылкеhttps://www.babyblog.ru/community/post/housedesign/3203365
Дневник https://www.babyblog.ru/user/lenta/id2191345
06.12.2016
Ответить
зелёная