Спальня-гостиная в одной комнате
Интерьерное решение гостинойГуляя по просторам сети по своим нуждам, наткнулась на такой интересный проект. Проект не мой, к сожалению, автор не указан. Тут часто попадаются посты, в которых просят идей для разделения комнаты.
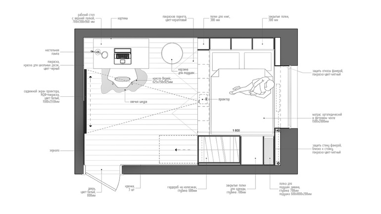
В данном примере комната разделена на спальную и рабочую зоны. Но так же можно поступить со спальней-гостиной или маленькой детской.


Виктория (дизайнер)
ну это смотря где вы живете. В больших городах окна не открывают, а включают кондиционер.
Конечно, если у вас лес за окном - это другое дело.
19.01.2017
Ответить
Вероника
мы сейчас спим вплотную под окном и с открытым окном - нам хорошо - мечта идиота сбылась))) но, кому как, конечно. Мне вот непонятно, как некоторые делают себе глухую спальню без окон, типа "ну спать же в темноте" - я бы там умерла от духоты.
19.01.2017
Ответить
Море_внутри
На мой взгляд, это просто спальня, но никак не гостиная. Посмотрим правде в глаза - на 15 метрах невозможно комфортно уместить две зоны с полноразмерной кроватью.
18.01.2017
Ответить
Виктория (дизайнер)
Я же идею просто закинула ) понятно, что спальня-гостиная на такой площади не получится
18.01.2017
Ответить
Катерина
На самом деле, все эти выдвижные-выкатные чудополочки-чудошкафчики дико неудобная хреннь(((
Такие интерьеры оч архитекторы любят. Но жить в них, хз хз (у моих родителей такое было)
18.01.2017
Ответить
Виктория (дизайнер)
Вот не приходилось мне жить с такими выкатными хренями, тьфу-тьфу. Но бывают разные ситуации и приходится семье размещаться на 20 квадратных метрах. Как говориться - шкафов много не бывает.
19.01.2017
Ответить