Нужна помощь коллективного разума))
Перепланировки стен. Согласование перепланировки квартир и нежилых помещений.
Хелп ми... много раз здесь видела реальную и очень грамотную помощь. так как голова уже кругом, может не вижу хорошего решения. Нужна гостиная со спальным местом, спальня родителей с зимним садом, детская спальня с рабочим местом школьницы, два туалета, один с ванной другой со стриралкой и сауной. вот... Стен нет совсем. можно делать как угодно)) только вот я хотела один туалет перенести над кухней-сказали ни ни
selena1002
Ульяна, добрый день!
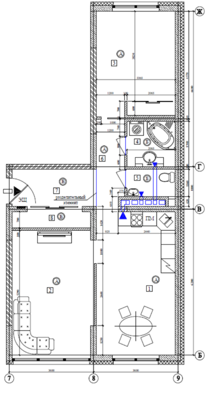
Можно попробовать вот так сделать, только в кухне нужна будет хорошая вентиляция:
25.01.2017
Ответить
Ульяна
Да. Получится по 12 кв. Кухня и детская. Тем более второго хотим) спасибо. А в зале сделать зимний сад.
25.01.2017
Ответить
Евгения Акимова ПРО Дизайнер
мне кажется, неправильно, ребенка прям возле кухни селить. сделайте возле кухни себе спальню.
26.01.2017
Ответить
selena1002
Ульяна, добрый день!
Да, там хорошее помещение для зимнего сада, большое окно. А балкон есть?
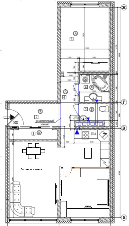
Ну, когда второй появится, то придется гостиную и сад обратно в кухню переносить)) а бывшую гостиную-столовую отдать детям.
26.01.2017
Ответить
Анатолий Николаевич
Занимаюсь энергетиками в жилье и могу проконсультировать по предмету.Подробности в дневнике.
25.01.2017
Ответить
Irylen
ну вам можно сделать кухню-гостинную (там где стол - диван поставить), детскую - там где диван сейчас и спальню - маленькую.
на счет ванной и прочее, у вас в любом случае должны быть обозначены границы мокрых зон.
а на проходе, между кухней и комнатой не несущая часть стены?
25.01.2017
Ответить
Ульяна
несущих нет. Только то что толстым сделано. Границы мокрых сделаны, можно на метр примерно отступить в комнату. думали детский сделать отдельно, там окна выходят во двор, а другие на дорогу. да и в первой со входа комнате окна в пол.. боюсь там детскую делать.
25.01.2017
Ответить
Irylen
ну с назначением комнат вы сами определитесь, кому что нужнее.
я так понимаю, что ванную и туалет только за счет маленькой комнаты можно увеличить?
25.01.2017
Ответить
Ульяна
да. можно, конечно, забрать кусочек кухни и на плане БТИ обозначить как кладовка. Но размещать там с/у будет незаконно.
25.01.2017
Ответить
Irylen
представляете какая маленькая комната у вас получается ? ))) А вы ребенка туда)))
ну и над ванной надо поколдовать, сейчас там какое-то несуразное расположение всего
25.01.2017
Ответить
Ульяна
Комната получается с учетом увеличения с/у 12 кв 3,5 на 3,4... А наша спальня 3,6*3,3 кв.м. с учетом зимнего сада и гардероба. так что разница небольшая. Гостиная 21 кв. какие то маленькие комнатушки))) общая площадь большая, но хочется и балкон и гардероб большой)))
Да. Туалет с ванной сделаны не по-моему. Ванна будет прямая.
25.01.2017
Ответить