Яркая квартира для молодой семьи
Авторские проекты дизайнеров.(Посты не по теме будут удаляться!)Всем доброго дня! ) закончила концептуальную разработку квартиры 74 м2 для молодой семьи с двумя дочками 1 годик и 4 года , получился яркий современный интерьер с элементами классики , но не перегруженный декором .
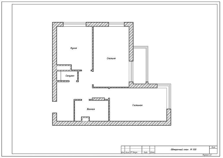
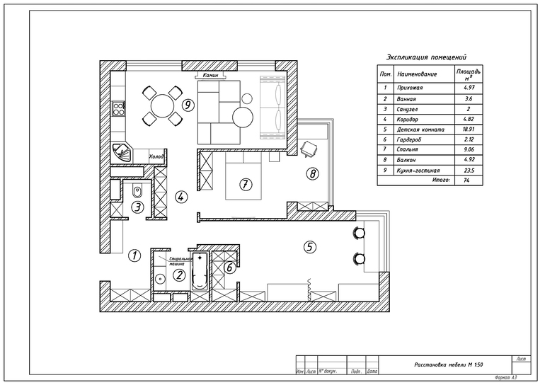
Была сделана перепланировка квартиры : объединили кухню с гостиной где семья проводит основное свое время , отдельная спальня для родителей и детская комната для девочек + дополнительные места для хранения вещей( план перепланировки ниже )
Камин предусмотрен как паровой, что безопасно для детей и при этом увлажняет воздух ,
эстетически выглядит как настоящий












Юка
Здравствуйте ! А можно про шкаф в прихожей спросить ?) это ДСП? Может порекомендуете фирму , где шкафы встроенные делают 🙈
14.02.2019
Ответить
Анастасия Дизайнер интерьера
предусмотрен поворотный кронштейн , чтобы можно было и с обеденной зоны и с зоны дивана смотреть
19.04.2017
Ответить
Ксения
Очень здорово! Цвет в коридоре просто классный, серо-синий какой-то, подскажите как этот цвет называется?
19.04.2017
Ответить
Ольга
Светло и уютно! Ванна и туалет понравились. Детская-супер! Коридор прям праздничный. Сочетание цветов красивое.
18.04.2017
Ответить
Татьяна
Детская очень классная!! Не подскажите фирму обоев? И плитки в ванной комнате
18.04.2017
Ответить
Анастасия Дизайнер интерьера
спасибо )Коллекция обоев Prospero Everybody Bonjour
18.04.2017
Ответить
Mira
А напишите пожалуйста название консоли в коридоре, дивана в гостиной и стульев в детской?
18.04.2017
Ответить
Анастасия Дизайнер интерьера
в данном проекте шел базовый комплект услуг, смета по мебели в состав работ не входит , поэтому наименования я не смогу Вам написать
18.04.2017
Ответить
Mira
Это ваша фантазия значит?) Такой мебели не существует? Мне так консольный нужен. Может в личку напишите производителя?
18.04.2017
Ответить
Анастасия Дизайнер интерьера
нет мебель существующая , просто аллгоритм работы другой когда идет подбор мебели, у меня несколько тысяч моделей мебели при подборе я сразу вношу в смету
18.04.2017
Ответить
Mira
Анастасия, спасибо. Жаль,что консольный под заказ. И пуфики тоже. Больше всего вид в коридоре и понравился)
18.04.2017
Ответить
Анастасия Дизайнер интерьера
так создается гармоничный дизайн чтобы все соподчинялось и была целостность в интерьере , иначе будет винегрет
а по обивкам нужно в магазинах смотреть, некоторые производители предлагают большой спектр, но зачастую это дорогие позиции поэтому дешевле сделать на заказ, все отталкивается от существующего бюджета
18.04.2017
Ответить
Елена
Как многие возвращаюсь все к вашей работе. Многое нравится. Если можно 2 вопроса.
1. Не увидела совсем в туалете доступа к счетчикам. Он есть?
2. Объединение комнаты с балконом хозяева, конечно же, не будут?
18.04.2017
Ответить
Анастасия Дизайнер интерьера
1)такие нюансы как ревизионный люк, розетки и выключатели, щиток ...т.д. указываются на рабочей документации
2) балкон будут объединять с комнатой
18.04.2017
Ответить
Елена
разрешение дадут если на схеме укажите французские окна, а иначе не утвердят. Я тоже планирую на кухне так, и мне подсказали оформлять с окнами, а фактически потом не ставить
18.04.2017
Ответить
Машере
Так как вы пишите не получится. Вам придется поставить окна а потом снять и заделать проем. Я пойду по другому пути-сделаю проем под перегородку, и узаконивать не буду. При необходимости-(продажа или проблемы) штраф 2500 ,вставляю перегородку и узакониваю.
18.04.2017
Ответить
Елена
Мне объясняли, что сначала оформление разрешения, а потом ремонт. А то, что предусмотреть надо установку, это конечно правильно. Надо с ремонтниками уже разговаривать, чтобы красиво все было и можно было быстро поставить
18.04.2017
Ответить
Машере
Вам разрешение дадут на 1 год и придут с форматом зафоткать двери. Поэтому их придется купить и установить,а потом снять и заделать проем! Я решила не тратиться. Но я уточнила в проектной организации все моменты по своей квартире-все полностью узаконивать,рисков минимум. Мы для себя решили так, дело каждого конечно. Удачи
18.04.2017
Ответить
Елена
Сейчас уже ужесточили все, штрафом 2500 можете отделаться. Могут заставить вернуть все в прежнее состояние. Поэтому я подстрахуюсь, попытаюсь сначала оформить, а там видно будет.
18.04.2017
Ответить
Машере
Хочу поблагодарить Анастасию за проделанную работу! Спасибо!!! И оставить небольшой отзыв:
С Настей очень просто работать,она понимает клиента с полуслова ( во всяком случае меня). Я старалась быть четкой в своих требованиях,но даже там где терялась Настя быстро предлагала подходящий вариант. Это при том что я очень мнительна и местами категорична. Здесь мне практически негде было возразить.
Еще Анастасия сама делает визы!- почти все дизайнеры сейчас только предлагают концепцию,а потом дозаказывают чертежи и визы у других людей. В данном случае Настя прорабатывала каждую детать и мне под суд отдавала уже готовый "вылизанный" материал.
Еще Настя очень четко объясняет тот или иной выбор материала,цвета,фактуры...у нее есть свое мнение художника, это здорово. т.к. почти всем из нам нужно чтобы нас "уговорили"...от обилия цветов и материалов кружится голова.
Это третий дизайнер с которым мне удалось поработать, я в восторге! очень конструктивный подход!
Спасибо Настя! В следующий раз только к тебе =)
18.04.2017
Ответить
Анастасия Дизайнер интерьера
Мария, спасибо большое за отзыв, мне очень приятно было читать !
рада была с Вами поработать )))
18.04.2017
Ответить
Екатерина
Очень понравилась работа) только один вопрос))))) как смотреть телевизор ?)
18.04.2017
Ответить
Кохэйри
Ну теоретически, если телек на поворотном кронштейне, то можно повернуть и смотреть. Хотя согласна, как-то не совсем удобно.
18.04.2017
Ответить
Машере
Согласна-не удобно. Однако, другого варианта в этом пространстве не нашлось. Поставлю кресло напротив телека для мужа..Или подушки
18.04.2017
Ответить
Оставшиеся комментарии доступны после регистрации
Зарегистрируйтесь и получите полный доступ ко всем функциям сайта.