Идеи кончились!
Вопросы и ответыРешили оставить кухню и не переносить ее вместо зала.
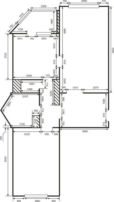
Но теперь сломали голову как сделать так чтобы была и кухня и зал полноценный. Балкон присоединили к кухне, но пока не весть снесли (может под столешницу оставим).
Может кухню разместить на балконе? но как расставить мебель так, чтобы когда я готовлю могла тоже смотреть телек. На кухне остается два входа в спальню и прихожую.

Ольга Артемова
Добрый день!
На своей странице в Инстаграм запустила проект под хештегом #хочу_новую_планировку
Проект предполагает разработку нескольких вариантов планировочного решения, чтобы понять потенциал квартиры. Возможно он окажется актуальным для вас.
Кратко о проекте также здесь
Квартиры, которые участвовали в проекте - здесь и здесь, остальное под хештегом в Инстаграм.
Если заинтересуетесь - напишите мне на почту Artemova.project@gmail.com
06.05.2017
Ответить
Людмила
Посмотрите здесь http://desclub-training.ru/ там много идей по дизайну интерьера в разных комнатах. Иногда черпаю у них вдохновение))
03.05.2017
Ответить
Виктория (дизайнер)
А вы кухню и зал хотите на площадь кухни и балкона вместить?
Если да, то полноценной кухни и зала у вас не получится - площади маловато.
А справа от кухни большая комната это спальня? Может от неё часть откусить и сделать там гостиную?
03.05.2017
Ответить
Виктория (дизайнер)
Можно не переносить - сделать там столовую. А на кухне кухонный гарнитур, где готовить и тв с диваном.
Проем же у вас дверной есть. Может, можно его расширить? Если стена несущая, то можно расширять дверной проем с усилением несущей конструкции (если не 1 этаж 9ти этажки)
03.05.2017
Ответить
Оксана (дизайнер, инста: @persona_story)
Кухню на балконе? Это как? И плиту и мойку? Кухню на балконе делать нельзя. Кухня должна быть только на месте кухни. Единственное место, куда её можно перенести, то это - в коридор.
02.05.2017
Ответить
selena1002
Добрый день!
Например, если расположить варочную так, то тв нужно вешать на стену у входа, чтобы можно было готовить и смотреть. И от стола его тоже хорошо будет видно.
02.05.2017
Ответить
Анхен
У нас сейчас как раз так и расположено все. Но хотелось бы все изменить и кухню полностью перенести на балкон, а комнату использовать как зал.
03.05.2017
Ответить
selena1002
Аня, добрый день!
В моей практике было такое, когда переносили кухню на балкон, но там была однушка, хотели сделать двушку. Но по правилам БТИ это не разрешено. У Вас такая площадь! Зачем тесниться на балконе, тем более, что там одна стена только рабочая и такая геометрия. Вы попробуйте там расположить кухню в масштабе - не развернешься.))
03.05.2017
Ответить
Анхен
У нас балкон 5 кв.м. если пустить столешницу по одной стороне где окна, то места хватает)))
03.05.2017
Ответить
selena1002
Вот так Вы хотите? Допустим вытяжка будет центральная, а холодильник куда, тоже к окну? А можно узнать, для чего такие тяготы? Просто интересно))
03.05.2017
Ответить
Анхен
Холодильник останется в комнате, он будет спрятан как шкаф. Привыкли что есть гостиная и не хочется отказываться от нее. А для готовки не так уж много места надо. да еще вид у нас шикарный с 25 этажа. Готовишь и наслаждаешься картиной)))
03.05.2017
Ответить
selena1002
Ясно)) А как с разрешением и подводкой коммуникаций? Далеко ведь от стояка,
наверное, насос нужен будет и трубы под углом класть.
03.05.2017
Ответить
Анхен
Естественно это незаконно.
А тянуть не очень далеко, у нас сейчас мойка по середине стены.
04.05.2017
Ответить
selena1002
Посоветуйтесь с сантехником на эту тему. Просто, в моей практике уже был такой проект с удаленным подводом воды и отводом канализации.
05.05.2017
Ответить