Ванная комната для смелых.
Интерьерное решение ванной комнатыПищу от восторга. Столько переживаний было у хозяйки насчет этой ванной комнаты.
Вообще, это большая однокомнатная квартира (евродвушка, как их называют). Ремонт доделали, но сфоткать не успела, т.к. в семье появился малыш и родителям было не до меня. Наконец, молодая мама привыкла к своим обязанностям и по мере возможности присылает фотки. Сегодня, это ванная комната.
Это экспресс-дизайн, т.к. въезжать заказчикам надо было через 3 месяца (должен был появиться малыш), у нас не было ни визуализаций, ни коллажей, ни подборки. Было выбрано направление и мы поехали по магазинам выбирать отделочные материалы.

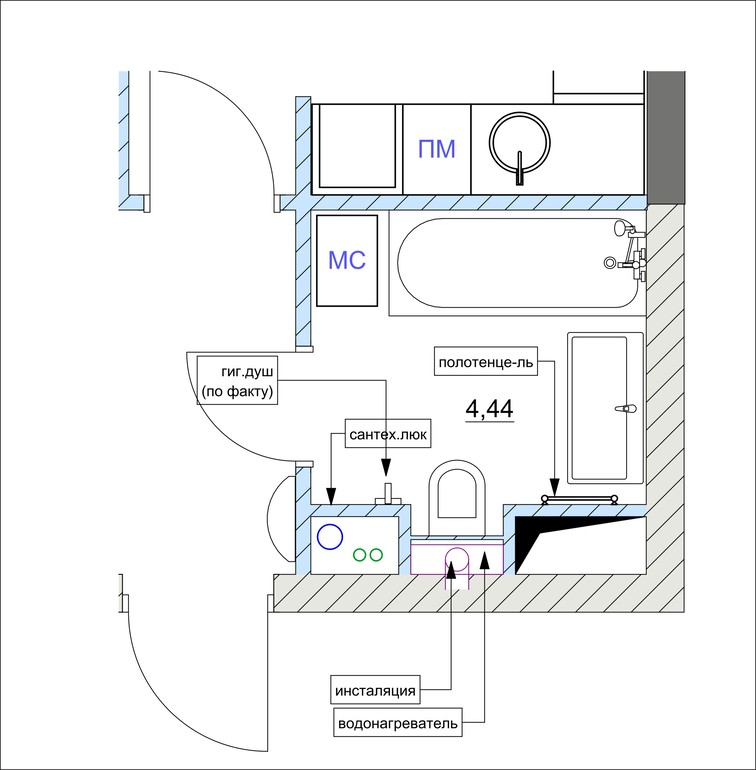
Санузел совмещенный, общей площадью 4 кв м

Понравилась плитка Kerlife. Знаю, что по качеству она не лучший вариант, но надо было уложиться в бюджет и выбор остановили на ней. Отмечу, что при выборе декора пересмотрели 4 пачки, пока не нашли без сколов и с пропечатанным орнаментом.

Использовали 4 вида плитки из коллекции Stella. Т.к. бюджет поджимал - декора по-минимуму, всего 6 штук. (т.е. за зеркалом его нет - небольшая хитрость).
Тумба и раковина из Леруа.




Вышла стильная и современная ванная комната. Есть еще недоделки - полки над унитазом.
Отмечу еще цвет натяжного потолка - он не белый, а светло-серый. Пытаюсь всех заказчиков склонять к выбору цветного потолка для ванной комнат, т.к. темный потолок (серый или коричневый) в ванной комнате создает более теплое ощущение помещения + в зеркале вы всегда будете загорелой красоткой )))
Уверена, что будут комменты насчет черной плитки в ванной комнате. Да, она темно-серая, да, на ней остаются разводы после принятия ванны. Я бы себе никогда так не сделала, ибо не педантичный я человек. Заказчица была об этом изначально предупреждена и готова. Выход оказался прост - после водных процедур скребком сгоняет воду с плитки. На это действие уходит 30 секунд и не вызывает проблем у хозяев. Зато все гости в восторге от этой ванны.