Дизайн-проект "Дом на озере"
Авторские проекты дизайнеров.(Посты не по теме будут удаляться!)Всем добрый день!
Представляю вашему вниманию свежий проект. Трехэтажный дом, 289м2 для семьи из 5 человек. Родители и трое прекрасных деток. Также, планируется принимать в гости старшее поколение.
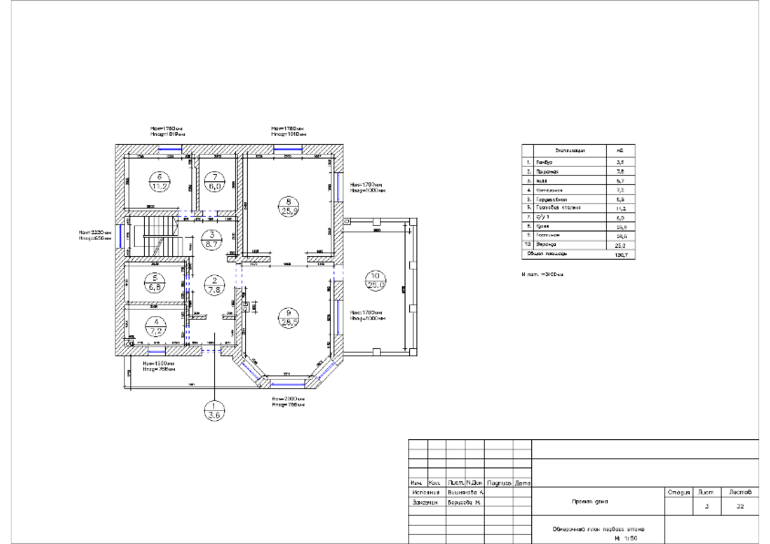
Первый этаж включает в себя небольшой тамбур, прихожую, холл, котельную, гардеробную, комнату для гостей, с/у с душем, кухню, гостиную и террасу.
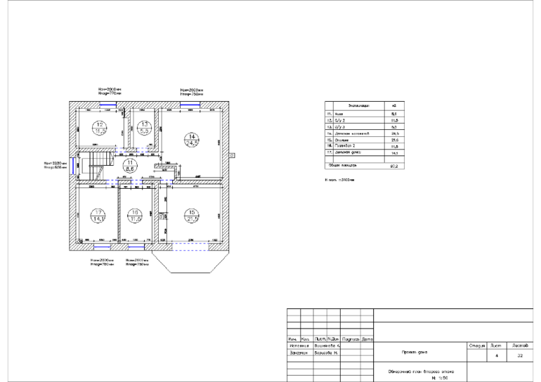
Второй этаж: холл, большая ванная комната, малый с/у, гостевая, большая детская для мальчиков-двойняшек, детская для старшей дочки и спальня с балконом.
Третий этаж представляет из себя мансарду открытой планировки, визуально разделенную на зону домашнего кинотеатра с прожектором и игровую для детей.
По стилю, это что-то среднее между кантри, шале и провансом. Есть элементы лофта.

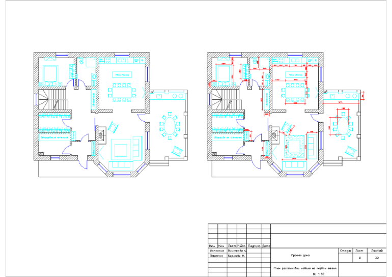
Первый этаж.


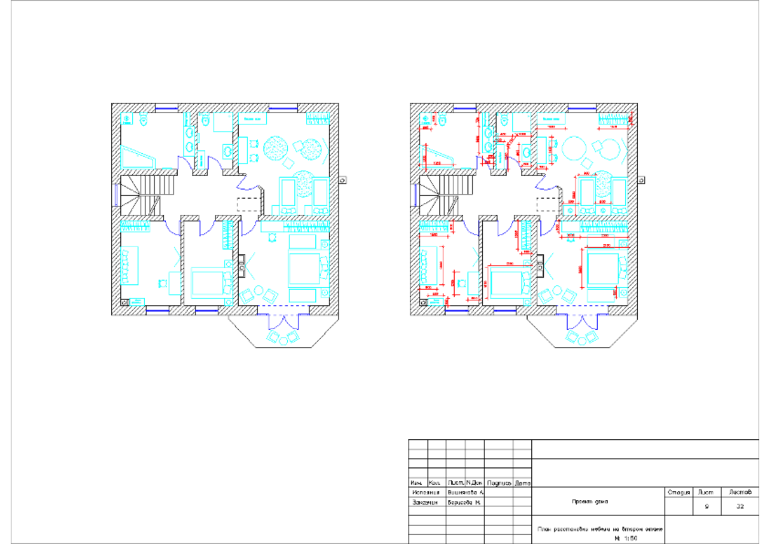
Второй этаж.


Третий этаж.

1. Холл первого этажа.

2. Гостевая на первом этаже.



3. Санузел на первом этаже.



4. Кухня.



5. Гостиная.


6. Терраса.


7. Холл второго этажа.


8. Ванная комната.


9. Малый санузел на втором этаже.



10. Детская мальчиков.

2. 
11. Детская дочки.


12. Гостевая на втором этаже.


13. Спальня с балконом.



13. Мансарда.




Спасибо за внимание! Комментируйте, спрашивайте, заказывайте дизайн-проекты.
Стоимость полного дизайн-проекта:
- до 60м2 - 1900руб./м2
- от 60 до 110м2 - 1700руб./м2
- от 110м2 - 1500руб./м2
Моя почта: Naamah1987@yandex.ru
Мой телефон: 8-905-767-13-32
но это риторический вопрос)))