Красивый солнечный домик. Фото и детали строительства.
Постройка дома, этапы.



Дом по проекту "Оксфорд" построен для Юлии под городом Боровск. Заказчица решилась на такое цветовое решение фасада и не прогадала. Дом получился очень солнечным.
Его площадь 125 кв.м. Построен он на участке 8 соток.
Стоимость строительства:
1. Закрытый контур 2 050 000 (фундамент, стены, кровля, окна)
2. Под отделку 950 000 (утепление и внешняя отделка)
3. Под ключ 1 950 000 (коммуникации и внутренняя отделка)
Дом построен из блоков и утеплен. Кровля - натуральная черепица. Внешняя отделка стен - гибкая штукатурка церизит и натуральный камень. Ламинированные окна. Пропитка - пинотекс.
Фото со стройки








Лана
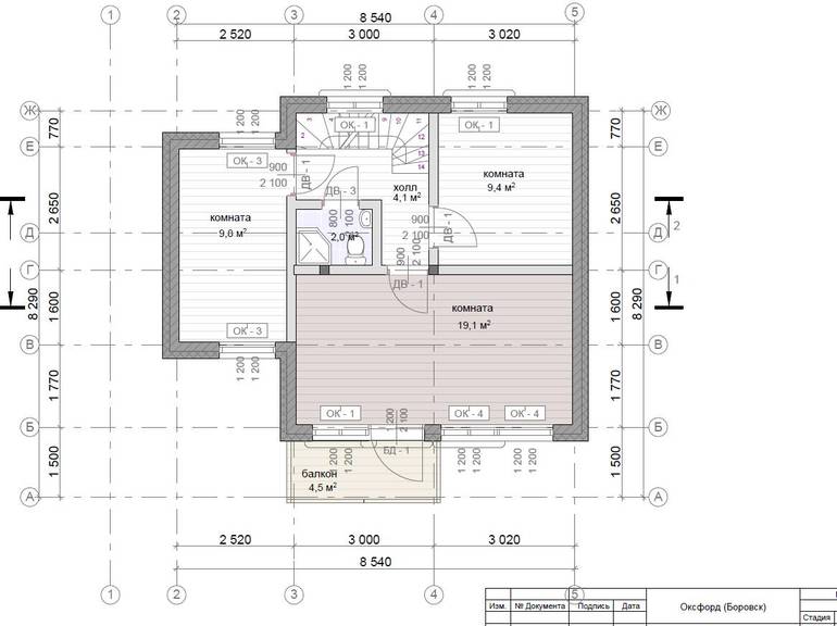
Домик маленький) я думала, что у нас маленький))) как в 2-х метрах уместить душевую кабину, унитаз и умывальник? И в доме не предусмотрен газ? Котельная 2,4 это ни по каким нормам не проходит.
03.08.2017
Ответить
Ольга. Строю дома www.kamen-dom.ru
газ магистральный есть, на момент согласования перегородка между котельной и коридором не стояла, кроме этого, газовщики считают в кубатуре, а там потолок высокий
03.08.2017
Ответить
Ольга. Строю дома www.kamen-dom.ru
для котлов мощностью до 30 кВт минимальный объем помещения (не площадь, а объем) должен быть 7,5 м3; В данном случае норма соблюдена. Высота потолка 3,2 метра, это 7,7 куб
03.08.2017
Ответить
Лана
у нас Котел 45 насколько я помню. Потолки 3,2. Минимальную площадь помещения нам заявили 6 метров(у нас 9,5). Котельную 2,4 газовщики не примут. Если без перегородок когда была, то возможно. Вообще имеет смысл соблюдать нормы безопасности, особенно с газом.
04.08.2017
Ответить
Ольга. Строю дома www.kamen-dom.ru
В с/у на втором этаже стоит унитаз, душевая кабина и умывальник
03.08.2017
Ответить
Лана
2 метра. Это называется впихнуть. Кабина минимум 80 см, унитаз 40-50 плюс расстояние с 2 сторон должно быть.
04.08.2017
Ответить
Ольга. Строю дома www.kamen-dom.ru
Если очень приблизительно можно и так считать
03.08.2017
Ответить
Мирка
неразумная планировка на мой взгляд. 125 метров и такие маленькие комнаты. Можно было и получше распланировать.
03.08.2017
Ответить
Ольга. Строю дома www.kamen-dom.ru
125 метров это общий контур вместе с верандой.
03.08.2017
Ответить
