Спальня-гостинная
Интерьерное решение спальниПомогите пожалуйста советом! Дано: комната общей площадью 23.10. Хотелось бы разделить комнату на две зоны и поставить диван (доп спальное место), но если ставить перегородку, детскую кроватку не получится приставить ко взрослой(( всю голову уже сломала. Кровать взрослая 165/205, детская 70/125. еще имеется комод детский 85/45.

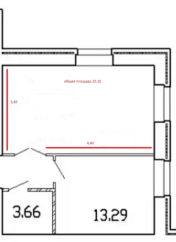
Дверной проем сейчас 1,20, его можно заложить справа до 90 см.
Оливия
А вы уверены, что хотите поставить детскую кровать на расстоянии? У нас стоит вплотную, сейчас вообще без одного борта, устала скакать к ребёнку всю ночь, а так удобно, ребёнок рядом, но в своей кровати, вставать не нужно. Потом мы уберем кроватку в детскую, тоже будет разделение перегородкой, но до полка.
08.08.2017
Ответить
Julianna
Не так выразилась) придвигать мы будем в любом случае, а вот между кроваткой и перегородкой остаётся сантиметров 30 всего (
08.08.2017
Ответить
Виктория
Если две кровати поставить изголовьями по той стене, где дверь (детский комод можно поставить по стене между окнами). Потом сделать перегородку, чтобы отделить спальню от гостиной зоны и приставить к ней диван . А напротив него можно сделать ТВ зону. Надеюсь,что поняно удалось мысль изложить ))
07.08.2017
Ответить
Julianna
Вот примерно так я и хочу) только боюсь тесно будет между большой и маленькой кроватью
07.08.2017
Ответить
Вера
Может гостиную зону устроить на кухне? А эту комнату поделить на спальню и детскую.
07.08.2017
Ответить
Datura
А если сразу напротив входа к стене одним боком вашу кровать, а ребенкину слева, ближе ко входу.
А всю правую часть комнаты отдать под диваны-тв.
07.08.2017
Ответить