Перепланировка
Вопросы и ответыдевочки выручайте! В квартире будет жить 2 взр, родители спят отдельно, муж храпит. Дети разнополые 2 и 6 лет.
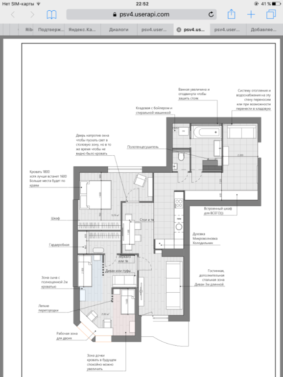
1. Исходник 
2. Что предлагает дизайнер



3. Это то , что предложила мне девочка с бебиблога.
Сейчас с мужем обсуждаем... хотим оставить кухню в кухне, диван с телевизором в центре, как у дизайнера на третьем плане и у девочки с бб, единственное в чем вопрос , где делать детскую, вроде бы решили что делаем где комната с эркером, там больше света, как у варианта 3 у дизайнера. Мужу не нравится Детская, что много нарезано, говорит пусть убирает зону с диваном и телевизором и делает большую детскую. Без зонирования, и оставляет им гардеробную. А с другой стороны если детскую делать как ниже фото, как девочка с бб предложила , то кухня с гостевой зоной с диваном и телевизором лучше сочленена....

Тогда диван логично разместить не на проходе, что более комфортно для сна, даже не смотря на одно помещение с кухней. А если зону гостиной и кухни разделить стеной-столбом, то гостиная со спальным местом будет более изолированной.
В детской зоне я предложила вход в комнату сделать через гардеробную. И в торце часть ее будет закрываться шторой, например, для переодеваний детей. Зону сна детей предлагаю отодвинуть от окна, чтобы там оставить место для активного времяпроведения. Вместо дивана можно разместить 2 кресла-мешка, которые легко перемещаются.
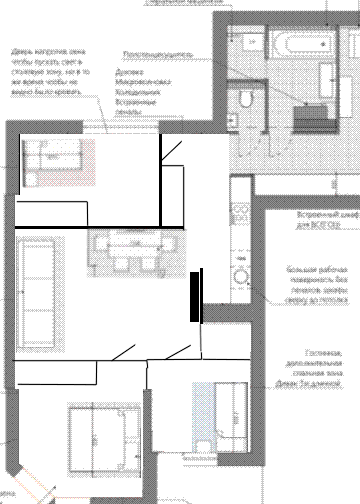
Если без переноса кухни, то рассмотрела бы вариант с более открытой гостиной зоной.
Вход в спальную и окно так, чтобы из гостиной смотрелось как угловое окно. Голубым нарисовала тюль и коричневым шторы.
Не знаю нужна ли будет дверь в спальную в этом случае...
и диван просится чем-то отделить от двери в с/у. Может шкаф-витрина или хотя бы торшер или цветок.
И немного переделала детскую...
на стенах навеху окна сделать, чтобы в центре было хорошее освещение типа так (картинка первая попавшаяся из инета, не сочтите за рекламу))))
ну и искусственное хорошее