Дизайн-проект: "Ретро Скандинавия"
Авторские проекты дизайнеров.(Посты не по теме будут удаляться!)Всем привет!
Спешу поделиться одним из новых проектов.
Трехкомнатная квартира, 100м2
Для родителей и двух деток (мальчик 9 лет и девочка 3 года).

Изначально стояла задача создать современный интерьер с элементами классики или таких стилей как Сканди и Прованс. Позже, по обоюдному желанию, мы добавили яркие элементы из ретро стиля 60-х. Что, надо сказать, заметно оживило пространство и придало индивидуальности.
Также, имело значение, сделать интерьер практичным, так как есть маленькие дети.
Цветовую гамму по тех. заданию надо было соблюсти в рамках теплых и светлых оттенков, но добавить контраста. Нежелательно было акцентироваться на зеленых и желтых тонах.
По функционалу необходимо было предусмотреть спальню, две детские, два санузла и гардеробную.
Так как, квартира захватывает часть общей площадки на этаже, то у нас получилось две прихожих. В первой, по желанию заказчиков, разместили открытую вешалку и полки под обувь, с противоположной стороны - банкетка с тумбой. Во второй два шкафа (вещевой и хозяйственный) и интерьерная консоль.
В детской сына must have было поставить шведскую стенку, добавить подсветку, кинуть пуф и обыграть тему марвел.
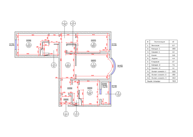
Обмерочный чертеж.

План расстановки мебели.

Прихожая-холл

Кухня

Гостиная

Комната дочки

Комната сына

Спальня

Большой санузел

Малый санузел

Балкон

Спасибо за внимание! Комментируйте, спрашивайте, заказывайте дизайн-проекты.
Стоимость полного дизайн-проекта:
- до 60м2 - 1900руб./м2
- от 60 до 110м2 - 1700руб./м2
- от 110м2 - 1500руб./м2
Моя почта: Naamah1987@yandex.ru
Мой телефон: 8-905-767-13-32