Спальня.
Авторские проекты дизайнеров.(Посты не по теме будут удаляться!)Спальня для молодой семьи. Хорошая планировка на мой взгляд, есть где разгуляться. Но по заданию кроме туалетного столика и закрытых прикроватных тумб , ничего не надо.

Балдею от коллажей, растворяюсь в них.
Как-нибудь сяду, покажу коллаж, визуализацию и реализацию.
А вот к такому пришли!)

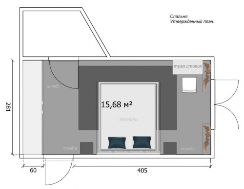
Ну и планировка комнаты.

Собираю разумную критику и похвалу.
1987Екатерина1987
Добрый вечер с мужем недавно купили квартиру и мечтаем сделать в ней дизайнерский ремонт посмотрели работы до и после https://theviphouse.ru/dizajn-interer-spalni-v-svetlyh-tonah-25-foto-gotovyh-reshenij/ как же все таки красиво но как по мне кажется что дороговато будет.
20.04.2018
Ответить
Сальма♥МЕБЕЛЬ♥Орматек♥38Попуг
т.е. в визуализации будут использованы ТОЧНО эти элементы, в точно таких цветах?
11.11.2017
Ответить
Елена
Ну да, в близких цветах, если бы была визализация.
Шторы могут быть светлее, если вы про это, а могут быть и эти.
11.11.2017
Ответить
Сальма♥МЕБЕЛЬ♥Орматек♥38Попуг
не, оттенок ладно
я про кант на туал.столике и рамок в шкафу - они ж разные!
ну и стиль отдельных элементов - не берусь назвать точные названия стилей... но люстра, туал.столик, бра и кровать - из разных опер вообще
а журавли на 1м фото - это что было? чучела в спальне?
11.11.2017
Ответить
АлисаМечтаетОЧуде
Мне как-то не очень.
Вот, например, акцент на темных шторах. Только темные шторы и все. Одно пятно. Для гармонии надо ещё где-то повторить это пятно.
Кровать смотрится одиноко и незавершенно. Я бы поставила у ног прикроватную скамью - это продолжение кровати(т.е. не лишний предмет), и в то же время очень функциональный(положить снятый халат или присесть во время переодевания).
Расположение комода и кровати линейно. Входя в комнату, первое, что мы увидим - голая стена. Потом наш взор подаёт на кровать, и только потом на столик. Кровать это тихое интимное место, которое я предпочла бы увидеть в последнюю очередь. Наверное, комод должен быть поближе к двери, а кровать подальше. И стоит подумать над расположением.
Шкаф слева, как я понимаю, уже имеется встроенный, с ним ничего не поделать. Поэтому надо чтобы он либо перекликался с мебелью, либо поменять фасады.
10.11.2017
Ответить
Елена
Ой, спасибо, как хорошо пишите. А что со шкафом не так? Это проект из голых стен.
11.11.2017
Ответить
АлисаМечтаетОЧуде
Пусть рисунок на фасадах(зеркалах) перекликается с предметами интерьера. Мы видим мягкие закругленные линии в туалетном столике, тумбочках, кровати. А шкаф украшен четкими линиями - пусть они станут плавными. А бра на стене тоже подобрать с мягкими изгибами.
11.11.2017
Ответить
Елена
Нет, смотрите, если и бра будут с плавными изгибами, то будет слишком "сладко", - для монго ощущения, мне нравятся противоположности.
Но с вами соглашусь, что можно в шкафу вместо ромба сделать круг или овал, получится хорошо.
11.11.2017
Ответить
АлисаМечтаетОЧуде
И ещё. Повесьте у изголовья картину. Не будет ощущения пустой стены. А на противоположной стене можно разместить телевизор и часы.
Пусть все аксессуары будут определенной тематики. Мне нравится ваш акцент на розы или фламинго. Может немного его развить?
11.11.2017
Ответить
Елена
Картины держу в голове для стены напротив кровати, но коллаже места им не оказалось.
11.11.2017
Ответить
Оксана (дизайнер, инста: @persona_story)
Елена, я туалетный столик поставила бы к стене напротив. Так он стоит на проходе к окну. Шкаф узкий. 60 см мало для вешалок.
10.11.2017
Ответить
Елена
Оксана, вы на план смотрите?, т к я не поняла про столик у стены на против.
Если все же вы имеете ввиду к изголовью кровати его поставить, то выбор планировки хозяйки. Причем, практически уверена, что там будет стоять детская кроватка, т к в семье появился младенец.
11.11.2017
Ответить