Гостиная в детскую
Авторские проекты дизайнеров.(Посты не по теме будут удаляться!)Мне повезло и досталось интересное задание - переделать гостиную из 90-х в современную детскую комнату

Дано: Трехкомнатная квартира в обычной хрущевке. От прежних хозяев новым владельцам достался ремонт из 90-х (надо отметить, что с фантазией были прежние хозяева).
Задача: минимальными вложениями изменить интерьер. Мы не трогали электрику, плитку на полу, потолки и т.п. Изменения коснулись напольных покрытий, стен и декора.
В данном случае детская является проходной комнатой. В ней проживают две сестры, возрастом 15 и 5 лет.
Итак вот какая комната для работы мне досталась


Особенность - скошенный потолок возле окна. Не знаю зачем это было сделано, но вот так.
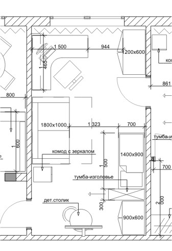
После нескольких вариантов планировки, остановились на этом

Получилось выделить для каждой девочки свой личный уголок.
Как ни странно это звучит, но главной идеей, от которой я отталкивалась явилось КРАСНОЕ КРЕСЛО (рабочий стул) о котором мечтала старшая дочка.
Поэтому был мной предложен коллаж с цветовым решением в зелено-малиновых тонах

Далее с заказчиком мы поехали подбирать отделочные материалы. В ламинате ничего интересного нет. А вот на выбранных обоях остановлюсь подробнее.
Изначально не было необходимости в обоях зигзаг, но попались на глаза и образ комнаты нарисовался ))) Спасибо заказчице, которая не испугалась и поддалась на уговоры, ввести этот яркий орнамент в комнату. Мы заложили его в рабочую часть комнаты, чтобы он раздражал обитателей комнаты, когда они хотят расслабиться.
Основные обои из коллекции Filpassion Impression


И белые из этой же коллекции.
А также, мой любимый зигзаг, BN Internetion Art of Living

Визуальное представление после выбранных обоев. Сделала для главы семейства, а то не понимал он нашей великой задумки

Пришлось поломать голову над тем что сделать с этим кривым потолком, но выход был найден. Чтобы не было ощущения, что строители промахнулись (а именно такое впечатление от этого потолка было изначально), я решила подчеркнуть (выделить) этот "дизайнерский" ход. Как будто мы так и задумывали изначально.
И вот что у нас в итоге вышло - та дам.




Шторы и мебель купили в ИКЕЕ. Красное кресло еще не найдено, эта задача поручена его владелеце.
Мне результат очень нравится. И что самое главное, заказчик остался доволен. Как выразилась моя заказчица: "Даже не думала, что из этой комнаты может получится что-то подобное". Мы сделали современную детскую комнату, без привязки к возрасту. Жаль, в моем детстве, у нас не было дизайнера.
P.S. еще в этой квартире мы переделывали гостиную и спальню и там тоже есть свои "дизайнерские" ходы от прежних хозяев. Позже будут посты и о них.