Мебель в детскую
Интерьерное решение детской комнатыКоллективный разум, взываю к тебе! Идеи кончились...
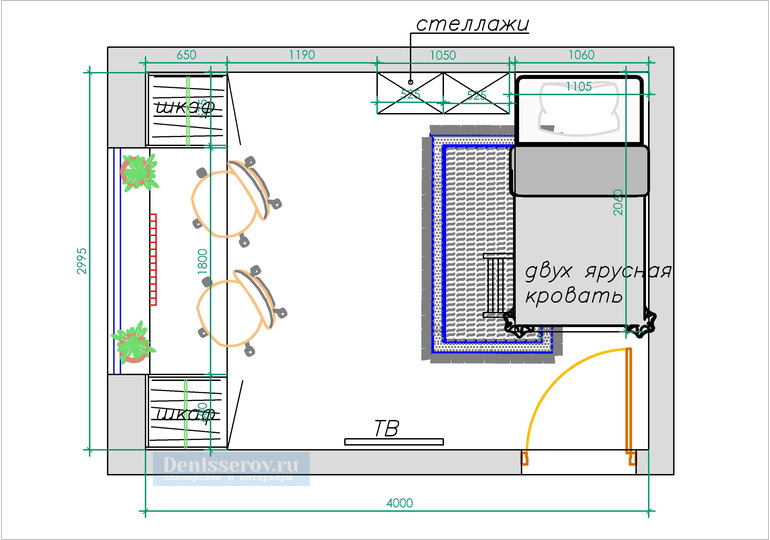
Планируем поставить двухъярусную кровать и шкаф для одежды вдоль длинной стены (3,3 метра). На стене с домиками вообще хотела сделать стеллажи для игрушек и телевизор повесить. Телевизор уже неизбежен - сделаны розетки. Но не укладывается у меня тут рабочее место для двоих деток никак. Может быть кто что посоветует интересненького?



rita12
Ведь главное же хорошую мебель выбрать деткам. Мы кстати вот тут http://elefan-mebel.ru/ мебель брали. Очень хорошая и качественная.
03.12.2019
Ответить
LybaVernaya
В интернет-магазине Портомебель много идей. Мы от туда мебель заказывали для детской. Там много стеллажей и столов на двоих. Вот их магазин, можете сами посмотреть
https://portomebel.ru/
25.11.2017
Ответить
Настёна (Мебель, матрасы, уличные и домашние ДСК)
Около окна можно столешницу можно столы и по бокам стеллажи как раз участки хорошие можно выбрать по глубине и батарею вписать в размеры
20.11.2017
Ответить
Настёна (Мебель, матрасы, уличные и домашние ДСК)
А если кровать из модульной серии выбрали может вообще все в цвет подберете, кровать выбрали?
20.11.2017
Ответить
Маруся
Кровать выбрала белую простую деревянную. Хотела ещё шкаф небольшой тоже белый, а вот стол и стеллажи пока ещё не подобрала
20.11.2017
Ответить
Настёна (Мебель, матрасы, уличные и домашние ДСК)
В белом точно найдёте или Икеа или по модульным смотрите например 38 попугаев серия классика
20.11.2017
Ответить
Маруся
Ну здесь все вместе гармонично смотрится. А если будет прям около окна стоять шкаф, а слева от окна храниться игрушки, то как там впишется стол. Точнее как его вписать, чтоб получилось красиво?
19.11.2017
Ответить
Маруся
Да вы правы. Просто план сложно искать сейчас, а голова от отсутствия идей уже опухла. Вот щёлкнула и спросила. Думала будет понятно.
Комната 11 квадратов примерно. 3,3*3,4
Спасибо!
19.11.2017
Ответить
Елена
А что мешает сделать рабочие места у окна?
П.с. мрачновато как-то в детской. Не хватает ярких красок. Это же детская!!!
19.11.2017
Ответить
Маруся
Ну вот единственный вариант и получается у окна, но не знаю, как совместить это со стеллажами под игрушки
Про мрачность сама знаю... Шторы дурацкие. Планирую их заменить, а яркости добавить пледами и ковром)
19.11.2017
Ответить
Елена
Тут конечно стена поуже. Слишком длинный рабочий стол получится но можно поставить пеналы для игрушек по обоим сторонам и сбоку поставить двухярусную кровать, как вам предлагают выше с фото.
19.11.2017
Ответить