Неоклассика в тренде
Авторские проекты дизайнеров.(Посты не по теме будут удаляться!)
В последнее время неостиль набирает обороты и становится всё более популярным среди заказчиков. Такой интерьер получается очень комфортным для жизни - уютным, спокойным, умиротворяющим. Здесь нет места пафосным и вычурным элементам, которыми можно хвастаться перед друзьями, или каким-то сногсшибательным дизайнерским штучкам. Сегодня мы отправляемся в гости к молодой семейной паре из города Одинцово, чтобы полюбоваться, какой получилась их новая трёхкомнатная квартира.
Пастельные оттенки можно использовать в любом интерьере. Практически всегда цвет выбирает заказчик, ведь ему и его семье предстоит жить в квартире, над дизайном которой мы работаем. Одному человеку нейтральная гамма кажется скучной и блёклой, а другой видит в ней гармонию и натуральность.

Для небольшой семьи кухня получилась очень даже просторной! У нас долго не получалось классно оформить фартук в рабочей зоне. Ни декоративный кирпич, ни плитка не смотрелись гармонично. В результате остановились на варианте с окрашенной стеной под закалённым стеклом - оно защищает от брызг при готовке и мытье посуды. А кухня и правда огромная! Наверное, любая хозяюшка мечтает о такой - чтобы было где развернуться. :) Саму гостиную, кстати, мы увеличили за счёт лоджии - там теперь стоит обеденный стол.

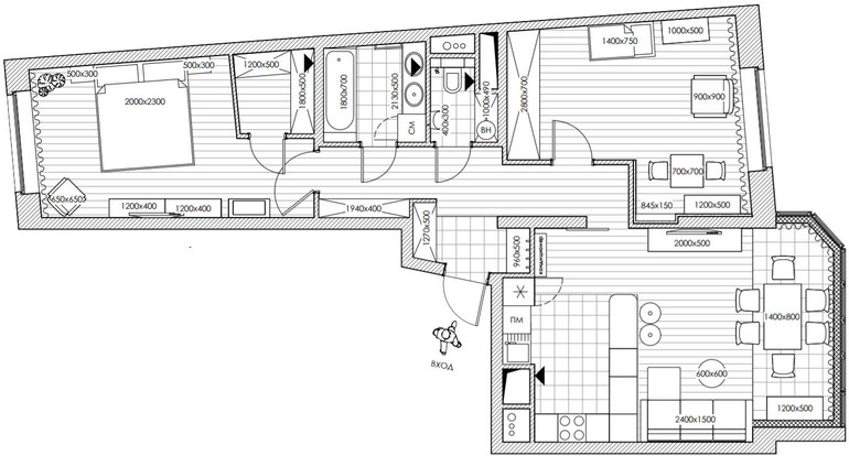
Идея расширить комнату, присоединив к ней лоджию, лежит на поверхности. Однако стоит помнить, что такой вариант перепланировки в нашей стране считается незаконным. Делать это нелегально на свой страх и риск или оставить всё как есть - решать только вам.

Интересное и необычное решение - картина рядом с телевизором. Это хороший способ заполнить пустоту стены, если не хочется раскошеливаться на огромную плазму. Советую выбирать принт в тонкой рамке и с ненавязчивым сюжетом, чтобы яркие цвета на картинке не мозолили глаза при просмотре телевизора.
На мой взгляд, картины и фотографии здесь были бы лишними - они сразу перегрузят воздушный интерьер спальни. В этом интерьере стены не кажутся пустыми за счёт того, что украшены молдингами.

Как вам такой нежный голубой цвет? Здесь он выступает в качестве акцентного. Небесные оттенки очень освежают комнату! А вот слишком много голубого может сделать спальню "холодной" по ощущениям. Хотя это тоже вопрос вкуса. :)

Кто будет жить в детской - мальчик или девочка - пока неизвестно. :) Ребёнок у этой семейной пары пока что только в планах. Поэтому детскую они захотели сделать в той же нейтральной гамме, что и всю квартиру. В качестве акцентного цвета здесь - жёлтый: текстильные подушки, симпатичные наклейки-овечки на стенах и один из принтов в белой рамке возле стеллажа.
Вы скажете: всё-таки необычно, что заказчики решили сразу сделать комнату для ребёнка, которого ещё нет. С одной стороны, так. А с другой, если малыш и правда входит в планы на ближайшие год-два, то почему бы не оборудовать уютную детскую, когда есть такая возможность? Да и нейтральная гамма смотрится в итоге даже круче, чем розово-голубые мотивы, которые всем уже давно приелись.

Немного о планировке. Кроме того, что лоджию присоединили к гостиной, мы также обособили прихожую. Дверь в кухню раньше находилась в другом месте и вела из коридора направо - теперь здесь разместился удобный шкаф. Стало лучше по двум причинам: добавилось дополнительное место для хранения одежды и обуви, плюс к этому песок из прихожей не попадает в кухню.