Офис
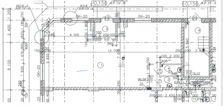
Дизайн-проекты нежилых помещенийДевушки, очень прошу мне помочь. Планируется покупка двух коммерческих помещений.Смущает только ремонт, и не понимают как разместить на этих квадратах 30 человек.
Нужно несколько рабочих кабинетов и общий зал, два туалета и что то типа комнаты отдыха для персонала или кухни.Общая площадь где то 230 м2.
Помогите грамотно распланировать помещение.
Помещения вот эти. Дом с монолитными колоннами, стены кирпич, то есть их можно сносить.


Анастасия Авдошкина
Для своего офиса приобрели в интерет магазине stokcentr.ru лотки горизонтальные для бумаг BRAUBERG «Office».Заказывали большую партию, лотки пришли целые, без сколов и царапин. Достаточно крепкие и что не мало важно без постороннего запаха. Очень удобная вещь для хранения документов. Доставили всего за 3 дня, упаковано все по высшему разряду. Рекомендую этот магазин.
11.01.2021
Ответить
дизайн ONLINE (бюджетно)
Желательно больше информации. Чем вы занимаетесь? исходя из рода деятельности проще понять сколько места нужно каждому работнику.
24.03.2019
Ответить
Полина Андреевна
Работаю с офисной мебелью, компания Дэфо.
У нас достойный выбор мебели и на складе и под заказ.
Загрузить здесь свои работы не могу, сайт не пропускает.
9623647534 Wh и viber
13.02.2019
Ответить
Олеся
Только недавно открыли наш очередной офис))) Вот если вдруг вам понадобится помощь по мебели для персонала или в личный кабинет.,то могу вам подсказать магазин где мы сами все закупаем tutkresla.ru.Очень комфортная мебель и качество на высоте!!!
31.01.2018
Ответить
Катя Самохина
Попробую помочь за 50 руб кв.м., но сан-узел отдельно( 5000 руб каждый)
С Уважением, дизайнер , Катерина.
11.01.2018
Ответить
ZhannaT
Вам лучше обратиться к дизайнеру или архитектору. Для расстановки необходима информация о деятельности организации, количестве персонала и руководства. Для рабочего места рассчитывают по СНиП площадь размещения, площадь для места отдыха, площадь санузлов. И уже исходя из этого делают расстановку стен)
10.01.2018
Ответить
Дизайнер 3D
Здравствуйте.
_
Чем вам помочь ?
В данном сообществе есть Дизайнеры, бесплатно никто не будет работать.
_
Вы для начала сами что-то придумайте.
10.01.2018
Ответить
лена Мазур
Недавно столкнулись с подобной проблемой ,3 офиса арендовали ,ремонт нужно было делать на всех трех объектах .Помещения не совсем такие как нам нужны были ,перепланировка состояла в установлении перегородок всего лишь .К дизайнеру не стали обращаться ,дороговато .Своими силами попытались.
И вы знаете совсем ничего сложного ,перегородки из гипсокартона уже установили ,стены покрасили в светлые тона ,а вот с потолком пришлось повозиться ,долго искали оптимальный вариант для офиса .Решили сделать подвесные потолки грильято Для офиса отличное решение и по цене хорошей оптовой мы купили от производителя .
Главное захотеть что то сделать и все получится .
19.02.2018
Ответить