КУхня-гостинная
Интерьерное решение кухниДобрый день, всем)))
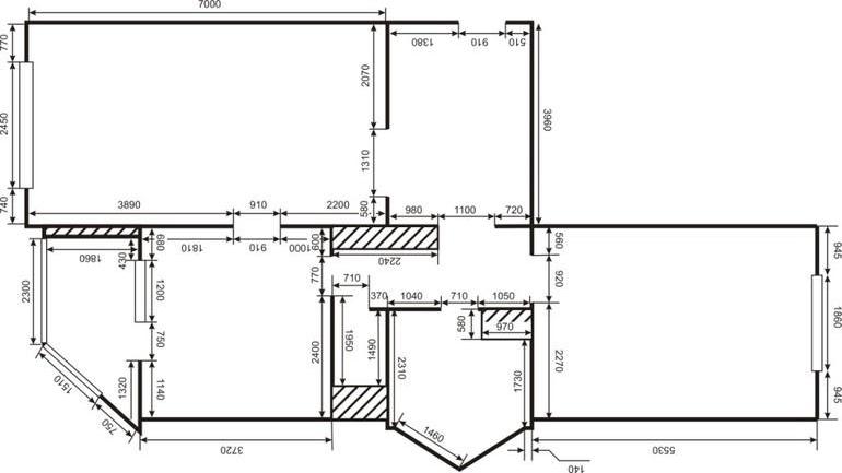
Спустя 10 лет мы решили сделать глобальный ремонт и поменять кухню местами с гостиной. Самую большую комнату хотим использовать как кухню и зал, не разделяя ее перегородками. Раковину с помощью насоса можно поставить в любое место. Вот теперь я ищу идеи, фото дизайн того что хотим сделать. Может вы нам подскажите и пришлете что-то интересное))) Дверь между комнатами будем закладывать. Зал 28 кв.м.

Анастасия
Для канализации от раковины как будете правильный уклон создавать, продумали? Шум от насоса не будет мешать?
30.01.2018
Ответить
Таисия
Ещё можно рассмотреть вариант перенести кухню в комнату 20кв, там как раз стена смежная с ванной, ближе тянуть трубы..
30.01.2018
Ответить
Анхен
Мы думали над этим, но жалко использовать под комнату 28 кв. Нам данной кухни по объему хватает (16 кв.м.), просто жалко пропадают метры.
30.01.2018
Ответить
Datura
особенно мерзко, что все стены несущие(
Понятное дело, что вам нужно расположить кухонный гарнитур максимально близко к прошлому стояку, и ориентироваться на то, что помещение имеет вытянутую форму. Лично мне не нравятся кухни буквой П, но эта идея имеет популярность среди масс)
Мне нравятся такие варианты
здесь гарнитур находится за спиной фотографа.
А вообще, что если вам просто вынести из кухни обеденную зону в гостиную, сразу за стену. Получатся 13 метров чистой кулинарной радости с маленьким кофейным столиком для завтраков, а большой стол можно сделать сразу за стеной) Это, может быть, не так удобно как кидать все "со сковороды на стол", зато не придется мудрить с техническим проектом.
Мне нравятся такие варианты
здесь гарнитур находится за спиной фотографа.
А вообще, что если вам просто вынести из кухни обеденную зону в гостиную, сразу за стену. Получатся 13 метров чистой кулинарной радости с маленьким кофейным столиком для завтраков, а большой стол можно сделать сразу за стеной) Это, может быть, не так удобно как кидать все "со сковороды на стол", зато не придется мудрить с техническим проектом.
29.01.2018
Ответить
Datura
аааааааааа)))))) возможно) нихрена себе непутевая прихожка огромная)
кухня внизу с балконом получается? я не понимаю)
30.01.2018
Ответить
Таисия
Да, с балконом, а с эркером - это ванна! Никогда таких не видела шикарных санузлов!!
30.01.2018
Ответить
Анхен
Да, окно в с окном это круто. Постоянно свет дневной, проветривание. При постройке дома обязательно буду в санузлах делать окно.
30.01.2018
Ответить
Анхен
Очень хорошая прихожая. Это один из плюсов квартиры. Шкаф 4 метра, место для диванчика и остается место спокойно раздеться 3-4 людям.
30.01.2018
Ответить
Таисия
Блин, писала и удалила нечаянно.
Что если вам трубы довести до стены, граничащей с гостиной, и со стороны гостинной кухня (плита и раковина) будут в нише, вровень со стеной? Холодильник и печку можно в колонну на прилегающую или противоположную стену. Тогда чисто номинально мокрая зона останется в зоне бывшей кухне и трубы вести чуть ближе...
29.01.2018
Ответить
Анхен
не хотелось бы трогать несущие стены(((
да и площадь позволяет разместить все в зале.
29.01.2018
Ответить
Вера
На сколько я знаю, мокрая зона -это не участочек, на котором стоит раковина, а вся комната целиком. Но специалисты лучше подскажут.
29.01.2018
Ответить
Таисия
Да, все правильно говорите! Просто если уж затопит кухню и у соседей снизу там тоже кухня, то как-то...проще что ли)
29.01.2018
Ответить
Анхен
Мы затопили из кухни соседям спальню. Прорвало трубу отопления. А она могла рвануть в любой комнате. Мы им выплатили ремонт дорогостоящего паркета.
29.01.2018
Ответить
Алла
Я тоже хотела,но не рискну. Вот вообще не понимаю,зачем делать комнату 22 метра,а кухню 13? Это я к проектировщикам...
29.01.2018
Ответить
Алла
Так ничего подобного. Ладно бы поняли. Нет,наклепают две комнаты по 17-25 метров,но при этом сделают кухню 12-14. ??? И это в настоящее время.
29.01.2018
Ответить
Алла
Кому как,мне это не нравится. Кухня-столица квартиры,там проводим все много времени. Она должна быть большой. А вот зачем спальня в 20 метров,если мы туда на ночь заходим. И да,у меня в новой квартире тоже кухня 13 метров. И у меня тоже планы были перенести кухню в спальню. Только после покупки квартиры узнала,что нельзя. Я всю жизнь живу в частных домах,все эти тонкости никогда не изучала.
29.01.2018
Ответить
IS
а у нас наоборот получается перенести кухню и сделать на ее месте спальню. для 14 метров площади самое то. зато благодаря тому, что гостиная была 24, а после присоединения части площади и превращения в кухню - гостиную, станет 28 кв м. это отличная планировка для нас. лучше кухня-гостиная 28 квадратов, чем спальня 18-20....
29.01.2018
Ответить
odri86_(меня зовут Тийна)
Очень Вас поддерживаю. Смотрели недавно квартиры в старом фонде, комнаты 18-23 м и кухни при этом 5,5-6,5. Там не то что посидеть, готовить негде!
29.01.2018
Ответить
Оксана (дизайнер, инста: @persona_story)
Вы понимаете, что если у вас не первый этаж, перенос кухни на территорию жилой комнаты запрещён ? Да?
29.01.2018
Ответить
Вера
Вот Вы отчаянная! )) Не боитесь, что соседи снизу в жилинспекцию нажалуются, что Вы им спать мешаете?
29.01.2018
Ответить
Анхен
НЕТ))) у них собака постоянно лает, нас это вообще не напрягает и ни разу не жаловались. соседи через этаж перенесли кухню и вот уже 10 лет пользуются))) мы их как-то затопили и к ним из ДЕЗа приходили и ничего не сказали.
29.01.2018
Ответить
Вера
Ну, мне кажется, что приход деза и жилинспекции с проверкой - это несколько разные вещи. А соседи... могут и поменяться. Но в общем-то это проблемы Ваши и Ваших соседей, раз Вы все для себя уже решили, то, наверное, заранее ко всему уже готовы.
29.01.2018
Ответить