Дизайн-проект квартиры с ванной на террасе
Авторские проекты дизайнеров.(Посты не по теме будут удаляться!)Рада презентовать вам наш проект
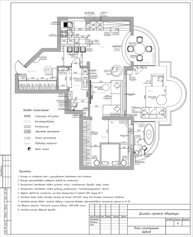
Ванна на террасе была мечтой нашей заказчицы.
Мы разработали перепланировку квартиры, с инженерной группой рассчитали возможность размещения ванны на террасе.
Террасу разделили на 3 части: 2 из них застеклили и присоединили к квартире, а центральная часть осталась открытой.
Сейчас проект на стадии реализации: завозят мебель, основные ремонтные работы завершены.
А какие у вас есть нестандартные идеи интерьера, которые вы хотели бы воплотить?




Оксана (дизайнер, инста: @persona_story)
Ирина, а обратной связи так и не будет?)
09.03.2018
Ответить
Оксана (дизайнер, инста: @persona_story)
я попросила показать план квартиры до перепланировки ). а Вы молчите...
09.03.2018
Ответить
Оксана (дизайнер, инста: @persona_story)
Ирина, покажите, пожалуйста, изначальную планировку.
09.03.2018
Ответить
Ирина Жураховская
Оксана, пожалуйста.
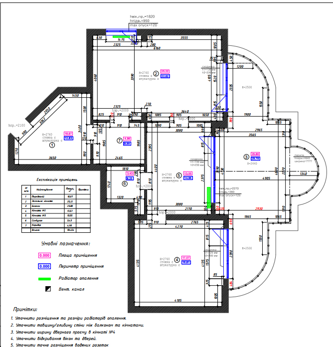
Планировка во вложении.
Ваш вопрос про обратную связь я не совсем поняла. Когда появилась возможность - тогда и отвечаю. Не очень корректно требовать обратную связь сию минуту. Если вам срочно что-то нужно: набирайте по телефону меня или администратора студии. Мы будем рады вас проконсультировать. Хорошего вечера!
09.03.2018
Ответить
Оксана (дизайнер, инста: @persona_story)
Ирина, спокойно! Вы так сильно не горячитесь. Сиюминутнотого ответа я не требовала. Посмотрите на время вопроса. Это было 6 часов назад. )))
у меня вопрос такой: как Вы узаконили вынос с/у на лоджию. Это всё, что я хотела узнать.
09.03.2018
Ответить
Ирина Жураховская
Ну вот 6 часов и норма.
Я мама грудничков. Работающая. Сори, у меня нет времени сидеть в переписке. бебиблог для меня больше как отдых, а не работа. Надеюсь, вы понимаете.
Вопрос с оформлением перепланировки взяла на себя заказчица. С нашей стороны были просчеты и реализация.
10.03.2018
Ответить
Ирина Жураховская
Зато вид красивый
Мы тоже заметили, когда выходишь на балкон - строители на против прилипают к окнам))).
09.03.2018
Ответить