Деление комнаты для разнополых детей
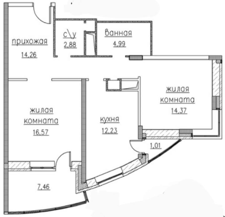
Интерьерное решение жилых помещений.Девочки, интересно ваше мнение при такой планировке вообще реально разделить какую-нибудь из комнат для двух детей?
Например гипсокартоном? 
Datura
гипсокартон у вас отъест еще пространства...изучайте вопросы зонирования, шторами, стеллажами, перегородками...
я бы отдала детям комнату с балконом, на котором можно организовать игровую зону или рабочую, смотря сколько лет детям.
04.04.2018
Ответить
Ольга
А сколько детям лет, что им нужны отдельные комнаты? Или вы с перспективой? Я бы присоединила балкон, на нем можно организовать рабочее место детям. А комнату просто разделить визуально стеллажом.
03.04.2018
Ответить
Irylen
В каждой комнате по одному окну. Если делить, то одна комната будет без окна, т. е. кладовка. Я бы ребенка в кладовку не поселила
03.04.2018
Ответить
Натали
Ну вот добавить еще 4 метра от той, которая 16, 57- и будет две равнозначные комнаты. А белье на специальных сушилках можно прекрасно высушивать) Правда, конаты смежные будут, ну тут уж деваться некуда)
03.04.2018
Ответить
Натали
Можно сделать фальшь- окно. Можно даже на потолке) А проветривать- открыв дверь в комнату с окном.
https://youtu.be/_6TM4Z7jkDo
03.04.2018
Ответить
Натали
Ну посмотрите, что это такое) Окно зачем нужно?) Чтобы освещать комнату и можно было проветривать. Ну вот фальшь- окна делают из безопасного волокна, которое соответствует дневному освещению. Как проветривать- я уже сказала. Я ужаса не вижу, если честно) В комнате можно цветов много поставить, рыбок) В общем, живую атмосферу создать)
03.04.2018
Ответить
Мария
Спасибо, посмотрю. Там между балконом и комнатой стена несущая, не очень хочется сносить кусок который под окном оказался
03.04.2018
Ответить
Натали
Я знаю случаи, когда такие несущие стены сносились безо всякое ущерба . И даже не один, когда за счет балкона увеличивали комнату. Видимо,все эти стены были несущие. Речь о блочных домах.
03.04.2018
Ответить
Мария
Да, некоторое наши соседи сразу объединили, но мы когда ремонт делали планировали что там муж сидеть будет за компьютером, поэтому оставили отдельное помещение
03.04.2018
Ответить