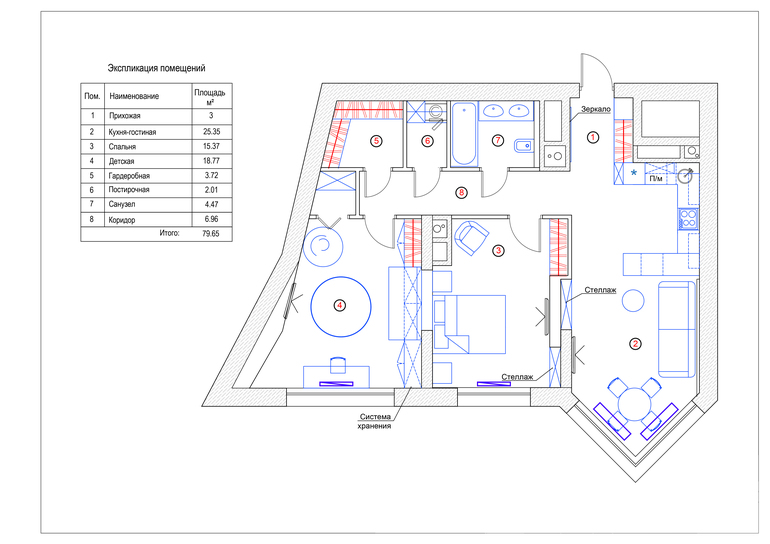
Апартаменты для молодой семьи 79 м2
Авторские проекты дизайнеров.(Посты не по теме будут удаляться!)Всем доброго вечера ! 🖐️
В недавнем времени закончила работать над еще одним проектом - апартаменты для молодой семьи состоящей из трех человек .

В отличие перепланировки апартаментов от квартиры отсутствие множества ограничений, есть возможность разместить мокрые точки там где нам это необходимо, конечно учитывая возможности подвода коммуникаций .
И так , задачи для перепланировки :
- зона где семья проводит основное время кухня-гостиная
-детская
-мастер спальня
По итогу получилось разместить еще гардеробную дополнительно и постирочную .
У заказчиков немного отличались представления о своей будущей квартире , муж хотел видеть интерьер более брутальным,что-то в стиле Loft, жена наоборот видела интерьер более уютным с элементами неоклассики, но в чем они были похожи это наличие дерева в интерьере. И тут была моя задача найти компромисс, чтобы будущий интерьер нравился и жене и мужу. Вообщем это удалось и ниже результат работы который понравился всем )
и планировка ниже 👇
Входная зона.Кухня-гостиная.





Мастер спальня.


Детская.



Санузел .



И еще вариант который был предложен для гостиной более сдержанный, но заказчики выбрали первый .




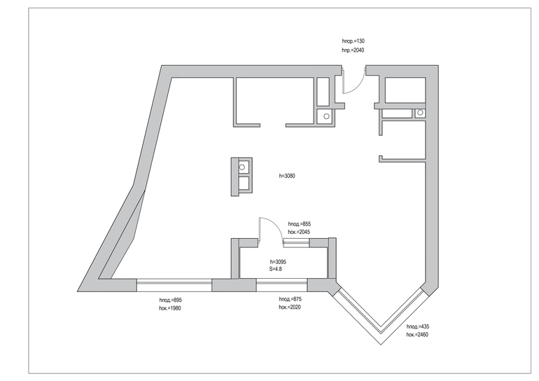
Фото с обмеров:






План до перепланировки.

План после планировки

Всем спасибо за внимание 👏